FLEXIBEL
FINANZIEREN

Kreditbedarf
Eigenmittel
%
Jahre
Zins | Laufzeit
mtl. Rate
ländleimmo.at / Kaufobjekt / Wohnung / Dachgeschosswohnung / Vorarlberg / Feldkirch / Koblach / 3-Zi-Westwohnung im Dachgeschoss

3-Zi-Westwohnung im Dachgeschoss

images icon

3 Zimmer

Grundriss

images icon

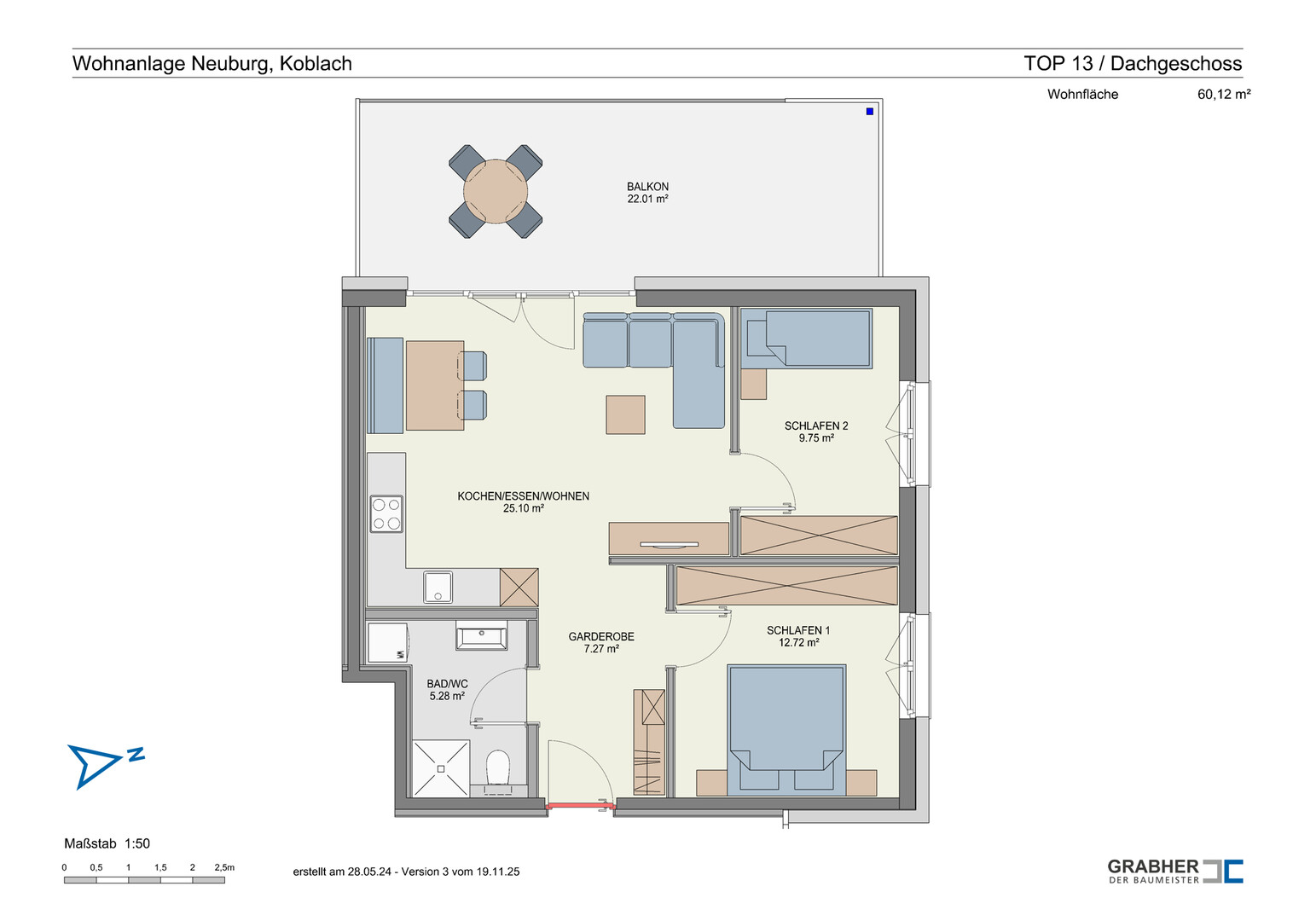
60,12 m²

Wohnfläche

€ 429.500

Preise

Kaufpreis € 429.500
Förderungen Wohnbauförderung bis zu 87.500 € möglich
Einmalkosten € 20.703

Objekt Informationen

Wohnfläche 60,12 m²
Zimmer 3
Anzahl Stockwerke 3
Etage 2. OG
Bautyp Neubau/Erstbezug
Baujahr 2026
Objektart Wohnung
Objekttyp Dachgeschosswohnung
Badezimmer 1
Balkon 22,01 m²
Keller 6,14 m²
Fahrradraum Vorhanden
Heizung
  • Luft Wärmepumpe
  • Fußbodenheizung
Gesamtanzahl Stellplätze 1
Heizwärmebedarf (HWB) 28,00 kwh/m²a
Klasse Heizwärmebedarf (Klasse HWB) B
Gesamtenergieeffizienz-Faktor (fGEE) 0,57 kwh/m²a
Klasse Gesamtenergieeffizienz-Faktor (Klasse fGEE) A+
Externe ID 2023-05157_13
Parkplatz
  • (Tief-)Garage (€ 27000)

Ausstattung:

  • icon Lift
  • icon Wasch-/Trockenraum

Empfohlene Services unserer Partner

Objekt Beschreibung


Wohnen im Grünen - Neuburg Koblach

In der aufstrebenden Gemeinde Koblach entsteht ein moderner Neubau mit 15 Einheiten.
Eingebettet in eine Einfamilienhausgegend profitieren die Bewohner von der grünen Umgebung und den zahlreichen Möglichkeiten, sich nach einem anstrengenden Tag beim Radfahren, Spazierengehen oder Baden zu erholen.
Gleichzeitig sind die Dinge des täglichen Lebens in wenigen Minuten erreichbar: Die stark wachsende Gemeinde verfügt über Kindergärten, Schulen, Einkaufsmöglichkeiten und eine gute medizinische Versorgung.

Vom italienischen Architekten Pierluigi Baldovini entworfen, bietet das Haus Platz für 2-, 3- und 4-Zimmer-Wohnungen mit praktischen, funktionalen Grundrissen. Für eine hohe Außenraumqualität sorgen großzügige Terrassen und teils riesige Gärten.
Hier finden sowohl Singles, Paare und Familien einen Ort an dem Sie ankommen und sich von den Strapazen des Alltages erholen können. Die optimale Ausrichtung des Projektes sorgt für helle lichtdurchflutete Räumlichkeiten und viel Sonne auf den Freiflächen. Egal ob Sie sich mit Freunden zum Kaffee im Garten oder für einen After-Work-Drink auf der Terrasse treffen oder ein gemütliches Abendessen im Kreise Ihrer Familie planen – das Projekt Neuburg bietet hierfür die optimale Infrastruktur.

Als künftige Bewohner erreichen Sie Ihr Zuhause barrierefrei über eine Tiefgarage und gelangen via Lift in Ihre Wohnung. Mit Hilfe einer Luftwärmepumpen-Heizung in Kombination mit einer Photovoltaik-Anlage, von der illwerke vkw im Contracting betrieben, halten Sie Ihre Räume im Sommer kühl und im Winter angenehm warm. Wer statt des Autos das Fahrrad nutzen möchte, hat ebenerdig leichten Zugang zum Fahrradabstellplatz im Erdgeschoss. Zusätzlich befindet sich im Untergeschoss ein großzügiger Fahrradraum.

Die traditionelle Baumeisterqualität sorgt für ein angenehmes Wohnklima. Ihre eigenen 4-Wände gestalten Sie ganz nach Ihrem Geschmack. Hier halten wir eine umfangreiche Auswahl an qualitativen Ausstattungsmerkmalen, an Fliesen und Oberböden für Sie bereit. Wir laden Sie herzlich ein – besuchen Sie uns in der Grabher-Stuba und erfahren Sie weitere Details zum neuen Projekt Neuburg in Koblach.

Angehängte Dokumente