ländleimmo.at / Mietobjekt / Wohnung / Dachgeschosswohnung / Vorarlberg / Bludenz / Thüringen / Geniale 3-Zimmer-Wohnung in Thüringen

Geniale 3-Zimmer-Wohnung in Thüringen

images icon

2,5 Zimmer

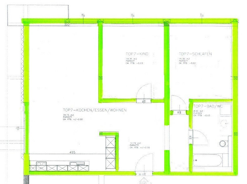
Grundriss

images icon

82,80 m²

Wohnfläche

€ 1.276

Preise

Gesamtbelastung € 1.276
Kaution € 3.300
Einmalkosten € 400

Objekt Informationen

Wohnfläche 82,80 m²
Zimmer 2,5
Etage 2. OG
Bautyp Gebraucht
Baujahr 2007
Bauweise
  • Massiv
Objektart Wohnung
Objekttyp Dachgeschosswohnung
Terrasse Vorhanden
Keller Vorhanden
Fahrradraum Vorhanden
Heizung
  • Gas
Verfügbar ab Sofort
Externe ID Top 7

Ausstattung:

  • icon Einbauküche
  • icon Boden: Laminat
  • icon Bad mit: Badewanne
  • icon Ausrichtung Balkon: Süden
  • icon Rollladen
  • icon Wasch-/Trockenraum
  • icon Gartennutzung
  • icon WG-geeignet

Empfohlene Services unserer Partner

Objekt Beschreibung

Gemütliche 3 Zimmer Wohnung mit sonniger Terrasse in Thüringen zu vermieten.

In einer kleinen heimeligen Wohnanlage wird eine 3-Zimmer-Wohnung im Dachgeschoss frei.

Mit 82,8 m² Wohnfläche bietet die Wohnung viel Raum zum Wohlfühlen.

Die Schlafzimmer sind nach Norden ausgerichtet und haben eine schöne Sicht auf die Berge. Der Wohnbereich hat ein großes Fenster auf die Westseite, wo Sie dann den Sonnenuntergang genießen können. Die Terrasse ist gegenüber der Wohnung auf Süden ausgerichtet. Das bedeutet, Sie machen ein zwei Schritte über den Hausflur und sind dann in Ihrer Frischluftoase angelangt.

Die Böden in der Wohnung sind aus Laminat in Holzstruktur und die Wände und Türen sind weiß ausgestrichen.

Das Bad ist großzügig und mit einer Badewanne mit Duschwand bestückt. Eine große Regenbrause ist ebenfalls inkludiert. Auch für Waschmaschine und Trockner ist noch genügend Platz.

Ein Kellerabteil und ein Carport runden das Angebot ab.

KURZ ZUSAMMENGEFSST:

1 Küche-Wohn-Essraum

2 Schlafzimmer

1 Bad

1 Kellerabteil

1 Carport

... und der I-Punkt dieser Wohnung: Kleine Anlage mit Wohlfühlcharakter

Zum Vermieter besteht ein Naheverhältnis.

Alle Angaben sind ohne Gewähr und basieren ausschließlich auf Information die uns vom Auftraggeber oder Dritten zur Verfügung gestellt wurden.

Angehängte Dokumente