ländleimmo.at
/
Mietobjekt
/
Wohnung
/
Allgemein
/
Vorarlberg
/
Feldkirch
/ Feldkirch
/
Zentrumsnahe 1,5 Zimmerwohnung in Feldkirch zu vermieten (verfügbar ab 01.04.2026)
Zentrumsnahe 1,5 Zimmerwohnung in Feldkirch zu vermieten (verfügbar ab 01.04.2026)
1,5 Zimmer
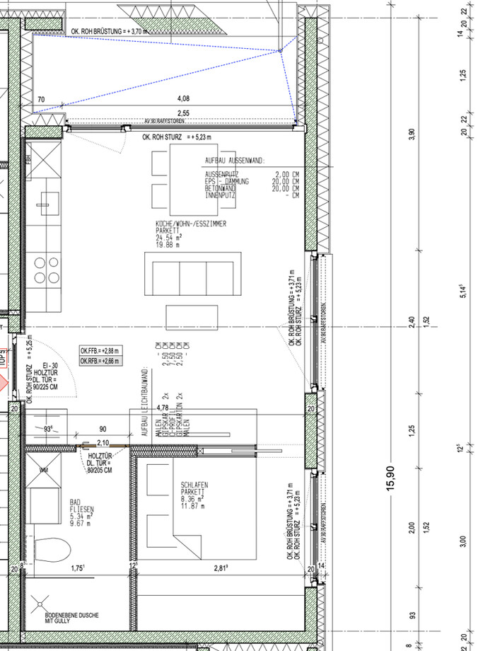
Grundriss
31,00 m²
Wohnfläche
€ 793,75
Preise
Gesamtbelastung
Miete + Betriebskosten + Heizkosten + Sonstige Kosten; inkl. MwSt.
€ 793,75
Betriebskosten (exkl. Mwst)
€ 132,15
Gesamtmiete (inkl. MwSt.)
Gesamtbelastung abzüglich Heizkosten BRUTTO
€ 793,75
Miete (exkl. MwSt.)
Miete ohne MwSt., Betriebskosten und Heizkosten
€ 597,82
Objekt Informationen
Wohnfläche
31,00 m²
Zimmer
1,5
Bautyp
Neubau (bis 5 Jahre)
Baujahr
2022
Objektart
Wohnung
Objekttyp
Allgemein
Badezimmer
1
Balkon
6,00 m²
Keller
4,00 m²
Fahrradraum
Vorhanden
Heizung
- Erdwärme
- Fußbodenheizung
Heizwärmebedarf (HWB)
24,00 kwh/m²a
Klasse Heizwärmebedarf (Klasse HWB)
A
Gesamtenergieeffizienz-Faktor (fGEE)
0,64 kwh/m²a
Klasse Gesamtenergieeffizienz-Faktor (Klasse fGEE)
A+
Externe ID
Bodenseeimmo_580
Ausstattung:
-
Einbauküche
-
Boden: Fliesen, Parkett
-
Bad mit: Dusche
-
Lift
-
Barrierefrei
Empfohlene Services unserer Partner
Objekt Beschreibung
Zentrumsnahe 1,5 Zimmerwohnung in Feldkirch zu vermieten (verfügbar ab 01.04.2026)
Diese kleine, aber feine 1,5 Zimmerwohnung befindet sich im 1. Obergeschoss einer im
Jahr 2022 fertig gestellten Neubau-Kleinwohnanlage im schönen Feldkirch.
Öffentliche Verkehrsmittel, Einrichtungen des täglichen Bedarfs sind in unmittelbarar Nähe.
Die Wohnung besteht aus einem Wohn-Esszimmer mit Einbauküche, einem abtrennbaren
Schlafbereich, Bad, Balkon, Keller und Autostellplatz.
Die Wohnungsmiete setzt sich wie folgt zusammen:
EUR 557,82 Nettomiete
EUR 55,78 Umsatzsteuer (10%)
EUR 132,15 Betriebskosten (inkl. Umsatzsteuer)
Gesamtbelastung monatlich: EUR 793,75
Stellplatz monatlich EUR 48,00 (inkl. 20% USt.)
Haben wir Ihr Interesse geweckt? Dann vereinbaren Sie gerne einen unverbindlichen Besichtigungstermin mit uns, um sich vor Ort ein Bild zu machen.
Alle Angaben nach bestem Wissen und Gewissen und stützen sich auf die vom Vermieter zur Verfügung gestellten Informationen. Flächenangaben sind ca.-Angaben. Irrtum und Zwischenvermietung vorbehalten. Dieses Exposé ist eine Vorinformation, als Rechtsgrundlage gilt alleine der abgeschlossene Mietvertrag.
Diese kleine, aber feine 1,5 Zimmerwohnung befindet sich im 1. Obergeschoss einer im
Jahr 2022 fertig gestellten Neubau-Kleinwohnanlage im schönen Feldkirch.
Öffentliche Verkehrsmittel, Einrichtungen des täglichen Bedarfs sind in unmittelbarar Nähe.
Die Wohnung besteht aus einem Wohn-Esszimmer mit Einbauküche, einem abtrennbaren
Schlafbereich, Bad, Balkon, Keller und Autostellplatz.
Die Wohnungsmiete setzt sich wie folgt zusammen:
EUR 557,82 Nettomiete
EUR 55,78 Umsatzsteuer (10%)
EUR 132,15 Betriebskosten (inkl. Umsatzsteuer)
Gesamtbelastung monatlich: EUR 793,75
Stellplatz monatlich EUR 48,00 (inkl. 20% USt.)
Haben wir Ihr Interesse geweckt? Dann vereinbaren Sie gerne einen unverbindlichen Besichtigungstermin mit uns, um sich vor Ort ein Bild zu machen.
Alle Angaben nach bestem Wissen und Gewissen und stützen sich auf die vom Vermieter zur Verfügung gestellten Informationen. Flächenangaben sind ca.-Angaben. Irrtum und Zwischenvermietung vorbehalten. Dieses Exposé ist eine Vorinformation, als Rechtsgrundlage gilt alleine der abgeschlossene Mietvertrag.