ländleimmo.at / Mietobjekt / Wohnung / Allgemein / Vorarlberg / Feldkirch / Feldkirch / Urbanes Wohnen am Schlossgraben in Feldkirch

Urbanes Wohnen am Schlossgraben in Feldkirch

images icon

3 Zimmer

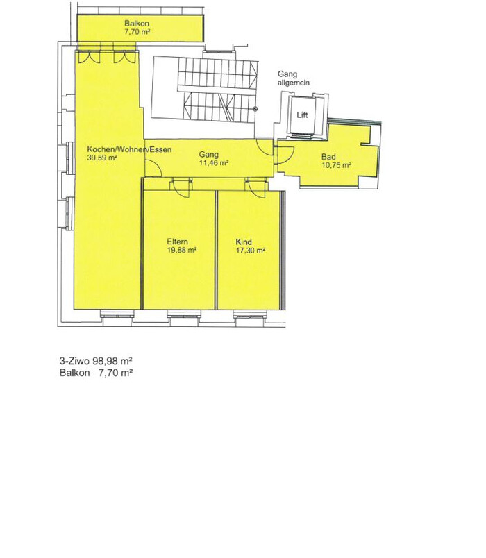
Grundriss

images icon

99,10 m²

Wohnfläche

€ 1.454,27

Margit Schranz-Bstieler

F.M. Hämmerle Holding AG

Preise

Gesamtbelastung € 1.454,27
Gesamtmiete (inkl. MwSt.) € 1.454,27
Kaution € 5.900

Objekt Informationen

Wohnfläche 99,10 m²
Zimmer 3
Etage 2. OG
Baujahr 2014
Objektart Wohnung
Objekttyp Allgemein
Badezimmer 1
Balkon Vorhanden
Heizung
  • Gas
  • Erdwärme
  • Fußbodenheizung
Verfügbar ab nach Vereinbarung
Heizwärmebedarf (HWB) 18,30 kwh/m²a
Klasse Heizwärmebedarf (Klasse HWB) A
Externe ID Hammerle_MS653

Ausstattung:

  • icon Einbauküche
  • icon Boden: Parkett
  • icon Bad mit: Badewanne, Dusche
  • icon Lift
  • icon Kabel/Satelliten-TV

Empfohlene Services unserer Partner

Objekt Beschreibung


Das Objekt Schlossgraben 8 verbindet zentrale Lage, historische Substanz und zeitgemäßen Wohnkomfort zu einem stimmigen Ganzen. Das sorgfältig sanierte Gebäude befindet sich in unmittelbarer Nähe zur Feldkircher Innenstadt und bietet hochwertig ausgestattete Wohnungen. Durchdachte Grundrisse und helle Räume schaffen ein angenehmes Wohnumfeld – urban gelegen und zugleich von hoher Aufenthaltsqualität geprägt.

Lage:
Das Objekt befindet sich in absoluter Zentrallage von Feldkirch, direkt am Schlossgraben. Die historische Altstadt, der Dom St. Nikolaus, der Marktplatz sowie zahlreiche Cafés, Restaurants und Einkaufsmöglichkeiten sind bequem zu Fuß erreichbar.