FLEXIBEL
FINANZIEREN

Kreditbedarf
Eigenmittel
%
Jahre
Zins | Laufzeit
mtl. Rate
ländleimmo.at / Kaufobjekt / Wohnung / Allgemein / Vorarlberg / Feldkirch / Feldkirch / 2 Zimmer-Gartenwohnung | Feldkirch

2 Zimmer-Gartenwohnung | Feldkirch

images icon

2 Zimmer

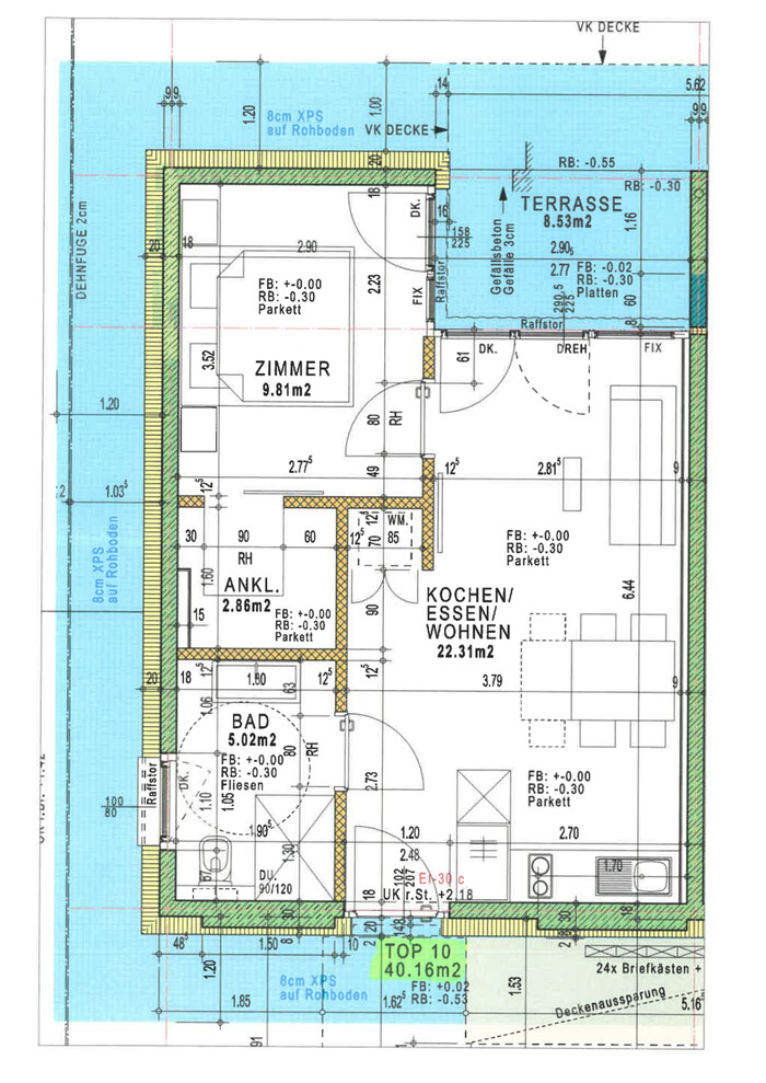
Grundriss

images icon

40,00 m²

Wohnfläche

€ 248.000

Andreas Hagspiel

Immo-Agentur Maier GmbH

Preise

Kaufpreis € 248.000

Objekt Informationen

Wohnfläche 40,00 m²
Zimmer 2
Bautyp Neubau/Erstbezug
Objektart Wohnung
Objekttyp Allgemein
Badezimmer 1
Balkon Vorhanden
Terrasse Vorhanden
Garten 55,90 m²
Keller 4,30 m²
Heizung
  • Gas
  • Solar
  • Fußbodenheizung
Gesamtanzahl Stellplätze 1
Externe ID Agentur_3058
Parkplatz
  • (Tief-)Garage

Ausstattung:

  • icon Lift
  • icon Kabel/Satelliten-TV

Empfohlene Services unserer Partner

Objekt Beschreibung


NEUBAU: Tolle 2-Zimmer Gartenwohnung in Feldkirch zu verkaufen, Top 10

Das Objekt, welches sich in der Wohnanlage Küchlerstraße in Feldkirch befindet, überzeugt mit einer super Lage und tollen Infrastruktur.
Sie erreichen in wenigen Minuten sämtliche Einkaufsmöglichkeiten des täglichen Bedarfs, Lebensmittelgeschäfte, eine Busverbindung, Restaurants, den Autobahnanschluss das Zentrum und vieles mehr.

Die Wohnung befindet sich im Erdgeschoss und verfügt über ca. 40 m2 Wohnnutzfläche zuzüglich einer ca. 8,30 m2 großen Terrasse & ca. 55 m2 Gartenfläche.

Raumaufteilung:
- Diele
- Badezimmer
- Schlafzimmer inkl. Ankleide
- Nische für die Waschmaschine
- Wohn-/Essbereich mit integrierter Einbauküche
- Terrasse/Garten

Die Wohnung punktet mit einer idealen Raumaufteilung. Große Fensterfronten im Schlaf- und Wohnzimmer sorgen für ein helles und angenehmes Raumgefühl.
Der geräumige, helle und offene Wohnbereich ist geschickt in Funktionszonen zum Essen, Wohnen und Kochen unterteilt. Zudem wird noch eine wunderbare Einbauküche eingebaut.

Neben der praktischen Fußbodenheizung, welche sich durch die Wohnung zieht, sind dreifach verglaste Fenster verbaut worden. Diese sorgen zusätzlich für eine sehr gute Isolierung.

Das Badezimmer ist mit einer begehbarer Dusche und einem hochwertigen WC ausgestattet.
Zudem finden Sie jeweils moderne Fließen vor. Diese sehen nicht nur super aus, sondern bieten auch eine einfache Reinigung.
Das Schlafzimmer und der Wohn-/Essbereich wurden mit einem schönen Parkett versehen.
Ein Waschmaschinenanschluss finden Sie in der Nische vor.

Der Kaufpreis setzt sich wie folgt zusammen:

Kaufpreis Wohnung EUR 248.000,-- zzgl. 20% Ust.
Kaufpreis Tiefgarage EUR 24.000,-- zzgl. 20% Ust.

Die Ust. kann beim Finanzamt überrechnet werden.

Als Zubehör steht ein Kellerabteil zur Verfügung.

Highlights der Wohnung:
Top Lage
hochwertige Ausstattung
Tischlerküche
schöner Parkett- & Fliesenboden
modernes Badezimmer

Seitens der ImmoAgentur wird auf ein bestehendes wirtschaftliches oder familiäres Naheverhältnis zwischen ihr und dem/der vermittelten Dritten ausdrücklich hingewiesen.

Am besten machen Sie sich selber ein Bild dieser wunderbaren Wohnung und melden Sie sich für einen unverbindlichen Besichtigungstermin.

Einmalkosten:
Grundbuchseintragung: 1,1%
Grunderwerbssteuer: 3,5%
Notarkosten: 1,2% inkl. MwSt.
Maklerhonorar: 3,6% inkl. MwSt.

Alle Angaben nach bestem Wissen. Irrtum und Zwischenverkauf vorbehalten. Dieses Expose ist eine Vorinformation, als Rechtsgrundlage gilt alleine der abgeschlossene Kaufvertrag. §15 der Maklerverordnung gilt als vereinbart.