ländleimmo.at
/
Mietobjekt
/
Wohnung
/
Allgemein
/
Vorarlberg
/
Dornbirn
/ Lustenau
/
Lichtdurchflutet & gut gelegen – 3-Zimmerwohnung mit TG-Platz
Lichtdurchflutet & gut gelegen – 3-Zimmerwohnung mit TG-Platz
3 Zimmer
Grundriss
62,17 m²
Wohnfläche
€ 1.300
Preise
Gesamtbelastung
Miete + Betriebskosten + Heizkosten + Sonstige Kosten; inkl. MwSt.
€ 1.300
Netto-Kaltmiete
€ 1.018,4
Betriebskosten (exkl. Mwst)
€ 281,6
Gesamtmiete (inkl. MwSt.)
Gesamtbelastung abzüglich Heizkosten BRUTTO
€ 1.300
Miete (exkl. MwSt.)
Miete ohne MwSt., Betriebskosten und Heizkosten
€ 1.018,4
Kaution
€ 4.000
Objekt Informationen
Wohnfläche
62,17 m²
Zimmer
3
Baujahr
1991
Objektart
Wohnung
Objekttyp
Allgemein
Fahrradraum
Vorhanden
Heizung
- Gas
- Fußbodenheizung
Verfügbar ab
Ab 01.12.2025
Gesamtanzahl Stellplätze
1
Heizwärmebedarf (HWB)
75,88 kwh/m²a
Klasse Heizwärmebedarf (Klasse HWB)
C
Gesamtenergieeffizienz-Faktor (fGEE)
1,34 kwh/m²a
Klasse Gesamtenergieeffizienz-Faktor (Klasse fGEE)
C
Externe ID
REALBURO_Hagen5947
Parkplatz
- (Tief-)Garage
Empfohlene Services unserer Partner
Objekt Beschreibung
Charmante 3-Zimmerwohnung in Lustenau zu vermieten!
Zur Vermietung steht eine helle und gut geschnittene 3-Zimmerwohnung in ruhiger Wohnlage von Lustenau. Die Wohnung befindet sich in einem gepflegten Mehrparteienhaus und überzeugt durch ihre durchdachte Raumaufteilung sowie eine gute Ausstattung.
Einkaufsmöglichkeiten, Schulen, Kindergärten sowie öffentliche Verkehrsmittel sind in wenigen Minuten erreichbar.
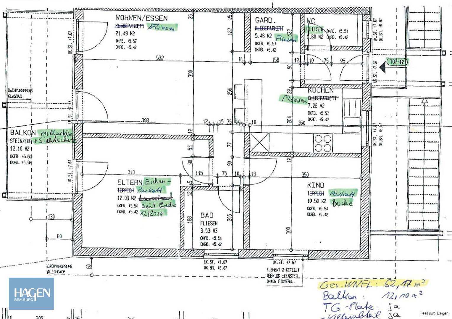
Die Wohnung mit ca. 62,17 m² befindet sich im 2. Obergeschoss und teilt sich wie folgt auf:
- Eingangsbereich
- Separate Toilette
- Küche
- Wohn-/ Essbereich
- Schlafzimmer
- Kinderzimmer
- Badezimmer
- Balkon
Ein Tiefgaragenplatz und ein Kellerabteil sind der Wohnung zugehörig.
Miete: € 1.018,40 (Inkl. TG-Platz)
Betriebskosten: ca. € 281,60
Kaution: € 4.000,00
Verfügbar ab: 01.12.2025
Dann vereinbaren Sie doch einfach einen Termin mit uns – eine Besichtigung lohnt sich.
Das Realbüro Hagen-Team garantiert professionelle Beratung und völlige Unabhängigkeit.
Durch unsere ausgeprägte Kompetenz und langjährige Erfahrung versichern wir Ihnen eine problemlose und sorgenfreie Abwicklung bis zur Schlüsselübergabe und darüber hinaus.
Ihr Ansprechpartner:
Leonie Schönleitner (Tel. 05577/83 111-13) oder
Sonstige Auslagen:
Vertragserrichtungskosten
Zur Vermietung steht eine helle und gut geschnittene 3-Zimmerwohnung in ruhiger Wohnlage von Lustenau. Die Wohnung befindet sich in einem gepflegten Mehrparteienhaus und überzeugt durch ihre durchdachte Raumaufteilung sowie eine gute Ausstattung.
Einkaufsmöglichkeiten, Schulen, Kindergärten sowie öffentliche Verkehrsmittel sind in wenigen Minuten erreichbar.
Die Wohnung mit ca. 62,17 m² befindet sich im 2. Obergeschoss und teilt sich wie folgt auf:
- Eingangsbereich
- Separate Toilette
- Küche
- Wohn-/ Essbereich
- Schlafzimmer
- Kinderzimmer
- Badezimmer
- Balkon
Ein Tiefgaragenplatz und ein Kellerabteil sind der Wohnung zugehörig.
Miete: € 1.018,40 (Inkl. TG-Platz)
Betriebskosten: ca. € 281,60
Kaution: € 4.000,00
Verfügbar ab: 01.12.2025
Einmalkosten / Nebenkosten
Haben wir Ihr Interesse geweckt?Dann vereinbaren Sie doch einfach einen Termin mit uns – eine Besichtigung lohnt sich.
Das Realbüro Hagen-Team garantiert professionelle Beratung und völlige Unabhängigkeit.
Durch unsere ausgeprägte Kompetenz und langjährige Erfahrung versichern wir Ihnen eine problemlose und sorgenfreie Abwicklung bis zur Schlüsselübergabe und darüber hinaus.
Ihr Ansprechpartner:
Leonie Schönleitner (Tel. 05577/83 111-13) oder
Sonstige Auslagen:
Vertragserrichtungskosten