ländleimmo.at
/
Mietobjekt
/
Wohnung
/
Allgemein
/
Vorarlberg
/
Bregenz
/ Wolfurt
/
Großzügige 3-Zimmerwohnung in ruhiger Lage in Wolfurt zu vermieten
Großzügige 3-Zimmerwohnung in ruhiger Lage in Wolfurt zu vermieten
3 Zimmer
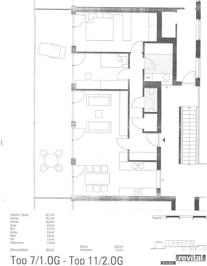
Grundriss
78,30 m²
Wohnfläche
€ 1.510,86
Preise
Gesamtbelastung
Miete + Betriebskosten + Heizkosten + Sonstige Kosten; inkl. MwSt.
€ 1.510,86
Netto-Kaltmiete
€ 1.062
Betriebskosten (exkl. Mwst)
€ 448,86
Kaution
3 Bruttomonatsmieten inkl. BK € 4.540,00 (Bankgarantie oder Sparbuch)
Objekt Informationen
Wohnfläche
78,30 m²
Zimmer
3
Etage
2. OG
Bautyp
Gebraucht
Baujahr
2002
Objektart
Wohnung
Objekttyp
Allgemein
Badezimmer
1
Balkon
36,00 m²
Keller
5,40 m²
Abstellraum
Vorhanden
Fahrradraum
Vorhanden
Heizung
- Gas
- Solar
- Fußbodenheizung
Verfügbar ab
ab sofort
Befristung
60 Monate
Gesamtanzahl Stellplätze
1
Heizwärmebedarf (HWB)
55,00 kwh/m²a
Klasse Heizwärmebedarf (Klasse HWB)
C
Gesamtenergieeffizienz-Faktor (fGEE)
0,97 kwh/m²a
Klasse Gesamtenergieeffizienz-Faktor (Klasse fGEE)
B
Externe ID
BB-25-01008
Ausstattung:
-
Einbauküche
-
Boden: Fliesen, Parkett
-
Bad mit: Badewanne, Fenster
-
Lift
Empfohlene Services unserer Partner
Objekt Beschreibung
Willkommen in Ihrer neuen Wohlfühloase in Wolfurt! Diese gepflegte Etagenwohnung, erbaut im Jahr 2002, bietet Ihnen auf 78 m² Wohnfläche ein komfortables Zuhause zum Mieten. Die Wohnung besticht durch ihre gut durchdachte Raumaufteilung mit insgesamt 3 Zimmern, darunter 2 gemütliche Schlafzimmer und ein modernes Badezimmer.
Der großzügige Wohnbereich ist mit einem Parkettboden ausgestattet, der für ein warmes Ambiente sorgt. Die Einbauküche erfüllt alle Ansprüche an Funktionalität. Ein besonderes Highlight ist der einladende Balkon, auf dem Sie entspannte Augenblicke im Freien genießen können.
Die Wohnung verfügt zudem über einen Keller, der zusätzlichen Stauraum bietet. Sie ist ab sofort verfügbar und bietet ideale Voraussetzungen für Singles, Paare oder kleine Familien, die großen Wert auf ein gepflegtes Wohnumfeld legen. Profitieren Sie von einer ausgezeichneten Lage in Wolfurt.
Zögern Sie nicht und vereinbaren Sie noch heute einen Besichtigungstermin, um sich von der Qualität dieser Immobilie persönlich zu überzeugen. Lassen Sie sich von Ihrem neuen Zuhause begeistern!
Der großzügige Wohnbereich ist mit einem Parkettboden ausgestattet, der für ein warmes Ambiente sorgt. Die Einbauküche erfüllt alle Ansprüche an Funktionalität. Ein besonderes Highlight ist der einladende Balkon, auf dem Sie entspannte Augenblicke im Freien genießen können.
Die Wohnung verfügt zudem über einen Keller, der zusätzlichen Stauraum bietet. Sie ist ab sofort verfügbar und bietet ideale Voraussetzungen für Singles, Paare oder kleine Familien, die großen Wert auf ein gepflegtes Wohnumfeld legen. Profitieren Sie von einer ausgezeichneten Lage in Wolfurt.
Zögern Sie nicht und vereinbaren Sie noch heute einen Besichtigungstermin, um sich von der Qualität dieser Immobilie persönlich zu überzeugen. Lassen Sie sich von Ihrem neuen Zuhause begeistern!