ländleimmo.at
/
Kaufobjekt
/
Wohnung
/
Allgemein
/
Vorarlberg
/
Bregenz
/ Gaißau
/
Sehr ruhig gelegene 2-Zimmer Gartenwohnung (Top 01)
Sehr ruhig gelegene 2-Zimmer Gartenwohnung (Top 01)
2 Zimmer
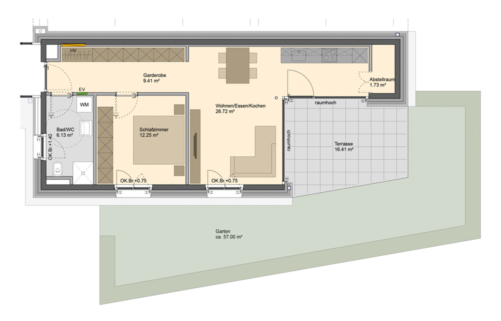
Grundriss
55,84 m²
Wohnfläche
Preis auf Anfrage
Preise
Preis auf Anfrage
Preis (Auto-)Stellplatz
zzgl. zum Kaufpreis
€ 27.000
Objekt Informationen
Wohnfläche
55,84 m²
Zimmer
2
Etage
EG
Bautyp
Neubau/Erstbezug
Objektart
Wohnung
Objekttyp
Allgemein
Terrasse
16,35 m²
Garten
57,04 m²
Keller
5,20 m²
Externe ID
justimmo_53092_948-1
Parkplatz
- (Tief-)Garage
Ausstattung:
-
Lift
Empfohlene Services unserer Partner
Objekt Beschreibung
Sehr ruhig gelegene 2-Zimmer Gartenwohnung (Top 01)
STILLVOLLER WOHNGENUSS IN HARMONISCHER LAGE
Eingebettet in die reizvolle Naturlandschaft des Rheindeltas entsteht eine außergewöhnlich ruhige Kleinwohnanlage mit nur sieben hochwertigen 2- und 3-Zimmer Eigentumswohnungen.
Die Architektur des Neubauprojekts Ofenstraße vereint Moderne und Naturverbundenheit: Eine stilvolle Holzfassade sorgt für eine harmonische Eingliederung in die Umgebung und vermittelt eine warme, behagliche Wohnatmosphäre. Große Fensterfronten öffnen den Blick in die grüne Umgebung und lassen die Innenräume in natürlichem Licht erstrahlen.
Die durchdachten Grundrisse der Wohnungen sorgen für optimalen Wohnkomfort und sind perfekt für Singles, Paare oder kleine Familien geeignet. Besondere Momente im Freien und an der Sonne bieten die großzügigen Gärten und Terrassen. Jede Wohnung verfügt zudem über ein privates Kellerabteil, das für ausreichend Stauraum sorgt.
RUHIGE GEMEINDE IM NATURPARADIES RHEINDELTA
Dank der ländlichen Umgebung erwartet die Bewohner der Ofenstraße eine äußerst entspannte, ruhige Wohnatmosphäre ? dennoch sind die wichtigsten Dinge des täglichen Lebens wie Nahversorger und Kinderbetreuung in naher Umgebung zu finden. Die nächstgelegene Gemeinde Höchst bietet weitere Einkaufsmöglichkeiten und Dienstleister. Die Grenznähe zur Schweiz macht Gaißau auch für Pendler attraktiv.
Vor allem die Lage am Naherholungs- und Naturschutzgebiet Rheindelta, welches zahlreiche Freizeitmöglichkeiten bietet, prägt das Wohn- und Lebensgefühl in Gaißau. Neben den herrlichen Rundwanderwegen am Rheinspitz warten zahlreiche wunderschöne Badeplätze und Fahrradwege am Bodensee sowie entlang des Rheins von Gaißau über Höchst bis Hard auf die Bewohner. In 7 Minuten ist das Bodenseeufer mit dem Fahrrad zu erreichen.
Mit der Wohnbauförderung in Vorarlberg bleibt der Traum vom Eigenheim attraktiv. Profitieren Sie jetzt von guten Konditionen – und sparen Sie zusätzlich bis zu € 11.500,- durch den Entfall der Nebengebühren.
Weitere Wohneinheiten und Projekte finden Sie auf unserer Homepage: www.zima.at
STILLVOLLER WOHNGENUSS IN HARMONISCHER LAGE
Eingebettet in die reizvolle Naturlandschaft des Rheindeltas entsteht eine außergewöhnlich ruhige Kleinwohnanlage mit nur sieben hochwertigen 2- und 3-Zimmer Eigentumswohnungen.
Die Architektur des Neubauprojekts Ofenstraße vereint Moderne und Naturverbundenheit: Eine stilvolle Holzfassade sorgt für eine harmonische Eingliederung in die Umgebung und vermittelt eine warme, behagliche Wohnatmosphäre. Große Fensterfronten öffnen den Blick in die grüne Umgebung und lassen die Innenräume in natürlichem Licht erstrahlen.
Die durchdachten Grundrisse der Wohnungen sorgen für optimalen Wohnkomfort und sind perfekt für Singles, Paare oder kleine Familien geeignet. Besondere Momente im Freien und an der Sonne bieten die großzügigen Gärten und Terrassen. Jede Wohnung verfügt zudem über ein privates Kellerabteil, das für ausreichend Stauraum sorgt.
RUHIGE GEMEINDE IM NATURPARADIES RHEINDELTA
Dank der ländlichen Umgebung erwartet die Bewohner der Ofenstraße eine äußerst entspannte, ruhige Wohnatmosphäre ? dennoch sind die wichtigsten Dinge des täglichen Lebens wie Nahversorger und Kinderbetreuung in naher Umgebung zu finden. Die nächstgelegene Gemeinde Höchst bietet weitere Einkaufsmöglichkeiten und Dienstleister. Die Grenznähe zur Schweiz macht Gaißau auch für Pendler attraktiv.
Vor allem die Lage am Naherholungs- und Naturschutzgebiet Rheindelta, welches zahlreiche Freizeitmöglichkeiten bietet, prägt das Wohn- und Lebensgefühl in Gaißau. Neben den herrlichen Rundwanderwegen am Rheinspitz warten zahlreiche wunderschöne Badeplätze und Fahrradwege am Bodensee sowie entlang des Rheins von Gaißau über Höchst bis Hard auf die Bewohner. In 7 Minuten ist das Bodenseeufer mit dem Fahrrad zu erreichen.
Mit der Wohnbauförderung in Vorarlberg bleibt der Traum vom Eigenheim attraktiv. Profitieren Sie jetzt von guten Konditionen – und sparen Sie zusätzlich bis zu € 11.500,- durch den Entfall der Nebengebühren.
Weitere Wohneinheiten und Projekte finden Sie auf unserer Homepage: www.zima.at