FLEXIBEL
FINANZIEREN

Kreditbedarf
Eigenmittel
%
Jahre
Zins | Laufzeit
mtl. Rate
ländleimmo.at / Kaufobjekt / Wohnung / Allgemein / Vorarlberg / Bregenz / Riezlern / 3-Zimmer-Wohnung in historischen Haus in Riezlern

3-Zimmer-Wohnung in historischen Haus in Riezlern

images icon

N/A

Grundriss

images icon

55,79 m²

Wohnfläche

€ 149.000

Preise

Kaufpreis € 149.000

Objekt Informationen

Wohnfläche 55,79 m²
Bautyp Altbau
Objektart Wohnung
Objekttyp Allgemein
Balkon 7,38 m²
Keller 4,48 m²
Heizung
  • Öl
Heizwärmebedarf (HWB) 38 kwh/m²a
Klasse Heizwärmebedarf (Klasse HWB) B
Gesamtenergieeffizienz-Faktor (fGEE) 1,26 kwh/m²a
Klasse Gesamtenergieeffizienz-Faktor (Klasse fGEE) C

Ausstattung:

  • icon Einbauküche
  • icon Wohnküche / offene Küche
  • icon Bad mit: Dusche
  • icon Ausrichtung Balkon: Südosten

Empfohlene Services unserer Partner

Objekt Beschreibung

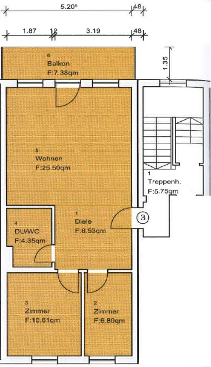
Diese kompakte 3-Zimmer-Wohnung im ersten Obergeschoss des Hauses Wald 3 in Riezlern bietet rund 57 m² Wohnnutzfläche und eine funktionale Raumaufteilung. Über die Diele sind der Wohnbereich mit Küchenzeile, zwei Schlafzimmer sowie das Badezimmer zugänglich.


Der Wohnraum mit integrierter Küche bildet das Zentrum der Wohnung und verfügt über den Zugang zum nach Südosten orientierten Balkon, der zusätzlichen Außenraum für den Alltag bietet. Zwei Zimmer – unterschiedlich groß – ermöglichen flexible Nutzungsmöglichkeiten, etwa als Schlafzimmer, Arbeits- oder Gästezimmer. Das Badezimmer ist mit Dusche, Waschbecken und WC ausgestattet und entspricht einem gepflegten, dem Gebäudealter angemessenen Zustand.


Die Wohnung präsentiert sich insgesamt solide und nutzbar; kleinere optische Adaptierungen können je nach persönlichem Anspruch sinnvoll sein. Ein Kellerabteil mit rund 4,5 m² bietet zusätzlichen Stauraum. Den Bewohnern des Hauses steht außerdem eine großzügige, rund 71 m² große Gemeinschaftsterrasse mit südwestlicher Ausrichtung zur Verfügung.


Die Wohnung ist ab März 2026 oder nach Vereinbarung verfügbar.


Flächenübersicht


Wohnnutzfläche: ca. 57 m²

  1. Diele: ca. 8,5 m²
  2. Wohn-/Essbereich mit Küche: ca. 25,5 m²
  3. Zimmer: ca. 10,6 m²
  4. Zimmer: ca. 6,8 m²
  5. Bad/WC: ca. 4,35 m²


Balkon: ca. 7,4 m²

Kellerabteil: ca. 4,5 m²


Monatliche Kosten (Stand 2025)


  1. Betriebskosten (inkl. USt.): € 267,03
  2. Reparaturrücklage: € 108,83
  3. Gesamtbelastung monatlich: € 375,86



Weitere Eckdaten


  1. Heizung: Zentralheizung | Öl
  2. Stockwerk: 1. OG
  3. Bau- und Sanierungsstand: historischer Altbestand, modernisiert
  4. Verfügbarkeit: März 2026 oder nach Vereinbarung


Kaufpreis


  1. Wohnung € 149.000


Kaufnebenkosten


  1. Grunderwerbssteuer: 3,50 %
  2. Grundbucheintragungsgebühr: 1,10 %
  3. Vertragserstellung: 2,00 % (zzgl. USt.)
  4. Vermittlungshonorar: 3,60 % (inkl. USt.)
  5. Bank, Barauslagen | Beglaubigungskosten: nach Aufwand



Information:


Alle Angaben erfolgen ohne Gewähr und beruhen auf Angaben des Abgebers und den vorliegenden Unterlagen. Rechtsgrundlage des Kaufs stellt ausschließlich der Kaufvertrag dar. Wir weisen darauf hin, dass wir als Doppelmakler tätig sind. Angebot freibleibend, vorbehaltlich Irrtum und Zwischenverkauf.



Angehängte Dokumente