FLEXIBEL
FINANZIEREN

Kreditbedarf
Eigenmittel
%
Jahre
Zins | Laufzeit
mtl. Rate
ländleimmo.at / Kaufobjekt / Wohnung / Allgemein / Vorarlberg / Bludenz / Bludenz / Helle 84 m² Wohnung im Zentrum von Bludenz – Bergblick & Verkehrsanbindung

Helle 84 m² Wohnung im Zentrum von Bludenz – Bergblick & Verkehrsanbindung

images icon

3 Zimmer

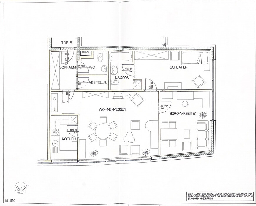
Grundriss

images icon

84,00 m²

Wohnfläche

€ 430.000

Daniel Wilhelmer

Preise

Kaufpreis € 430.000

Objekt Informationen

Wohnfläche 84,00 m²
Zimmer 3
Nebenräume 3
Etage 2. OG
Bautyp Gebraucht
Baujahr 2001
Bauweise
  • Massiv
Objektart Wohnung
Objekttyp Allgemein
Badezimmer 2
Keller Vorhanden
Abstellraum 8 m²
Fahrradraum Vorhanden
Heizung
  • Gas
Verfügbar ab Nach Absprache

Ausstattung:

  • icon Einbauküche
  • icon Bad mit: Badewanne
  • icon Lift
  • icon Gäste-WC
  • icon Rollladen
  • icon Seniorengerecht
  • icon Wasch-/Trockenraum

Empfohlene Services unserer Partner

Objekt Beschreibung

Helle, großzügige 84 m² Wohnung in zentraler Lage von Bludenz – Wohnen mit Bergblick


Diese attraktive Wohnung befindet sich in äußerst zentraler Lage am Postplatz in Bludenz, im Gebäude der Hypo Vorarlberg. Die im Jahr 2001 errichtete Wohnanlage überzeugt durch eine solide Bauweise, einen Lift im Gebäude sowie eine sehr angenehme Hausgemeinschaft.


Mit rund 84 m² Wohnfläche bietet die Wohnung eine großzügige und durchdachte Raumaufteilung. Große Fensterflächen sorgen für viel Tageslicht und schaffen eine helle, freundliche Wohnatmosphäre. Gleichzeitig eröffnet sich ein schöner Blick über die Dächer der Stadt bis hin zur umliegenden Bergwelt – ein besonderes Highlight dieser Wohnung.


Der offene Wohn- und Essbereich bildet das Herzstück des Zuhauses. Hier entsteht ein großzügiger Lebensraum, der ideal für gemeinsames Kochen, gemütliche Abende oder geselliges Beisammensein mit Familie und Freunden geeignet ist. Die harmonische Kombination aus viel Licht, offenen Flächen und warmem Holzboden verleiht der Wohnung eine einladende und zeitlose Wohnqualität.


Die angrenzende Küche ist praktisch in den Wohnbereich integriert und ermöglicht kurze Wege sowie eine funktionale Nutzung im Alltag.


Neben dem Wohnbereich stehen weitere Zimmer zur Verfügung, die flexibel als Schlafzimmer, Kinderzimmer oder Homeoffice genutzt werden können. Auch für junge Familien oder Paare mit Platzbedarf bietet die Wohnung somit vielseitige Möglichkeiten.


Ein weiterer Pluspunkt ist die ruhige und angenehme Atmosphäre im Haus. Die Nachbarschaft ist geprägt von einem freundlichen und respektvollen Miteinander, was zu einem sehr angenehmen Wohnklima beiträgt.


Besonders hervorzuheben ist die hervorragende Lage der Wohnung. Direkt vor dem Gebäude befindet sich die Bushaltestelle Postplatz, wodurch eine optimale Anbindung an den öffentlichen Verkehr gewährleistet ist. Der Bahnhof Bludenz ist in nur wenigen Gehminuten erreichbar. Auch die charmante Altstadt von Bludenz mit ihren Cafés, Restaurants und Geschäften liegt praktisch vor der Haustür.


Supermärkte, Apotheken, Ärzte sowie zahlreiche weitere Einrichtungen des täglichen Bedarfs befinden sich ebenfalls in unmittelbarer Umgebung und sind bequem zu Fuß erreichbar.


Darüber hinaus bietet die Region rund um Bludenz eine außergewöhnlich hohe Lebensqualität. Die umliegende Bergwelt eröffnet zahlreiche Freizeitmöglichkeiten – von Wandern und Radfahren im Sommer bis hin zu Skifahren in den nahegelegenen Skigebieten im Winter.


Diese Wohnung vereint eine zentrale Lage, helle Wohnräume und eine hochwertige Wohnqualität – ideal für alle, die urbanes Leben mit der Nähe zur Natur verbinden möchten.