FLEXIBEL
FINANZIEREN

Kreditbedarf
Eigenmittel
%
Jahre
Zins | Laufzeit
mtl. Rate
ländleimmo.at / Kaufobjekt / Investorenobjekte / Haus / Vorarlberg / Dornbirn / Dornbirn / Bewilligtes Bauprojekt für 13 Mikroapartments für Hotel Garni oder Kurzzeitvermietung in Dornbirn

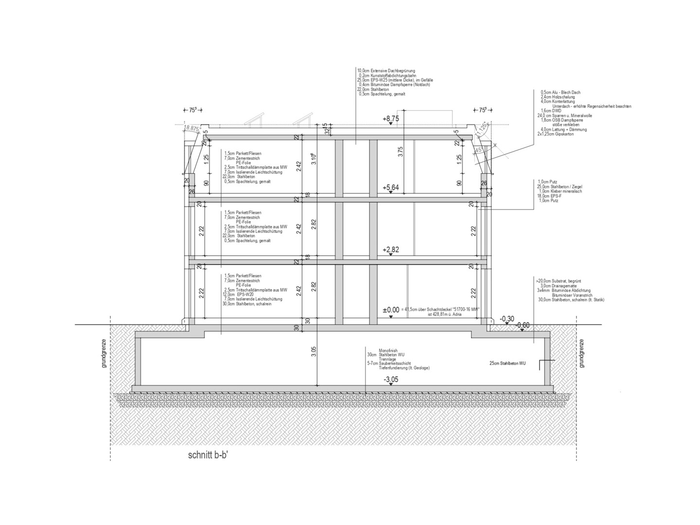
Bewilligtes Bauprojekt für 13 Mikroapartments für Hotel Garni oder Kurzzeitvermietung in Dornbirn

images icon

N/A

Grundriss

images icon

754,52 m²

Wohnfläche

Preis auf Anfrage

Preise

Preis auf Anfrage
Einmalkosten 3%
Provision 3%

Objekt Informationen

Wohnfläche 754,52 m²
Grundstücksgröße 617,00 m²
Baujahr 2027
Objektart Investorenobjekte
Objekttyp Haus
Heizwärmebedarf (HWB) 35,00 kwh/m²a
Klasse Heizwärmebedarf (Klasse HWB) B
Externe ID Remax_5019

Empfohlene Services unserer Partner

Objekt Beschreibung


13 Mikroapartement mit Baubewilligung
Beste Lage, ruhig & zentral, in Bahnhof- und Stadtnähe
Tiefgarage mit neun Autoeinstellplätzen, Fahrradabstellbereiche und Kellerabteile
Wohnfläche 450 m²
9 Tiefgaragenplätze
2 x 3 Zimmer Wohnungen
6 x 2 Zimmer Wohnungen
5 x 1 Zimmer Wohnungen
Ankauf Grundstück mit Baugenehmigung und Planung bzw. Schlüsselfertig