ländleimmo.at
/
Kaufobjekt
/
Haus
/
Reihenhaus
/
Vorarlberg
/
Feldkirch
/ Weiler
/
Wohnen wie im Reihenhaus - große Wohnung mit tollem Garten und viel Platz
Wohnen wie im Reihenhaus - große Wohnung mit tollem Garten und viel Platz
4 Zimmer
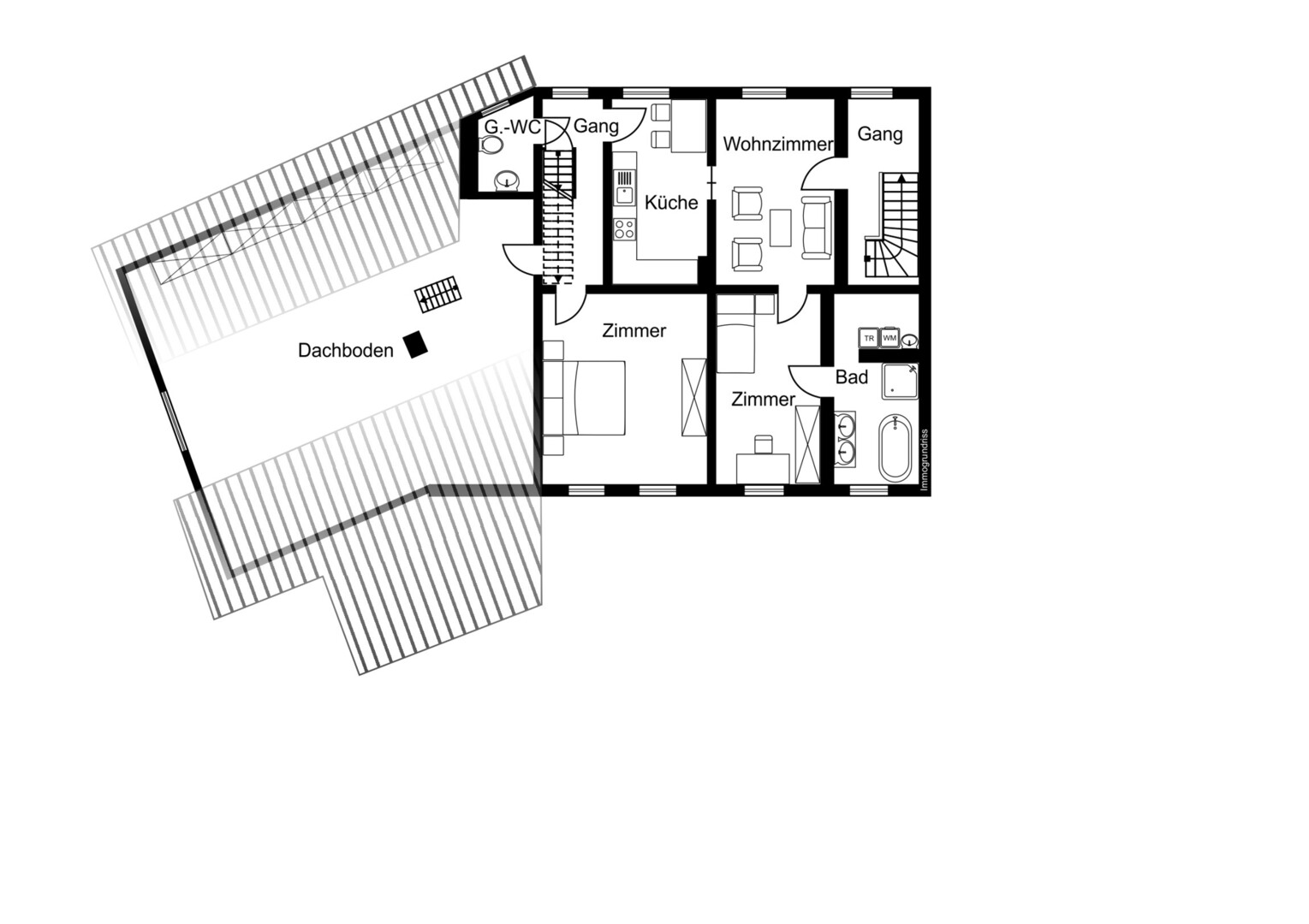
Grundriss
140,99 m²
Wohnfläche
Preis auf Anfrage
Preise
Preis auf Anfrage
Objekt Informationen
Wohnfläche
140,99 m²
Zimmer
4
Bautyp
Saniert
Objektart
Haus
Objekttyp
Reihenhaus
Badezimmer
1
Garten
179,62 m²
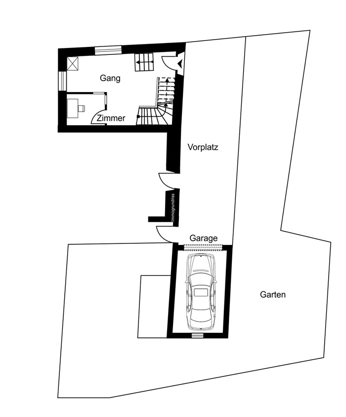
Keller
25,50 m²
Heizung
- Gas
- Solar
Gesamtanzahl Stellplätze
3
Heizwärmebedarf (HWB)
50,00 kwh/m²a
Klasse Heizwärmebedarf (Klasse HWB)
C
Gesamtenergieeffizienz-Faktor (fGEE)
73,00 kwh/m²a
Klasse Gesamtenergieeffizienz-Faktor (Klasse fGEE)
A
Externe ID
phima_1651
Parkplatz
- (Tief-)Garage (1)
- Freiplatz (2)
Empfohlene Services unserer Partner
Objekt Beschreibung
Willkommen in Ihrem neuen Zuhause – einer außergewöhnlich großzügigen 4-Zimmer-Wohnung, die sich anfühlt wie ein eigenes Reihenhaus. Hier genießen Sie maximale Privatsphäre, viel Platz und zahlreiche Highlights, die diese Immobilie zu etwas ganz Besonderem machen.
Bereits der eigene Eingang vermittelt ein unabhängiges Wohngefühl und sorgt für ein Höchstmaß an Individualität. Die durchdachte Raumaufteilung bietet viel Platz für Familien, Paare mit Anspruch oder alle, die Wohnen und Arbeiten stilvoll verbinden möchten.
Ein echtes Herzstück ist der wunderschöne Garten mit Terrasse – perfekt für entspannte Stunden im Freien, gesellige Abende oder einfach zum Abschalten im Grünen. Hier wird jeder Tag ein kleines Stück Urlaub.
Die Immobilie überzeugt zudem mit einer eigenen Garage, die Komfort und Sicherheit für Ihr Fahrzeug garantiert.
Ein besonderes Highlight ist der großartige Naturkeller, der nicht nur viel Stauraum bietet, sondern auch vielseitig nutzbar ist – ob als Weinlager, Hobbyraum, Partyraum oder für kreative Projekte.
Zusätzlich eröffnet der große Dachboden enormes Potenzial: Mit einem Ausbau können hier weitere Wohnflächen entstehen – ideal für zusätzliche Zimmer, ein Atelier oder einen Rückzugsort ganz nach Ihren Vorstellungen.
Ihre Vorteile auf einen Blick:
Wohnen mit Reihenhaus-Charakter
Eigener Eingang für maximale Privatsphäre
Großzügige 4 Zimmer mit optimaler Aufteilung
Sonniger Garten mit Terrasse
Eigene Garage
Vielseitig nutzbarer Naturkeller
Dachboden mit Ausbaupotenzial
Diese Immobilie vereint großzügiges Wohnen, Individualität und Zukunftsperspektiven in perfekter Lage. Ein Zuhause, das keine Wünsche offenlässt.
Lassen Sie sich begeistern und vereinbaren Sie noch heute einen Besichtigungstermin!
1,1% Grundbucheintragungsgebühr
3,0% Vermittlungsprovision zzgl. 20% MwSt.
Vertragserrichtungskosten
Beglaubigungskosten + Barauslagen
Lage:Die angebotene Immobilie befindet sich in der idyllischen Gemeinde Weiler im Herzen des Vorarlberger Rheintals – einer der begehrtesten Wohnregionen im Westen Österreichs. Die ruhige und zugleich zentrale Lage verbindet naturnahes Wohnen mit einer hervorragenden Infrastruktur.
Weiler überzeugt durch seinen charmanten, dörflichen Charakter und eine hohe Lebensqualität. Umgeben von einer beeindruckenden Bergkulisse genießen Sie hier eine entspannte Atmosphäre sowie zahlreiche Möglichkeiten zur Freizeitgestaltung in der Natur – ob Wandern, Radfahren oder Wintersport in den nahegelegenen Skigebieten.
Die Verkehrsanbindung ist ausgezeichnet: Die Rheintalautobahn (A14) ist in wenigen Minuten erreichbar und ermöglicht eine schnelle Verbindung in die umliegenden Städte wie Feldkirch, Dornbirn und Bregenz. Auch die Nachbarländer Schweiz und Liechtenstein sind bequem erreichbar, was den Standort besonders attraktiv für Pendler macht.
Im Ort selbst finden Sie alle Einrichtungen des täglichen Bedarfs: Nahversorger, Bäckereien, Schulen, Kindergärten sowie gastronomische Angebote sind schnell erreichbar. Darüber hinaus bietet die Region ein vielfältiges Kultur- und Freizeitangebot.
Die Kombination aus ruhiger Wohnlage, naturnaher Umgebung und ausgezeichneter Erreichbarkeit macht diese Immobilie zu einem idealen Zuhause für Familien, Berufstätige und alle, die das Leben im Grünen mit urbaner Nähe verbinden möchten.
Bereits der eigene Eingang vermittelt ein unabhängiges Wohngefühl und sorgt für ein Höchstmaß an Individualität. Die durchdachte Raumaufteilung bietet viel Platz für Familien, Paare mit Anspruch oder alle, die Wohnen und Arbeiten stilvoll verbinden möchten.
Ein echtes Herzstück ist der wunderschöne Garten mit Terrasse – perfekt für entspannte Stunden im Freien, gesellige Abende oder einfach zum Abschalten im Grünen. Hier wird jeder Tag ein kleines Stück Urlaub.
Die Immobilie überzeugt zudem mit einer eigenen Garage, die Komfort und Sicherheit für Ihr Fahrzeug garantiert.
Ein besonderes Highlight ist der großartige Naturkeller, der nicht nur viel Stauraum bietet, sondern auch vielseitig nutzbar ist – ob als Weinlager, Hobbyraum, Partyraum oder für kreative Projekte.
Zusätzlich eröffnet der große Dachboden enormes Potenzial: Mit einem Ausbau können hier weitere Wohnflächen entstehen – ideal für zusätzliche Zimmer, ein Atelier oder einen Rückzugsort ganz nach Ihren Vorstellungen.
Ihre Vorteile auf einen Blick:
Wohnen mit Reihenhaus-Charakter
Eigener Eingang für maximale Privatsphäre
Großzügige 4 Zimmer mit optimaler Aufteilung
Sonniger Garten mit Terrasse
Eigene Garage
Vielseitig nutzbarer Naturkeller
Dachboden mit Ausbaupotenzial
Diese Immobilie vereint großzügiges Wohnen, Individualität und Zukunftsperspektiven in perfekter Lage. Ein Zuhause, das keine Wünsche offenlässt.
Lassen Sie sich begeistern und vereinbaren Sie noch heute einen Besichtigungstermin!
Einmalkosten / Nebenkosten
3,5% Grunderwerbsteuer1,1% Grundbucheintragungsgebühr
3,0% Vermittlungsprovision zzgl. 20% MwSt.
Vertragserrichtungskosten
Beglaubigungskosten + Barauslagen
Lage:Die angebotene Immobilie befindet sich in der idyllischen Gemeinde Weiler im Herzen des Vorarlberger Rheintals – einer der begehrtesten Wohnregionen im Westen Österreichs. Die ruhige und zugleich zentrale Lage verbindet naturnahes Wohnen mit einer hervorragenden Infrastruktur.
Weiler überzeugt durch seinen charmanten, dörflichen Charakter und eine hohe Lebensqualität. Umgeben von einer beeindruckenden Bergkulisse genießen Sie hier eine entspannte Atmosphäre sowie zahlreiche Möglichkeiten zur Freizeitgestaltung in der Natur – ob Wandern, Radfahren oder Wintersport in den nahegelegenen Skigebieten.
Die Verkehrsanbindung ist ausgezeichnet: Die Rheintalautobahn (A14) ist in wenigen Minuten erreichbar und ermöglicht eine schnelle Verbindung in die umliegenden Städte wie Feldkirch, Dornbirn und Bregenz. Auch die Nachbarländer Schweiz und Liechtenstein sind bequem erreichbar, was den Standort besonders attraktiv für Pendler macht.
Im Ort selbst finden Sie alle Einrichtungen des täglichen Bedarfs: Nahversorger, Bäckereien, Schulen, Kindergärten sowie gastronomische Angebote sind schnell erreichbar. Darüber hinaus bietet die Region ein vielfältiges Kultur- und Freizeitangebot.
Die Kombination aus ruhiger Wohnlage, naturnaher Umgebung und ausgezeichneter Erreichbarkeit macht diese Immobilie zu einem idealen Zuhause für Familien, Berufstätige und alle, die das Leben im Grünen mit urbaner Nähe verbinden möchten.