FLEXIBEL
FINANZIEREN

Kreditbedarf
Eigenmittel
%
Jahre
Zins | Laufzeit
mtl. Rate
ländleimmo.at / Kaufobjekt / Haus / Einfamilienhaus / Vorarlberg / Feldkirch / Göfis / CHARMANTES EINFAMILIENHAUS IN SONNIGER LAGE

CHARMANTES EINFAMILIENHAUS IN SONNIGER LAGE

images icon

5 Zimmer

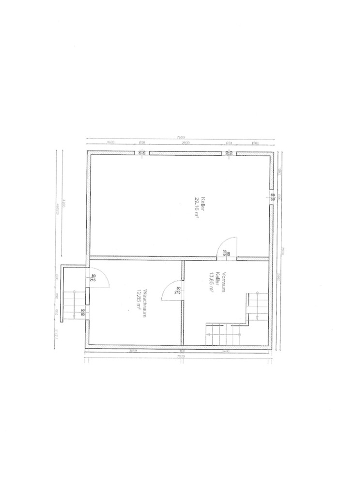
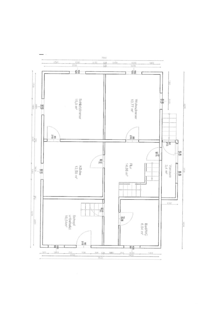
Grundriss

images icon

100,00 m²

Wohnfläche

€ 265.000

Preise

Kaufpreis € 265.000

Objekt Informationen

Wohnfläche 100,00 m²
Grundstücksgröße 474,00 m²
Zimmer 5
Objektart Haus
Objekttyp Einfamilienhaus
Badezimmer 1
Keller 50,00 m²
Heizung
  • Ofen/Kamin
Verfügbar ab ab sofort
Heizwärmebedarf (HWB) 277,00 kwh/m²a
Klasse Heizwärmebedarf (Klasse HWB) G
Gesamtenergieeffizienz-Faktor (fGEE) 5,74 kwh/m²a
Klasse Gesamtenergieeffizienz-Faktor (Klasse fGEE) G
Externe ID Egger_2025-330

Ausstattung:

  • icon Einbauküche
  • icon Boden: Fliesen, Parkett, Teppichboden
  • icon Bad mit: Badewanne, Fenster
  • icon Gäste-WC

Empfohlene Services unserer Partner

Objekt Beschreibung


Dieses charmante Einfamilienhaus befindet sich in einer ruhigen und sonnigen Lage in der beliebten Gemeinde Göfis. Umgeben von einer malerischen Landschaft und einer hervorragenden Anbindung an das umliegende Verkehrsnetz, bietet dieses Haus die perfekte Mischung aus ländlicher Idylle und städtischer Nähe.

Das renovierungsbedürftige Einfamilienhaus erstreckt sich über zwei Etagen und ist voll unterkellert.

Das Erdgeschoss beherbergt eine Küche, 1 Wohnzimmer, 1 Schlafzimmer sowie ein Badezimmer.
Im Obergeschoss befinden sich 2 Schlafzimmer sowie ein ausbaubarer Dachboden.

Das Dach sowie die Elektroinstallationen wurden vor einigen Jahren erneuert, was bereits eine wertvolle Grundlage für die anstehenden Renovierungsarbeiten schafft.

Lassen Sie sich diese Gelegenheit nicht entgehen und vereinbaren Sie noch heute einen Besichtigungstermin!

Wir freuen uns auf Sie!

Nebenkosten:
3,5 % Grunderwerbssteuer
3,6 % Vermittlungshonorar
1,2 % Vertragserrichtungskosten
(alle Nebenkosten inkl. MwSt.)
Möglichkeit der Befreiung von der Grundbuchseintragungsgebühr gemäß GGG Richtlinie §25a

Wir weisen Sie darauf hin, dass die angeführten Grundrisse als Symbolbilder gelten und diese sowie die darin enthaltenen Flächenangaben von den tatsächlichen Gegebenheiten abweichen können. Ebenso weisen wir Sie darauf hin, dass wir als Doppelmakler tätig sind.

Dieses Angebot ist freibleibend, Irrtum und Zwischenverkauf bleiben ausdrücklich vorbehalten.

Dieses Expose ist eine Vorinformation, als Rechtsgrundlage gilt ausschließlich der abgeschlossene Kaufvertrag. § 15 der Maklerverordnung gilt als vereinbart.

YouTube Video

Stimme unseren Cookie-Richtlinien (Marketing) zu, um dieses Video sehen zu können Zustimmung geben