ländleimmo.at
/
Kaufobjekt
/
Haus
/
Einfamilienhaus
/
Vorarlberg
/
Bregenz
/ Fußach
/
Besondere Immobilie: Bungalow in Fußach zu verkaufen
Besondere Immobilie: Bungalow in Fußach zu verkaufen
N/A
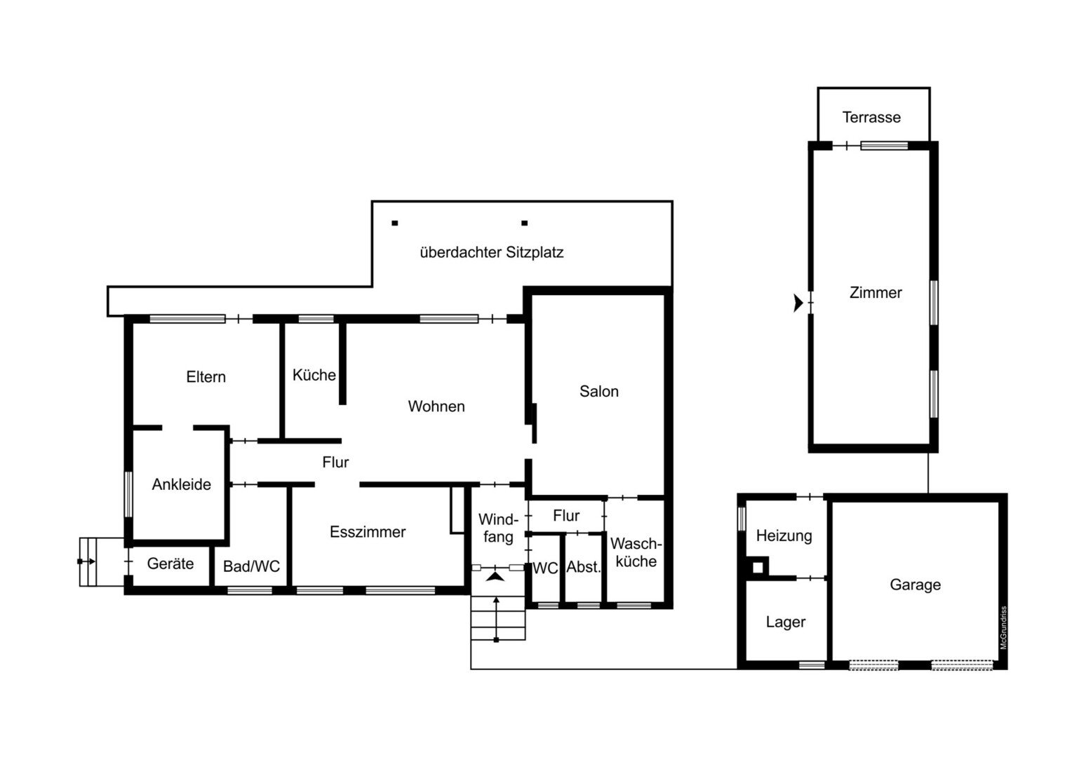
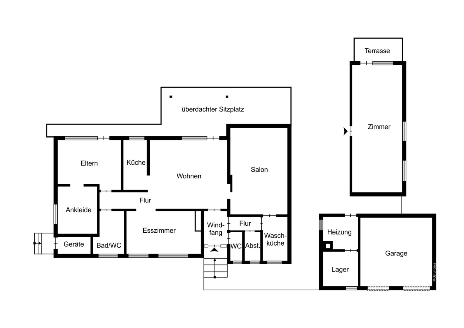
Grundriss
150,00 m²
Wohnfläche
€ 850.000
Preise
Kaufpreis
€ 850.000
Objekt Informationen
Wohnfläche
150,00 m²
Grundstücksgröße
1.084,00 m²
Baujahr
1974
Objektart
Haus
Objekttyp
Einfamilienhaus
Badezimmer
1
Heizung
- Gas
- Holz
- Ofen/Kamin
Verfügbar ab
nach Vereinbarung
Gesamtanzahl Stellplätze
2
Externe ID
GreilWoelfel_387352_1018
Parkplatz
- (Tief-)Garage (1)
- Freiplatz (2)
Empfohlene Services unserer Partner
Objekt Beschreibung
Zum Kauf steht ein charmantes Einfamilienhaus in der idyllischen Gemeinde Fußach, das 1974 erbaut wurde. Auf einem großzügigen Grundstück von ca. 1.084 m² bietet dieses Anwesen rund 150 m² Wohnfläche im Erdgeschoß.
Das Haus verfügt über zwei gemütliche Schlafzimmer und ein geräumiges Badezimmer, das Komfort und Bequemlichkeit garantiert. Das Highlight des Wohnbereichs ist ein Kamin, der an kalten Tagen für wohlige Wärme und eine behagliche Atmosphäre sorgt.
Der Außenbereich des Anwesens lädt zu geselligen Stunden im Freien ein und bietet ausreichend Platz für Gestaltungsfreiheit und persönliche Projekte. Ob Sie einen grünen Daumen haben oder einfach nur die Ruhe in Ihrem eigenen Garten genießen möchten, hier stehen Ihnen alle Möglichkeiten offen.
Außerdem befinfet sich im Garten ein Gästehaus oder Atelier, welches ebenfalls mit einem Kaminofen und zusätzlich mit einer Fußbodenheizung ausgestattet ist.
In wenigen Minuten erreichen Sie mit dem Fahrrad das Bodenseeufer mit wunderbaren, ruhigen Badeplätzen.
Die Verfügbarkeit der Immobilie ist nach Vereinbarung möglich, sodass Sie in Absprache mit den aktuellen Eigentümern einen für Sie passenden Zeitpunkt für den Einzug finden können.
Nutzen Sie diese seltene Gelegenheit, in der malerischen Umgebung von Fußach ein gemütliches Zuhause zu erwerben, das auf Ihre persönliche Note wartet. Kontaktieren Sie uns noch heute für weitere Informationen und einen Besichtigungstermin.
Kaufpreis: € 850.000,-
Energieausweis: In Erstellung
Getätigte Sanierungen:
- Gashzeiung (2017)
- Dach (Eternit) inkl. Isolierung (2017)
- Fenster - Kunststoff, 2-fach-Verglasung (2013/14, im OG 2017)
- Gästehaus/Atelier (2011)
Vereinbaren Sie noch heute Ihren persönlichen Besichtigungstermin.
Nebenkostenübersicht:
3,5 % Grunderwerbssteuer
1,1 % Grundbuchseintragung
1 % zzgl. MWSt. Vertragserrichtungskosten
3 % zzgl. MWSt. Maklerprovision
Das Haus verfügt über zwei gemütliche Schlafzimmer und ein geräumiges Badezimmer, das Komfort und Bequemlichkeit garantiert. Das Highlight des Wohnbereichs ist ein Kamin, der an kalten Tagen für wohlige Wärme und eine behagliche Atmosphäre sorgt.
Der Außenbereich des Anwesens lädt zu geselligen Stunden im Freien ein und bietet ausreichend Platz für Gestaltungsfreiheit und persönliche Projekte. Ob Sie einen grünen Daumen haben oder einfach nur die Ruhe in Ihrem eigenen Garten genießen möchten, hier stehen Ihnen alle Möglichkeiten offen.
Außerdem befinfet sich im Garten ein Gästehaus oder Atelier, welches ebenfalls mit einem Kaminofen und zusätzlich mit einer Fußbodenheizung ausgestattet ist.
In wenigen Minuten erreichen Sie mit dem Fahrrad das Bodenseeufer mit wunderbaren, ruhigen Badeplätzen.
Die Verfügbarkeit der Immobilie ist nach Vereinbarung möglich, sodass Sie in Absprache mit den aktuellen Eigentümern einen für Sie passenden Zeitpunkt für den Einzug finden können.
Nutzen Sie diese seltene Gelegenheit, in der malerischen Umgebung von Fußach ein gemütliches Zuhause zu erwerben, das auf Ihre persönliche Note wartet. Kontaktieren Sie uns noch heute für weitere Informationen und einen Besichtigungstermin.
Kaufpreis: € 850.000,-
Energieausweis: In Erstellung
Getätigte Sanierungen:
- Gashzeiung (2017)
- Dach (Eternit) inkl. Isolierung (2017)
- Fenster - Kunststoff, 2-fach-Verglasung (2013/14, im OG 2017)
- Gästehaus/Atelier (2011)
Vereinbaren Sie noch heute Ihren persönlichen Besichtigungstermin.
Nebenkostenübersicht:
3,5 % Grunderwerbssteuer
1,1 % Grundbuchseintragung
1 % zzgl. MWSt. Vertragserrichtungskosten
3 % zzgl. MWSt. Maklerprovision