FLEXIBEL
FINANZIEREN

Kreditbedarf
Eigenmittel
%
Jahre
Zins | Laufzeit
mtl. Rate
ländleimmo.at / Kaufobjekt / Haus / Einfamilienhaus / Vorarlberg / Bregenz / Mittelberg / Ein Stück heile Welt...Alpenchalet in eindrucksvoller Lage

Ein Stück heile Welt...Alpenchalet in eindrucksvoller Lage

images icon

8 Zimmer

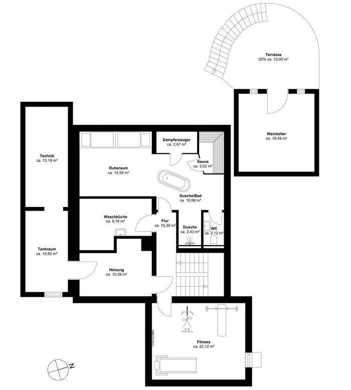
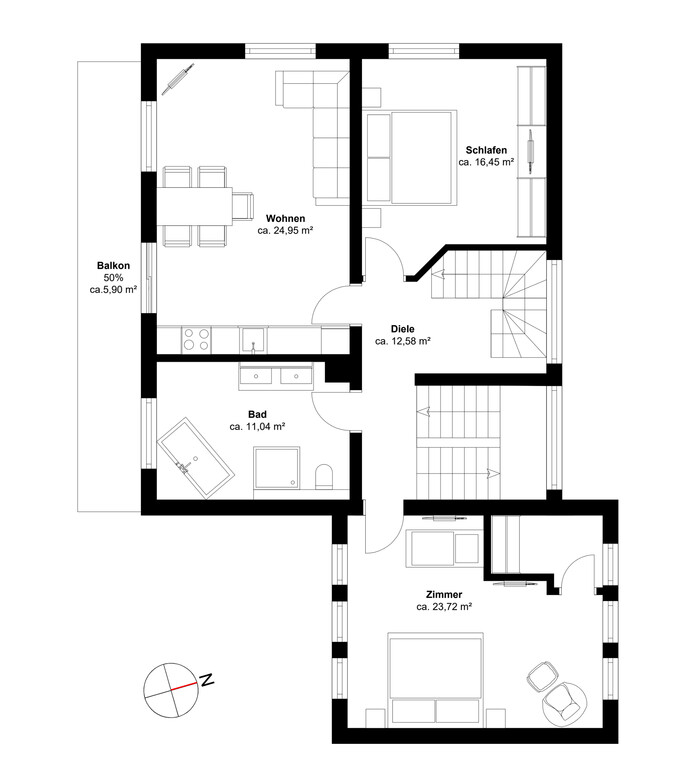
Grundriss

images icon

297,00 m²

Wohnfläche

€ 1.850.000

Engel & Völkers Schruns

Engel & Völkers EuV Immo GmbH

Preise

Kaufpreis € 1.850.000
Provision 3.57 % zzgl. gesetzl. MwSt.

Objekt Informationen

Wohnfläche 297,00 m²
Grundstücksgröße 1.196,00 m²
Zimmer 8
Etage 4. OG
Bautyp Gebraucht
Baujahr 1950
Objektart Haus
Objekttyp Einfamilienhaus
Badezimmer 4
Balkon Vorhanden
Terrasse 120,00 m²
Keller Vorhanden
Heizung
  • Fußbodenheizung
  • Ofen/Kamin
Verfügbar ab sofort
Gesamtanzahl Stellplätze 10
Externe ID engel_volkers_2_I-030X51-W-030X51

Ausstattung:

  • icon Einbauküche
  • icon Boden: Fliesen
  • icon Ausrichtung Balkon: Südwesten
  • icon Gäste-WC
  • icon Rollstuhlgerecht
  • icon Gartennutzung

Empfohlene Services unserer Partner

Objekt Beschreibung


Dieses wunderschöne Chalet bietet die perfekte Kombination aus Luxus, Komfort und traditionellem Alpencharme. Erbaut im Jahre 1950 und kernsaniert bei Übernahme im Jahre 2011. Auf einem großzügigen, aufwändig hangbefestigtem Grundstück von ca. 1.090 m höhe gelegen, bietet diese Immobilie, aus dem auf der Südwestterasse befindlichen Jacuzzi atemberaubende Ausblicke auf die umliegenden Berge... Widderstein...Walmendinger Horn und das Nebelhorn Richtung Oberstdorf. Dieses Anwesen schafft eine ruhige Atmosphäre, ideal für ein entspanntes Leben. Im Winter wie im Sommer ist die Lage ideal, um zum Wandern, Skifahren oder Snowboarden in Ihr gemütliches Zuhause zurückzukehren. Mit ca. 342 m² Wohn– und Nutzfläche inklusive Fitness ,Wellness und Weinstube beeindruckt das Chalet mit wunderschöner Holzverarbeitung, sowohl innen als auch außen, die das zeitlose Handwerk traditioneller Walser Bergchalets widerspiegelt. Das Innere kombiniert moderne Akzente mit der Wärme von Naturholz, von den Böden bis zu den Deckenbalken und schafft so eine gemütliche und einladende Atmosphäre. Das Anwesen verfügt über fünf großzügige Schlafzimmer und vier stilvoll ausgestattete Badezimmer, die ausreichend Platz für Familie und Gäste bieten. Der offene Wohnbereich ist das Herzstück des Hauses und um einen großen Kamin herum gestaltet – perfekt für gesellige Abende nach einem Tag auf der Piste oder beim Wandern. Große Fenster durchfluten den Raum mit natürlichem Licht und der Zugang zu Balkonen, Wintergarten und einer großen Terrasse lassen die Schönheit der Umgebung zu einem Teil Ihres neuen Zuhauses werden. Das Chalet ist in perfektem Zustand und bietet Räume, die individuell gestaltet werden können - sei es für zusätzliche Schlafzimmer, ein privates Büro oder auch Kinderzimmer. Der Außenbereich, wie auch die Innenräume sind so gestaltet, dass er die spektakuläre alpine Umgebung optimal nutzt und einen idealen Rahmen bietet um die frische Bergluft zu geniessen. Dieses Chalet ist eine seltene Gelegenheit, ein luxuriöses, alpines Refugium mit Charakter und unschlagbaren Aussichten zu besitzen, mit der Freiheit, es nach Ihren persönlichen Wünschen zu gestalten. Auch für Platz von Ihrem Fuhrpark ist gesorgt…die direkt vom Haus erreichbare Doppelgarage und etwa 4-5 Stellplätze im freien sollten für Bewohner und Gäste genügen.

Lage:
Das Kleinwalsertal in Vorarlberg gehört zwar zu Österreich, ist aber auf dem Landweg nur von Deutschland aus zu erreichen. Schon die Anreise durch die einzigartige Alpenkulisse ist beeindruckend: In drei Höhenlagen zwischen 1.100 m und 2.536 Meter öffnet sich die Bergwelt des Kleinwalsertals - perfekte Voraussetzungen für unvergessliche Urlaubserlebnisse im Sommer wie im Winter. Mit einer durchschnittlichen Höchsttemperatur von 22°C ist Mittelberg auch in den Sommermonaten ideal für sportliche Outdoor-Aktivitäten wie Wandern, Mountainbiken, Trailrunning, Klettern und vieles mehr. Abkühlung versprechen die umliegenden Seen und Schwimmbäder, wie der Freibergsee in Oberstdorf, das Schwimmbad Riezlern, das Moorbad Reichenbach in Oberstdorf, die Therme Oberstdorf und viele mehr. Aber auch kulturell und kulinarisch hat die Region einiges zu bieten. Ob bei einer gemütlichen Brettljause in herrlicher Bergkulisse auf einer der zahlreichen bewirtschafteten Almen oder in einem feinen Gourmetrestaurant im Tal - in der Genussregion Kleinwalsertal kann man es sich so richtig gut gehen lassen.

Der Makler-Vertrag mit uns und/oder unserem Beauftragten kommt durch schriftliche Vereinbarung oder durch die Inanspruchnahme unserer Maklertätigkeit auf der Basis des Objekt-Exposés und seiner Bedingungen zustande. Die Käufercourtage in Höhe von 3 % zzgl. 19% MwSt. in der jeweiligen gesetzlichen Höhe ist bei Abschluss des notariellen Vertrages zur Zahlung an die EuV Immo GmbH fällig. Die Höhe der Bruttocourtage unterliegt einer Anpassung bei Steuersatzänderungen. Die EuV Immo GmbH und ggf. deren Beauftragte erhalten einen unmittelbaren Zahlungsanspruch gegenüber dem Käufer. Alle Kosten, Steuern, Abgaben und Gebühren trägt der Erwerber. 3,5% Grunderwerbssteuer, 1,1% Grundbucheintragungssteuer, Rechtsanwalts-, Notarkosten und etwaige Barauslagen betragen ca. 1% bis 1,2 % zzgl. 19% MwSt. sowie 3,6 % Maklergebühr. Hinweis: Bitte haben Sie Verständnis, dass wir ohne Angabe Ihrer vollständigen Adress und Kontaktdaten keine Objektunterlagen versenden dürfen. Für einen persönlichen Besichtigungstermin stehen wir Ihnen gerne zur Verfügung und freuen uns auf Ihre Kontaktaufnahme.