FLEXIBEL
FINANZIEREN

Kreditbedarf
Eigenmittel
%
Jahre
Zins | Laufzeit
mtl. Rate
ländleimmo.at / Kaufobjekt / Haus / Einfamilienhaus / Vorarlberg / Bregenz / Alberschwende / Freistehendes Holzhaus mit Aussicht über den Bregenzerwald

Freistehendes Holzhaus mit Aussicht über den Bregenzerwald

images icon

5 Zimmer

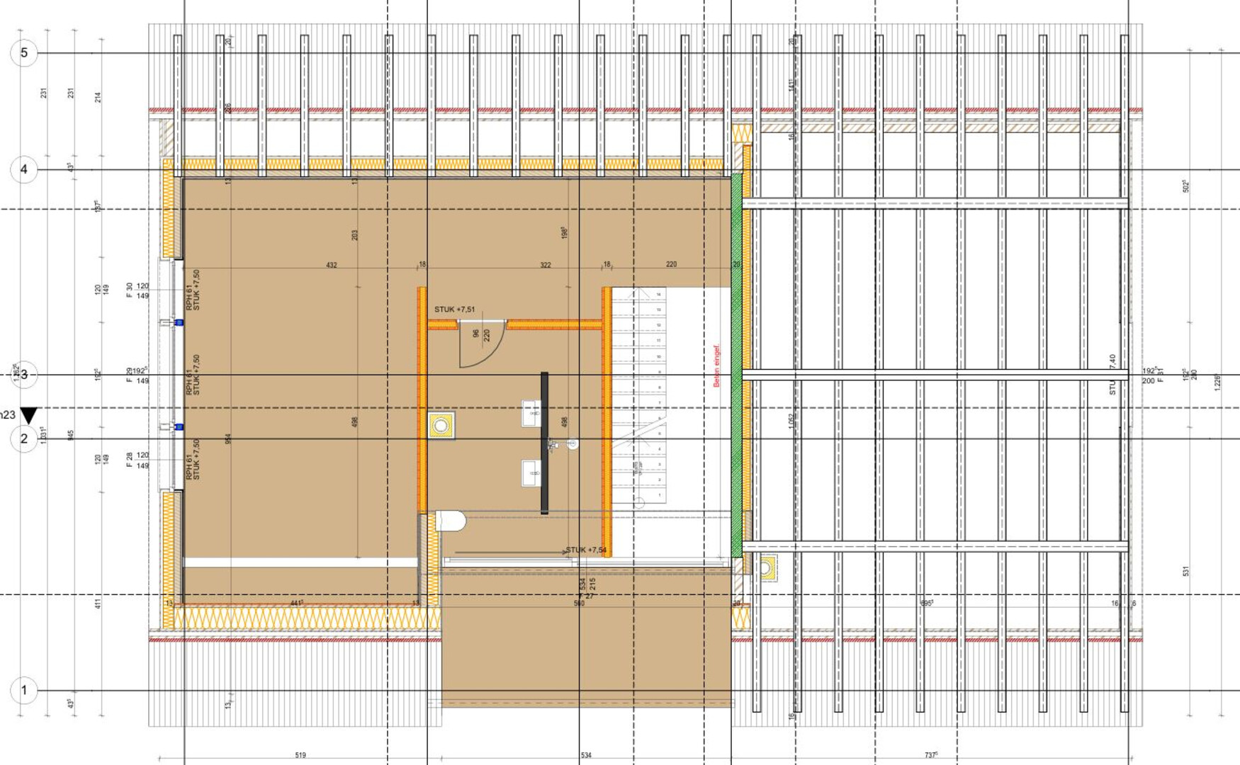
Grundriss

images icon

240,00 m²

Wohnfläche

€ 1.800.000

Privatanzeige

Preise

Kaufpreis € 1.800.000

Objekt Informationen

Wohnfläche 240,00 m²
Grundstücksgröße 1.200,00 m²
Zimmer 5
Nebenräume 2
Anzahl Stockwerke 3
Bautyp Neubau (bis 5 Jahre)
Baujahr 2020
Bauweise
  • Holz
Objektart Haus
Objekttyp Einfamilienhaus
Badezimmer 2
Balkon Vorhanden
Terrasse Vorhanden
Garten Vorhanden
Keller 80,00 m²
Abstellraum Vorhanden
Heizung
  • Holz
  • Solar
  • Fußbodenheizung
  • Ofen/Kamin
Verfügbar ab 2027

Ausstattung:

  • icon Boden: Dielen, Fliesen
  • icon Bad mit: Badewanne, Dusche

Empfohlene Services unserer Partner

Objekt Beschreibung

Dieses echte Holzhaus aus dem Jahr 2020 vereint traditionelle Baukunst mit modernem Wohnkomfort. Auf ca. 300qm Wohnfläche verteilt über 3 Etagen plus Keller bietet es grosszügigen Raum mit großem Garten. Mit Kachelofen in freistehender, exponierter und zugleich ruhiger Lage geniessen Sie eine unverbaubare Aussicht über den Bregenzerwald - ohne direkte Nachbarhäuser. Zwei geräumige Doppelgaragen bieten ausreichend Platz für Ihre Fahrzeuge, während die ehemalige Tenne vielseitige Nutzungsmöglichkeiten eröffnet - ideal zum Abstellen von Oldtimern oder als Ausbau zu einem Büro- oder Seminarraum. Dank der Zweitwohnsitzwidmung lässt sich das Haus auch als charmante Ferienimmobilie in den Bergen nutzen.


https://www.rotach160.at