FLEXIBEL
FINANZIEREN

Kreditbedarf
Eigenmittel
%
Jahre
Zins | Laufzeit
mtl. Rate
ländleimmo.at / Kaufobjekt / Haus / Doppelhaus / Vorarlberg / Bludenz / Bartholomäberg / Zwei Seiten, ein Stil – Die besondere Doppelhaushälfte

Zwei Seiten, ein Stil – Die besondere Doppelhaushälfte

images icon

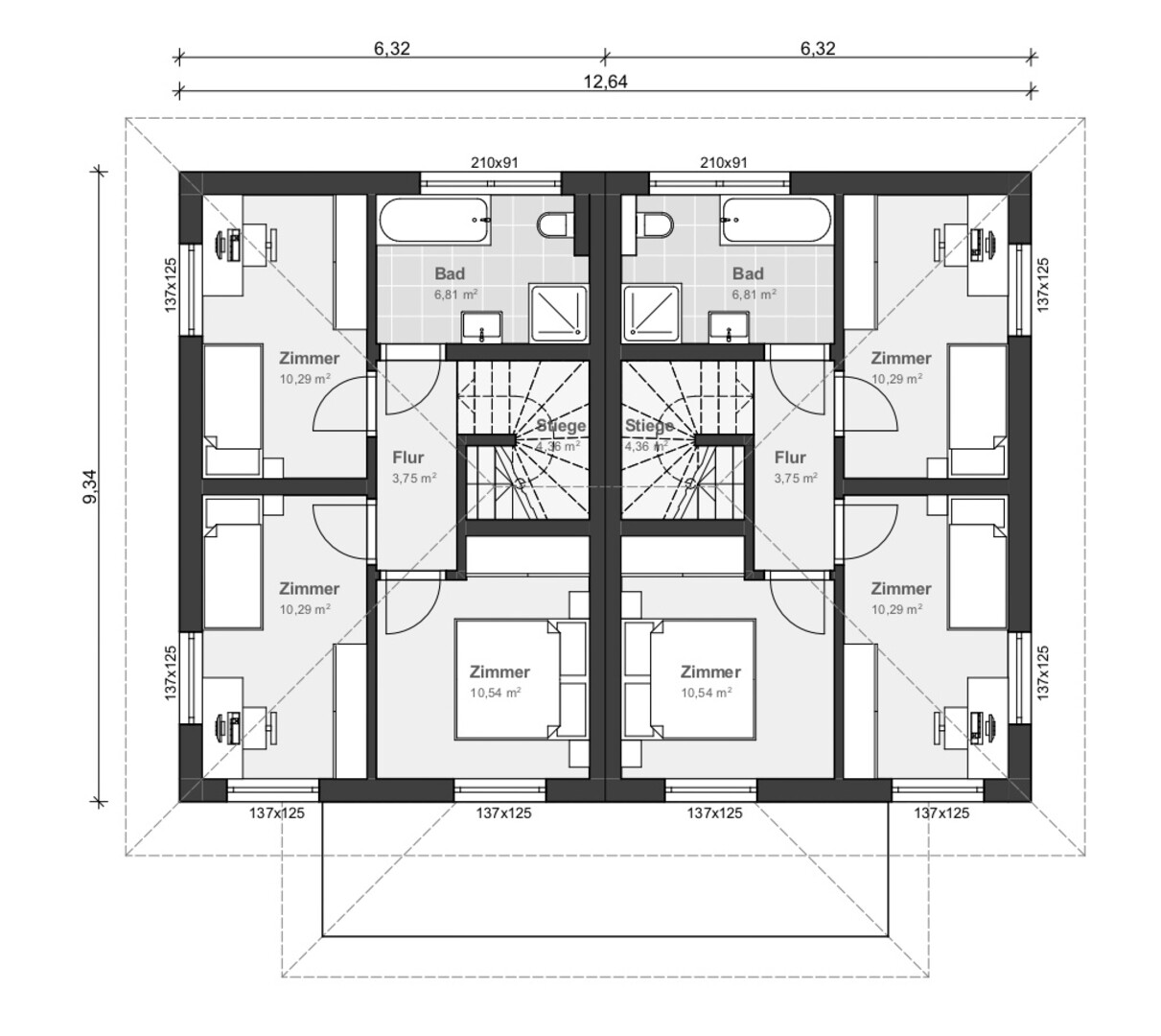
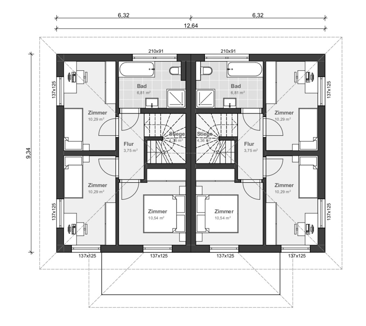
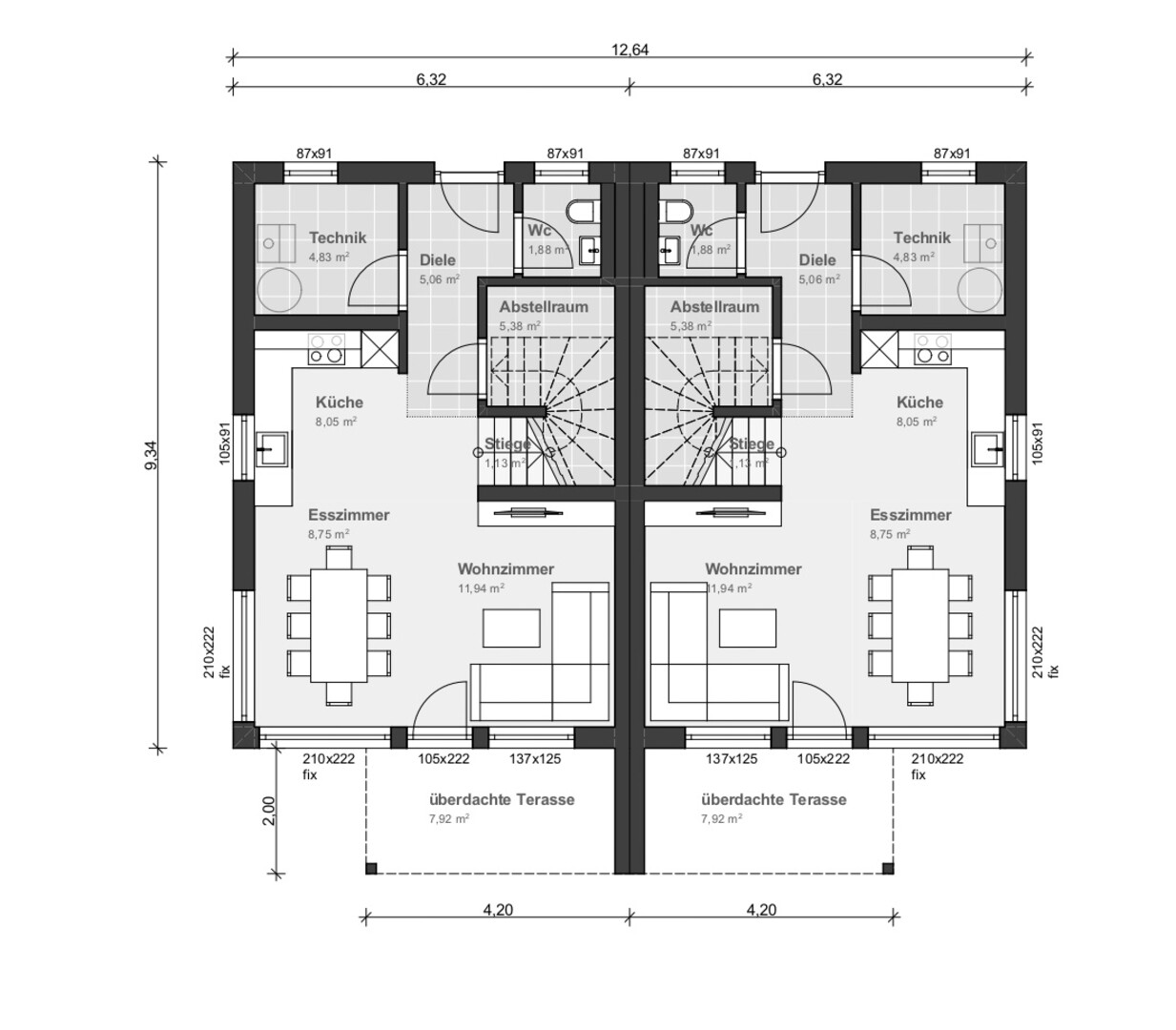
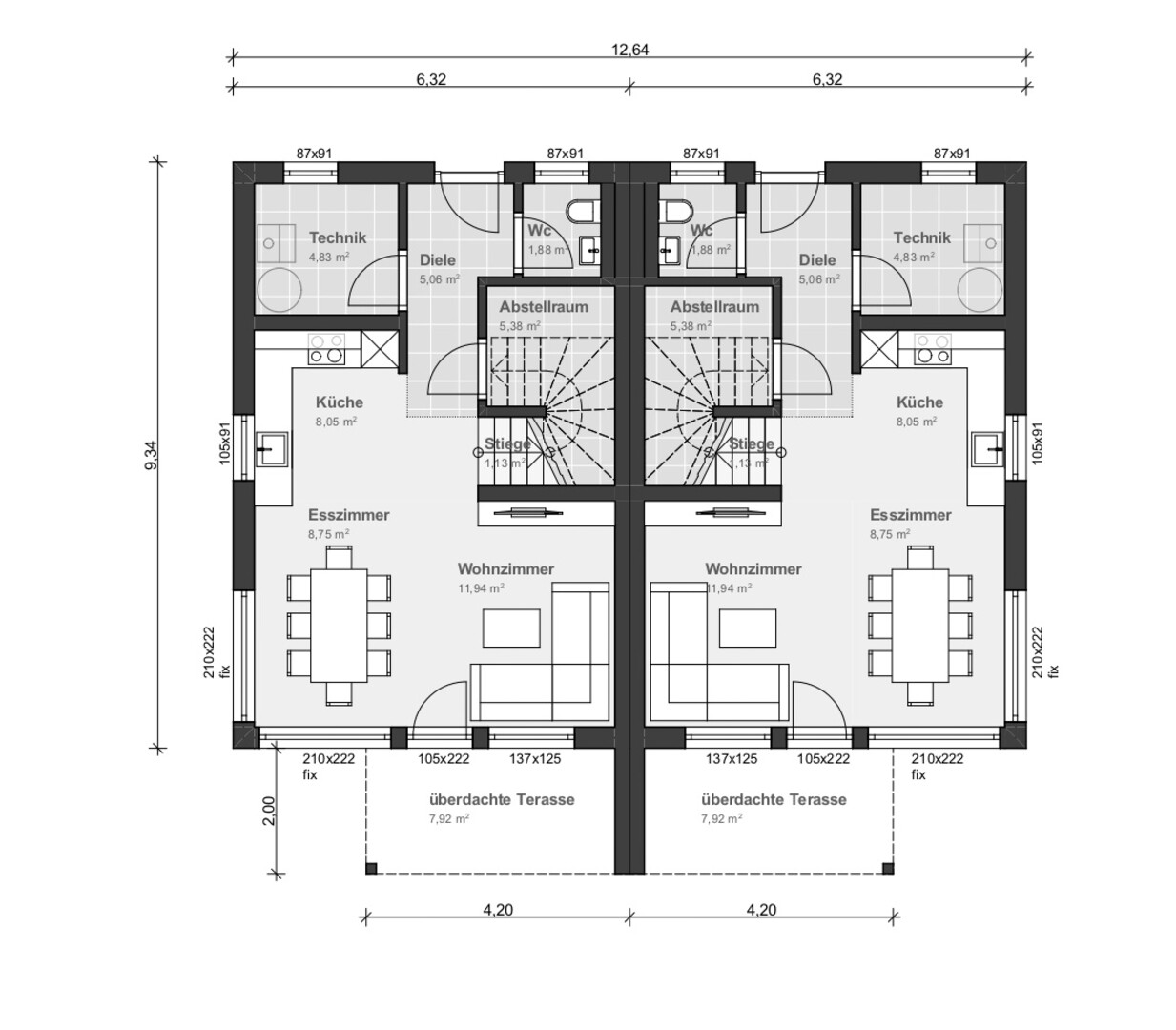
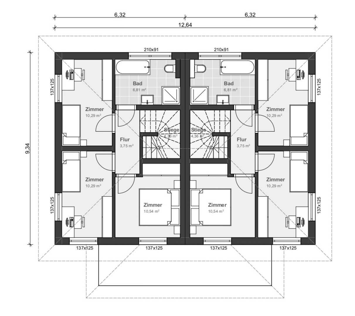
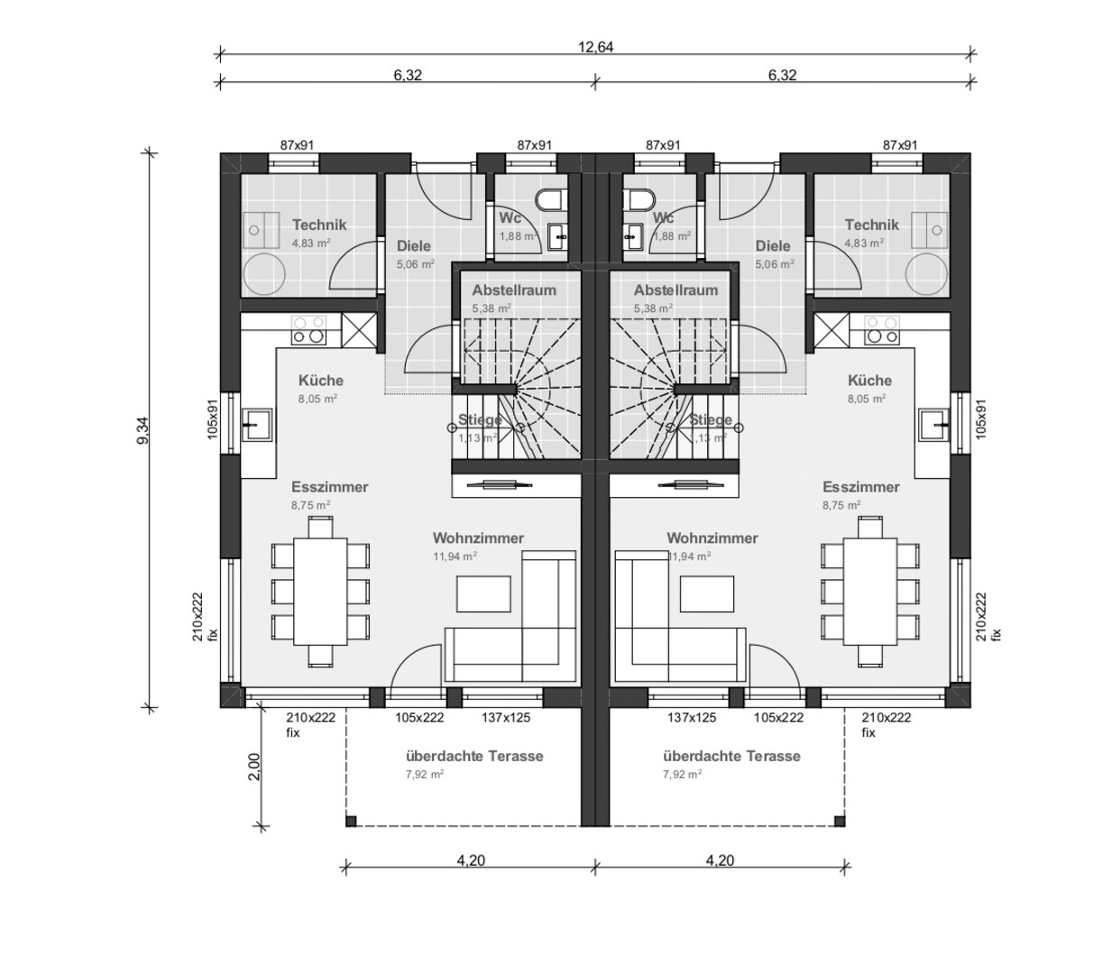
4 Zimmer

Grundriss

images icon

93,00 m²

Wohnfläche

€ 544.421

Alfred Geisinger

RE/MAX Immowest | Immowest GmbH

Preise

Kaufpreis € 544.421
Einmalkosten 3%
Provision 3%

Objekt Informationen

Wohnfläche 93,00 m²
Grundstücksgröße 268,00 m²
Zimmer 4
Baujahr 2026
Objektart Haus
Objekttyp Doppelhaus
Heizung
  • Luft Wärmepumpe
Externe ID Remax_6445

Empfohlene Services unserer Partner

Objekt Beschreibung


+ Doppelhaushälfte Smart Life 93 mit 93 m² Nettogrundrissfläche, Schlüsselfertig
+ 20° Walmdach, fertig eingedeckt inkl. Dachvorsprung
+ Ziehtreppe in Dachboden
+ Fertige Sanitär- und umfangreiche Elektroinstallationen
+ Luft-Wasser-Wärmepumpe mit Fußbodenheizung inkl. Kühlfunktion
+ 3-fach verglaste Kunststoff-Alu-Fenster
+ Alu-Rollläden inkl. E-Antrieb mit Fernbedienung
+ 5 kWp Photovoltaikanlage
+ Fugenloser Fassadenputz auf der Baustelle aufgebracht
+ Anschlussgebühren (Strom, Wasser und Kanal)
+ Schigebiet Golm und viele Wanderwege, sowie Tennisplatz und Schwimmbad
+ Gute Verkehrsanbindung
+ Mit Finanzierung ab € 1.117,00 monatlich

Diese moderne Doppelhaushälfte Smart Life 93 am sonnigen Bartholomäberg kombiniert zeitgemäße Architektur und hochwertiger Ausstattung. Auf 93 m² erwartet Sie ein durchdachtes Wohnkonzept, das Komfort, Effizienz und Ästhetik harmonisch verbindet.

Das Haus wird schlüsselfertig übergeben und verfügt über ein 20° Walmdach, das bereits vollständig eingedeckt ist – inklusive Dachvorsprung und praktischer Ziehtreppe zum Dachboden. Hochwertige Sanitär- sowie umfangreiche Elektroinstallationen sind ebenso im Preis enthalten wie eine Luft-Wasser-Wärmepumpe mit Fußbodenheizung, die ein angenehmes und energieeffizientes Raumklima schafft.

Moderne 3-fach verglaste Kunststoff-Alu-Fenster sorgen für optimale Dämmwerte, ergänzt durch Alu-Rollläden mit elektrischem Antrieb und Fernbedienung.

Auch im Außenbereich ist alles vorbereitet: Der fugenlose Fassadenputz wird direkt auf der Baustelle aufgebracht. Anschlussgebühren für Strom, Wasser und Kanal gemäß Leistungsbeschreibung 08/2025 sind bereits inkludiert.

Die Lage überzeugt durch ihre Nähe zum Skigebiet Golm, zu zahlreichen Wanderwegen, einem Tennisplatz und Schwimmbad sowie durch eine sehr gute Verkehrsanbindung. Das sonnige Grundstück bietet zudem vielfältiges Potenzial für Ihre persönlichen Wohnideen.

Ein Zuhause, das Qualität, Komfort und Natur ideal vereint.