FLEXIBEL
FINANZIEREN

Kreditbedarf
Eigenmittel
%
Jahre
Zins | Laufzeit
mtl. Rate
ländleimmo.at / Kaufobjekt / Haus / Allgemein / Vorarlberg / Feldkirch / Weiler / Modernes Wohnen und Arbeiten in einem Haus

Modernes Wohnen und Arbeiten in einem Haus

images icon

N/A

Grundriss

images icon

224,05 m²

Wohnfläche

€ 1.280.000

Josef Amann

Amann Immobilien GmbH

Preise

Kaufpreis € 1.280.000
Provision 3,0 % Vermittlungshonorar (exkl. 20 % USt)
Erklärung Kosten 3,5 % Grunderwerbsteuer 1,1 % Eintragungsgebühr 3,0 % Vermittlungshonorar (exkl. 20 % USt) zzgl. Kosten für Vertragserrichtung, Treuhandabwicklung, Grundbuchseintragung

Objekt Informationen

Wohnfläche 224,05 m²
Grundstücksgröße 789,00 m²
Anzahl Stockwerke 3
Bautyp Gebraucht
Baujahr 2001
Bauweise
  • Massiv
Objektart Haus
Objekttyp Allgemein
Badezimmer 1
Balkon 2,80 m²
Terrasse 21,43 m²
Garten Vorhanden
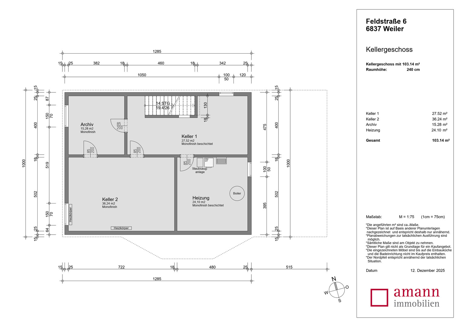
Keller 103,14 m²
Abstellraum 2,5 m²
Heizung
  • Wärmepumpe
Verfügbar ab nach Vereinbarung
Heizwärmebedarf (HWB) 81 kwh/m²a
Klasse Heizwärmebedarf (Klasse HWB) C
Gesamtenergieeffizienz-Faktor (fGEE) 1,22 kwh/m²a
Klasse Gesamtenergieeffizienz-Faktor (Klasse fGEE) C
Parkplatz
  • (Tief-)Garage (2)
  • Freiplatz (6)

Ausstattung:

  • icon Wohnküche / offene Küche
  • icon Boden: Fliesen
  • icon Bad mit: Badewanne, Dusche, Fenster
  • icon Sicherheitstechnik: Alarmanlage
  • icon Gäste-WC
  • icon Kabel/Satelliten-TV
  • icon Swimmingpool

Empfohlene Services unserer Partner

Objekt Beschreibung

Bei der Planung dieses Hauses in Weiler stand von Anfang an die Kombination aus Wohnen und Arbeiten im Vordergrund.

Im Erdgeschoss war ursprünglich ein Atelier für Grafik und Design, während sich im Obergeschoss die Wohnräume befanden.


Aktuell wird ein Teil des Erdgeschosses als Geschäftsfläche (Frisiersalon 39,45 m²) und ein Teil privat genutzt.

Der offene Wohn-Essbereich ist mit knapp 70 m² äußerst großzügig und repräsentativ.

An das Erdgeschoss schließt sich eine überdachte Terrasse an und im Garten befindet sich ein Pool und Kinderspielgeräte.


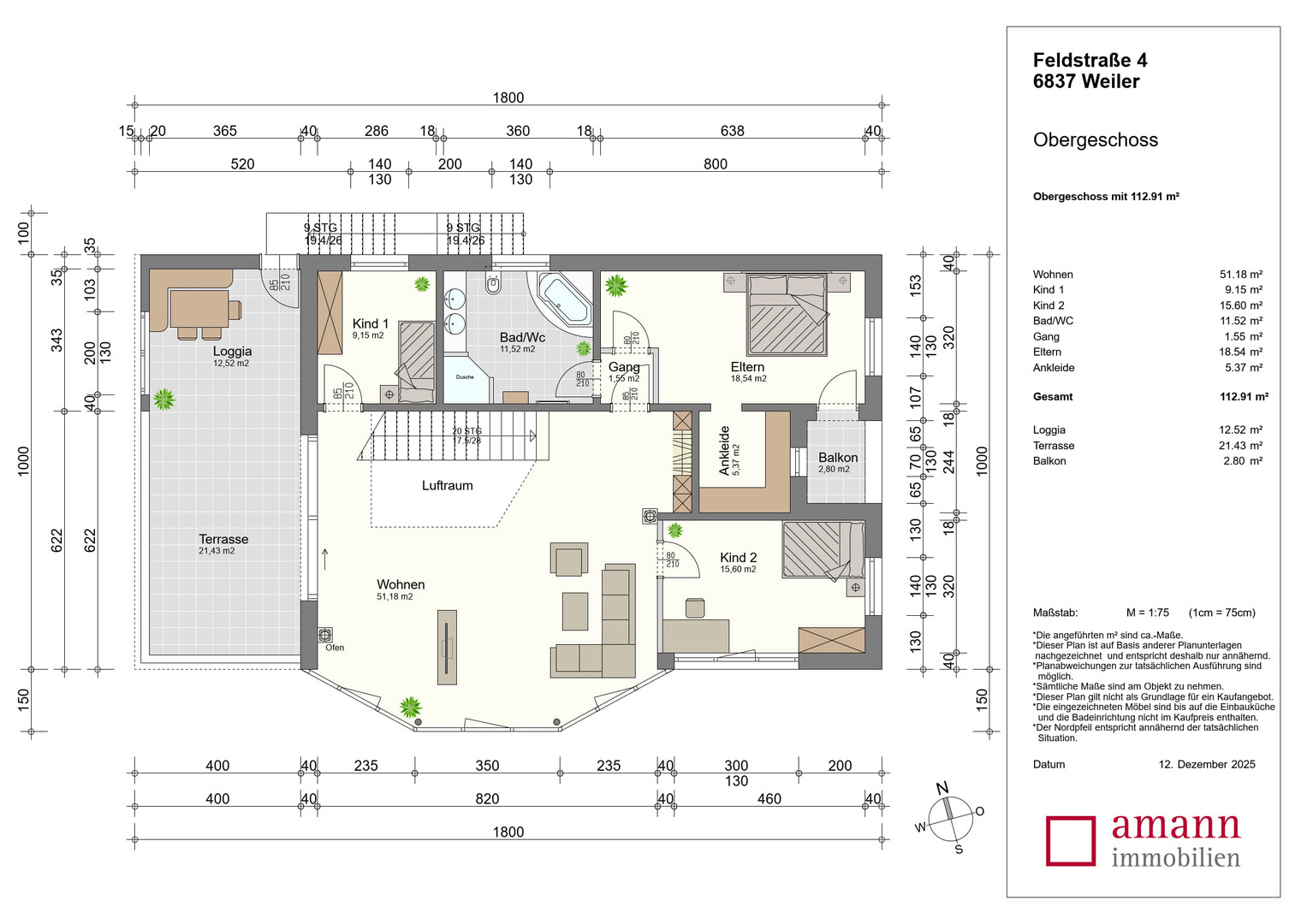
Im Obergeschoss befinden sich drei großzügige Schlafzimmer, ein 50 m² großes Wohnzimmer mit Kamin und ein Badezimmer mit ca. 11,5 m².

Zusätzlich gibt es eine nach Südwesten ausgerichtete Terrasse mit 21 m².


Das Objekt bietet vielfältige Nutzungsmöglichkeiten:

  1. Nutzung des Erdgeschosses als Büro, Kanzlei, Ordination, Atelier, Geschäftsraum
  2. das Obergeschoss kann durch eine Außentreppe separat erschlossen werden
  3. eine Trennung in zwei großzügige Wohnungen ist möglich
  4. auch das Erdgeschoss bietet Platz für zwei getrennte Wohneinheiten
  5. der Erdgeschoss kann individuell gestaltet werden (Leichtbauwände)


Details zur Ausstattung

  1. Hochwertige und witterungsbeständige Fassade und Fenster aus Aluminium
  2. Fußbodenheizung mit Luft-Wasser-Wärmepumpe (Baujahr 2022)
  3. Photovoltaikanlage mit 10 kWp (Baujahr 2022)
  4. Dacherneuerung 2022
  5. alle Raffstore elektrisch bedienbar
  6. Swimmingpool mit Schiebeüberdachung
  7. Doppelgarage mit Rolltor
  8. Werkstätte
  9. ca. 6 Außenstellplätze


Die Liegenschaft befindet sich in der Nähe des Ortszentrums Weiler.

In nur wenigen Gehminuten sind verschiedenen Geschäfte für den täglichen Bedarf (Lebensmittelhandel, Apotheke, etc.) erreichbar. Ideal ist die Lage auch für Familien, da der Kindergarten in 7 Gehminuten und die Volksschule in 12 Minuten erreichbar sind.


Eine Bushaltestelle ist in ca. 100 m Entfernung und bietet einen ideale Verbindung nach Feldkirch und Götzis. Der Autobahnknoten Klaus ist in 5 Minuten erreichbar. Die Grenzübergänge nach Oberriet und Mäder sind in ca 14 Minuten mit dem Auto erreichbar.


Die Liegenschaft wird im Angebotsverfahren verkauft.

Die Eigentümer behalten sich die Annahme von Angeboten vor.

Ein Kaufanbotsformular sowie die dazugehörigen Unterlagen werden auf Anfrage gerne übermittelt.


Weitere Details: https://www.amann-immobilien.com/modernes-wohnen-und-arbeiten-in-einem-haus-in-weiler-vorarlberg/


Angehängte Dokumente