FLEXIBEL
FINANZIEREN

Kreditbedarf
Eigenmittel
%
Jahre
Zins | Laufzeit
mtl. Rate
ländleimmo.at / Kaufobjekt / Haus / Allgemein / Vorarlberg / Bregenz / Eichenberg / Eichenberg: Exklusives Penthouse mit atemberaubender Seesicht

Eichenberg: Exklusives Penthouse mit atemberaubender Seesicht

images icon

5 Zimmer

Grundriss

images icon

231,11 m²

Wohnfläche

Preis auf Anfrage

Christian Fink

WÄLDERIMMO GmbH

Preise

Preis auf Anfrage
Einmalkosten 3% des Kaufpreises zzgl. 20% USt.

Objekt Informationen

Wohnfläche 231,11 m²
Grundstücksgröße 631,00 m²
Zimmer 5
Etage EG
Bautyp Neubau (bis 5 Jahre)
Baujahr 2019
Objektart Haus
Objekttyp Allgemein
Badezimmer 2
Terrasse 161,49 m²
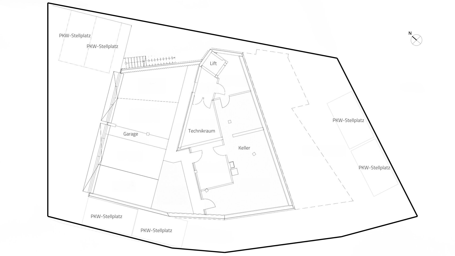
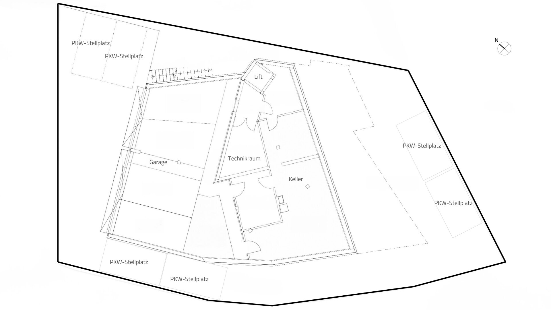
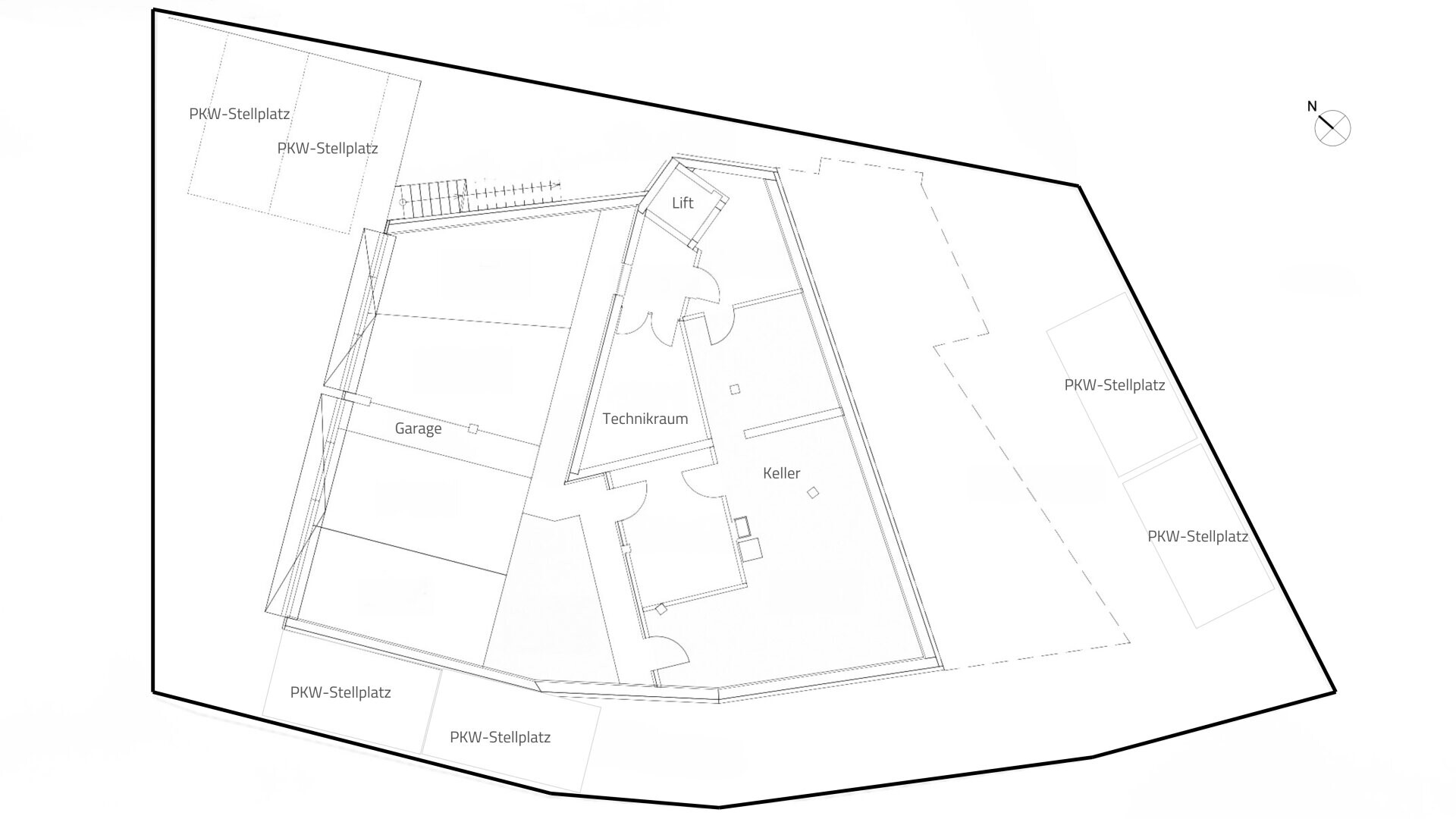
Keller 69,00 m²
Heizung
  • Fußbodenheizung
Gesamtanzahl Stellplätze 4
Heizwärmebedarf (HWB) 38 kwh/m²a
Klasse Heizwärmebedarf (Klasse HWB) B
Gesamtenergieeffizienz-Faktor (fGEE) 0,65 kwh/m²a
Klasse Gesamtenergieeffizienz-Faktor (Klasse fGEE) A+
Externe ID justimmo_363501_534
Parkplatz
  • (Tief-)Garage (1)
  • Freiplatz (4)

Ausstattung:

  • icon Einbauküche
  • icon Boden: Fliesen, Parkett
  • icon Bad mit: Dusche
  • icon Parkplatz Tiefgarage
  • icon Lift
  • icon Kabel/Satelliten-TV

Empfohlene Services unserer Partner

Objekt Beschreibung

Eichenberg: Exklusives Penthouse mit atemberaubender Seesicht

Herzlich willkommen in Ihrer neuen Penthouse in Eichenberg, direkt am Bodensee!   

Hier steht ein außergewöhnliches und exklusives Objekt zum Verkauf, das Ihnen den perfekten Rückzugsort bietet und gleichzeitig alle Annehmlichkeiten des modernen Lebens vereint. 

Schon beim Betreten des Penthouse wird Ihnen der Atem stocken. Der Blick auf den Bodensee und die angrenzende Hügellandschaft ist spektakulär. Bei guter Sicht kann man bis ins Vorderland Frankreichs blicken. Die Sonnenuntergänge sind ein tägliches Schauspiel, oft teilen sich die Gewitterzellen am See, was beeindruckende Wetterphänomene bietet. 

    

Lage:

Diese exquisite Villa befindet sich in Eichenberg, einer der begehrtesten Wohngegenden mit einzigartigem Blick auf den Bodensee.

Die Anfahrt erfolgt bequem über die A14 oder die E43 mit Ausfahrt Lochau. Von dort sind es nur wenige Minuten bis zu Ihrem neuen Glück.

Eichenberg bietet eine perfekte Kombination aus absoluter Ruhe und Natur, dennoch sind alle wichtigen Einrichtungen und die Städte Bregenz und Lindau in wenigen Minuten erreichbar.

 

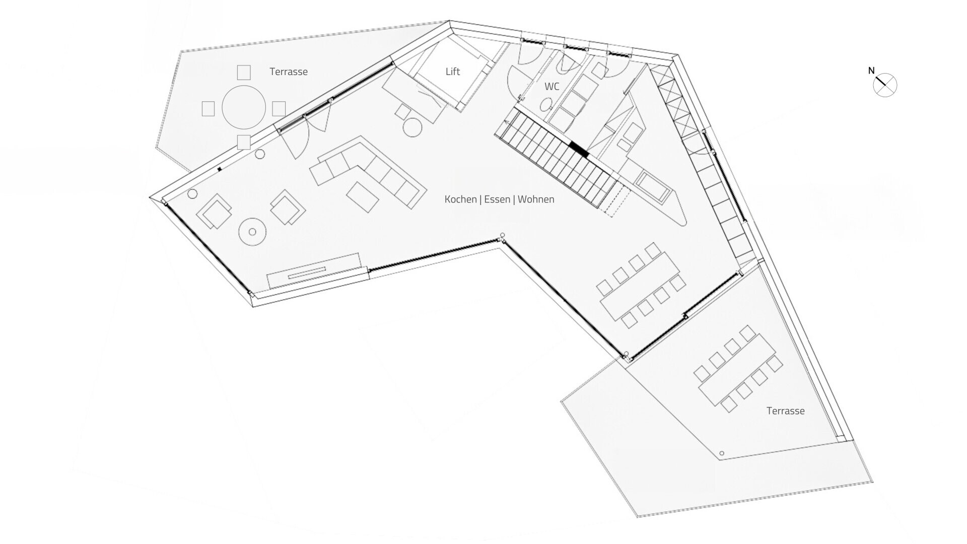
Aufteilung:

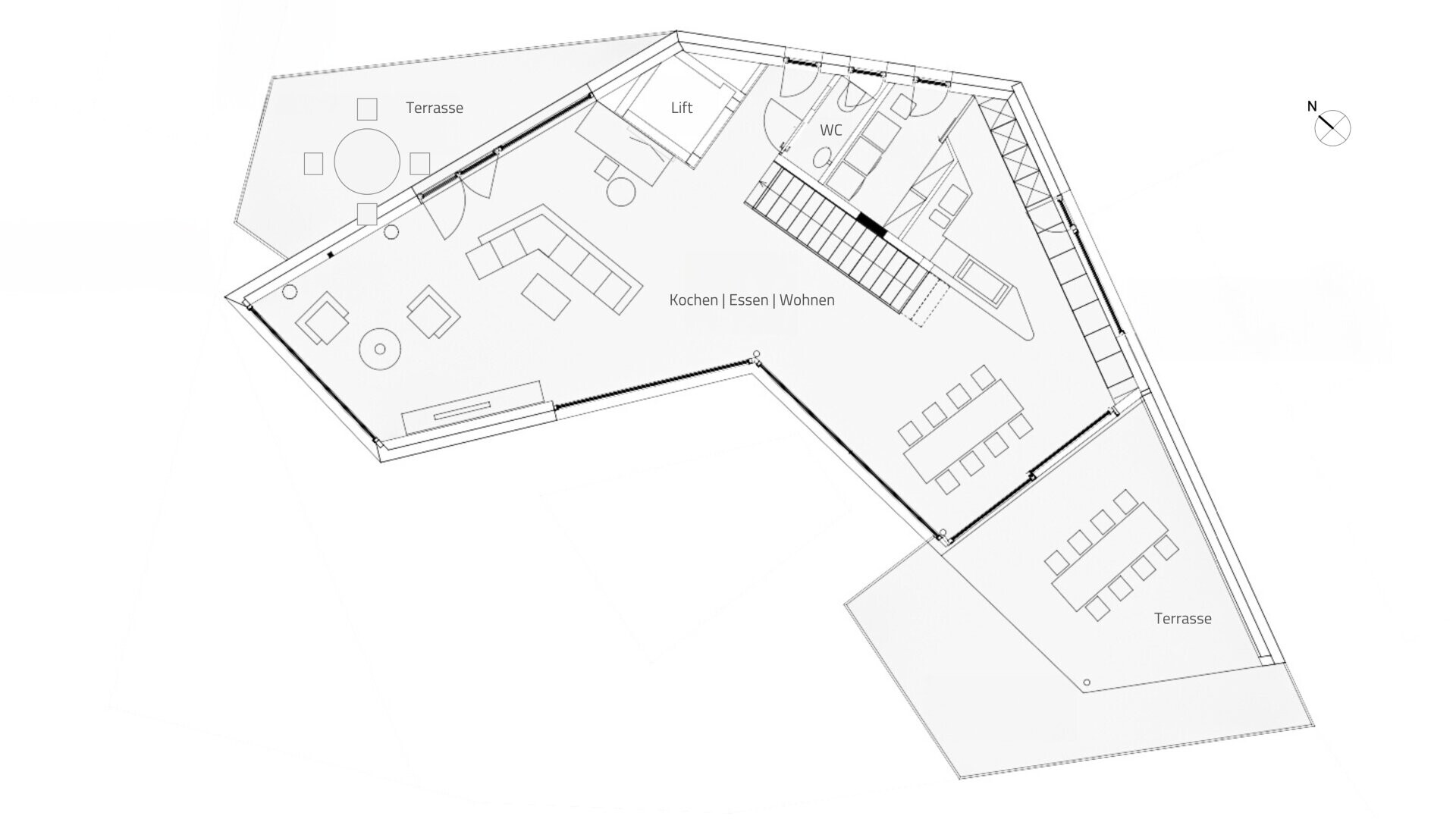
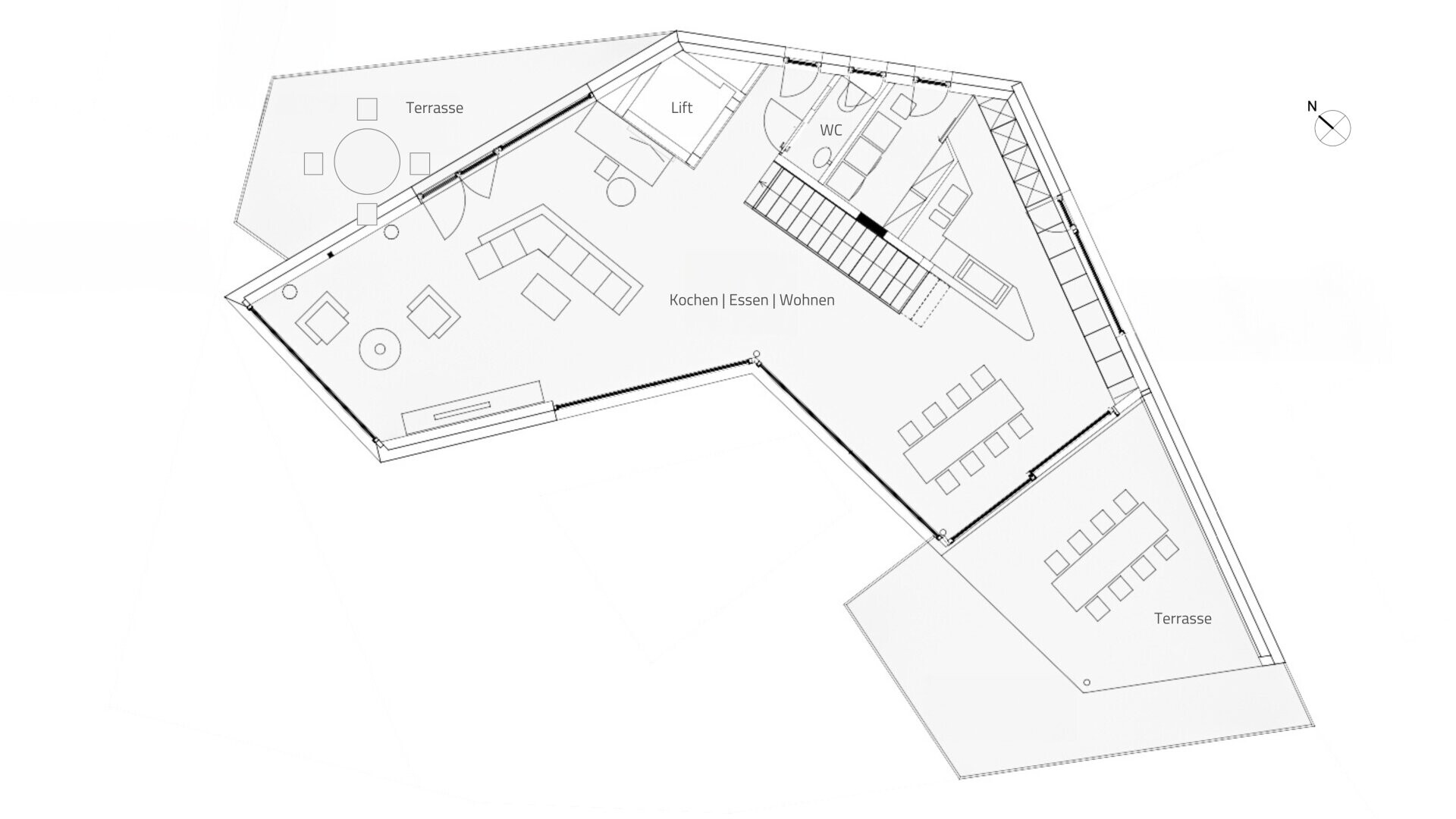
Das Objekt besteht aus zwei Einheiten. Top 1 mit einer Wohnfläche von 145m² (Nutzfläche 181m²) und Top 2, das Penthouse mit 231m² (Nutzfläche 411m²).

Jede Wohnung hat einen unabhängigen, separaten Eingang, was durch die Hanglage des Objekts bestens ermöglicht wird. Der Zugang zu Top 1 befindet sich nordseitig, während sich der Zugang zu Top 2 (Penthouse) auf der Ostseite befindet. Über die Garage sind beide Einheiten mit dem Lift erreichbar.

 

Top 2 Penthouse:

Diese Einheit erstreckt sich über zwei Geschosse, die mit einer Treppe und dem Lift verbunden sind. Die Zufahrt und der Eingang befinden sich im Osten.

Im Eingangsbereich erwartet Sie bereits der freie Blick über den Pool hin zum Bodensee!

Wohnen | Essen | Kochen (2.OG) 95,77 m²
WC (2.OG) 1,91 m²
Zimmer 1 28,65 m²
Zimmer 2 21,56 m²
Zimmer 3 13,92 m²
Zimmer 4 13,45 m²
Bad | WC 21,59 m²
Bad Gast 4,08 m²
Eingang und Gang 30,18 m²
   
Wohnfläche gesamt 231,11 m²
   
Terrasse 1 99,05 m²
Pool 18,22m²
Terrasse 2 (2.OG) 19,31 m²
Terrasse 3 (2.OG) 43,13 m²
Keller 69,17 m²

 

Die Villa verfügt über eine moderne Sicherheitsanlage und Alarmanlage, die Ihnen ein Höchstmaß an Sicherheit und Komfort bieten.

Für den angrenzenden Wald und Bach besteht ein uneingeschränktes, unwiderrufliches Nutzungsrecht, was Ihnen vielfältige Möglichkeiten bietet.

Die Villa befindet sich in absoluter Ruhelage mit einzigartigem Fernblick über den Bodensee und die deutsche Hügellandschaft.

 

Eintragungsgebühren:

Wird bei dieser Immobilie innerhalb von 3 Monaten nach dem Kauf der Hauptwohnsitz begründet, entfällt pro Käufer (bis 500.000 €) die Grundbucheintragungsgebühr von 1,1 % sowie die Pfandrechtseintragungsgebühr von 1,2 % .

Die Gebühren können nacherhoben werden, wenn innerhalb von 5 Jahren die Immobilie verkauft oder der Hauptwohnsitz aufgegeben wird. Maximale Ersparnis bei den Nebenkosten pro Person bis zu 11.500€ möglich. Bei zwei Käufern ist es eine maximale Ersparnis von 16.500€ möglich.

Noch nichts gefunden? Wir informieren Sie über geeignete Immobilienangebote noch vor allen anderen.
Legen Sie jetzt Ihren individuellen Suchagenten unter folgendem Link an. Wir schicken Ihnen passende Immobilien exklusiv vorab zu.
Suchagent anlegen - https://waelderimmo.service.immo/registrieren/de

Der Vermittler ist als Doppelmakler tätig.



Lage:

Angehängte Dokumente

YouTube Video

Stimme unseren Cookie-Richtlinien (Marketing) zu, um dieses Video sehen zu können Zustimmung geben