ländleimmo.at / Mietobjekt / Grundstück / Gewerbegrundstück / Vorarlberg / Feldkirch / Feldkirch / Attraktives Grundstück im Baurecht mit projektierter Gewerbehalle – Industriegebiet Runa, Feldkirch

Attraktives Grundstück im Baurecht mit projektierter Gewerbehalle – Industriegebiet Runa, Feldkirch

images icon

N/A

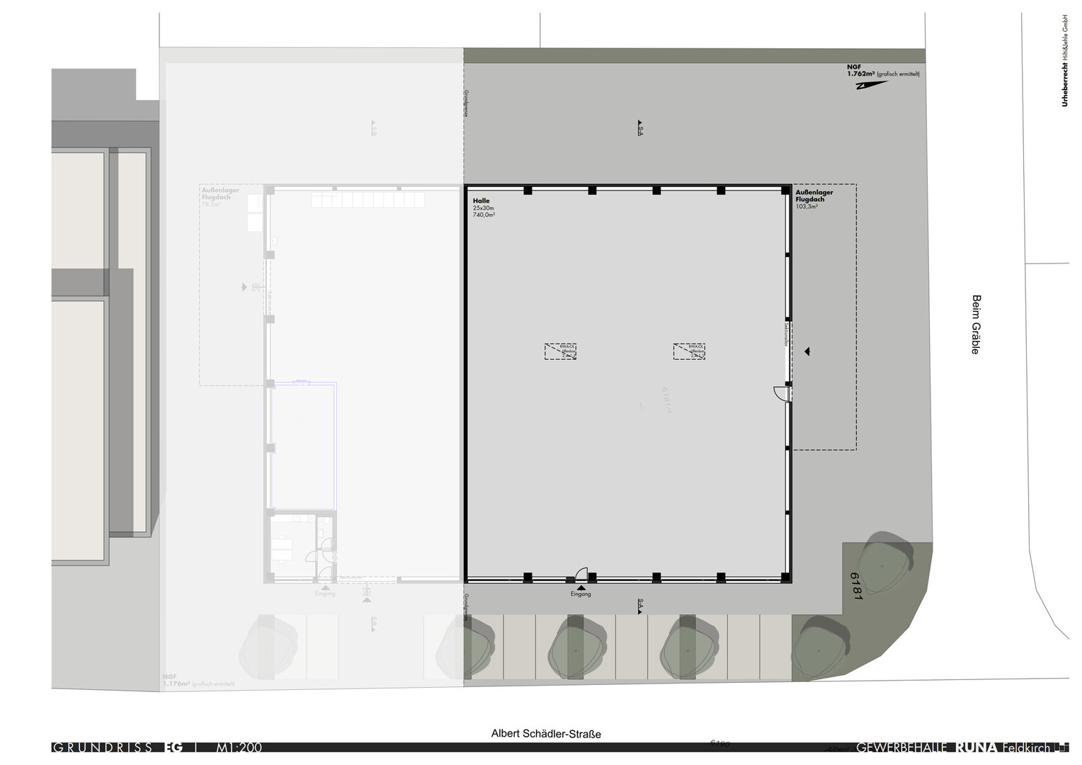
Grundriss

images icon

1.762,00 m²

Grundstücksgröße

Preis auf Anfrage

Simon Blum

Hilti & Jehle GmbH WOHNBAU

Preise

Preis auf Anfrage
Erklärung Kosten Preis auf Anfrage

Objekt Informationen

Grundstücksgröße 1.762,00 m²
Objektart Grundstück
Objekttyp Gewerbegrundstück
Externe ID 202062.2-GST

Empfohlene Services unserer Partner

Objekt Beschreibung


Im etablierten Industriegebiet Runa steht ein Gewerbegrundstück im Baurecht zur Verfügung. Auf Basis eines attraktiven Entwurfs wird eine moderne Gewerbehalle projektiert, die individuell an die Anforderungen des künftigen Nutzers angepasst werden kann.

Die Immobilie eignet sich ideal für produzierende Unternehmen, Lager- und Logistikbetriebe, Industrie, Handwerk sowie branchenunabhängige Gewerbenutzungen.
Geplante Gebäudeausstattung

Als erfahrener Immobilienentwickler begleiten wir Sie zuverlässig durch alle Projektphasen:
•Flexible Hallenflächen (Produktion / Lager / Logistik)
•Büro- und Verwaltungsbereiche optional integrierbar
•Moderne energieeffiziente Bauweise
•Repräsentative, zeitgemäße Architektur

Standortvorteile – Runa, Feldkirch
Das Industriegebiet Runa zählt zu den wirtschaftlich stärksten und verkehrstechnisch attraktivsten Zonen im Vorarlberger Rheintal.

Vorteile des Standortes:
•Nähe zur A14 Rheintalautobahn
•Direkte Anbindung an AT-CH-DE-FL
•Stabiles Unternehmensumfeld mit hoher regionaler Wertschöpfung

Baurecht – Vorteile für Unternehmen
•Schonung des Kapitals durch Wegfall des Grundstückskaufes
•Langfristige Standort- und Planungssicherheit
•Volle individuelle Nutzungs- und Gestaltungsfreiheit der geplanten Halle

Ihre Möglichkeiten
Wir entwickeln die Gewerbehalle nach Ihrem Bedarf – vom effizienten Lager bis zur voll ausgestatteten Produktionsstätte.

Gerne informieren wir Sie über das Baurechtsmodell, mögliche Gebäudekonzepte und nächste Schritte.
Wir freuen uns auf Ihre Anfrage!