FLEXIBEL
FINANZIEREN

Kreditbedarf
Eigenmittel
%
Jahre
Zins | Laufzeit
mtl. Rate
ländleimmo.at / Kaufobjekt / Grundstück / Gewerbegrundstück / Vorarlberg / Bregenz / Hard / Perfekter Standort für Ihr Unternehmen - Betriebsbaugrund in Hard

Perfekter Standort für Ihr Unternehmen - Betriebsbaugrund in Hard

images icon

N/A

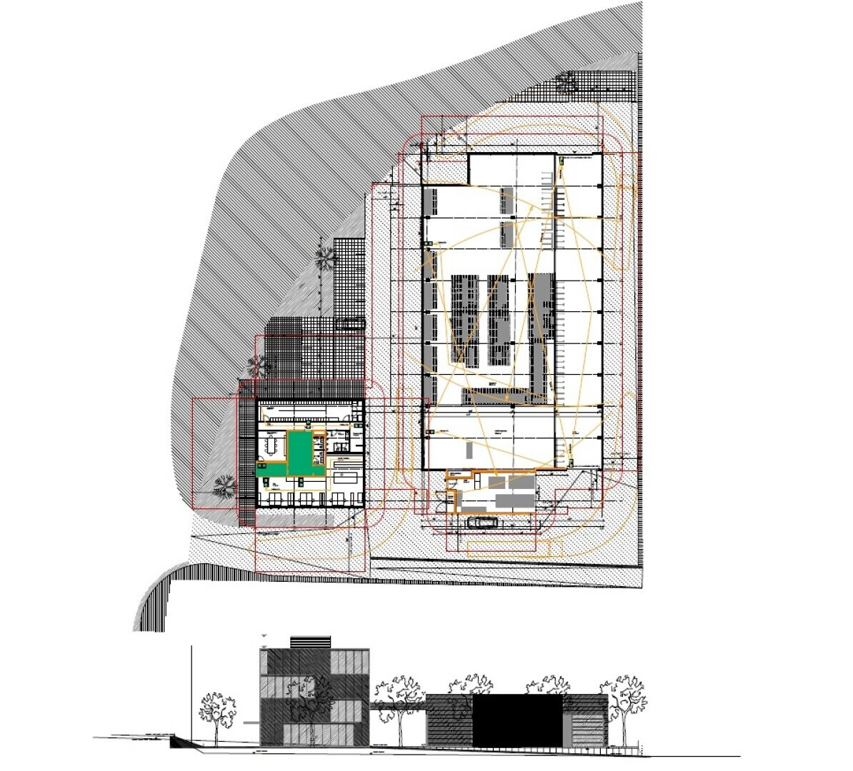
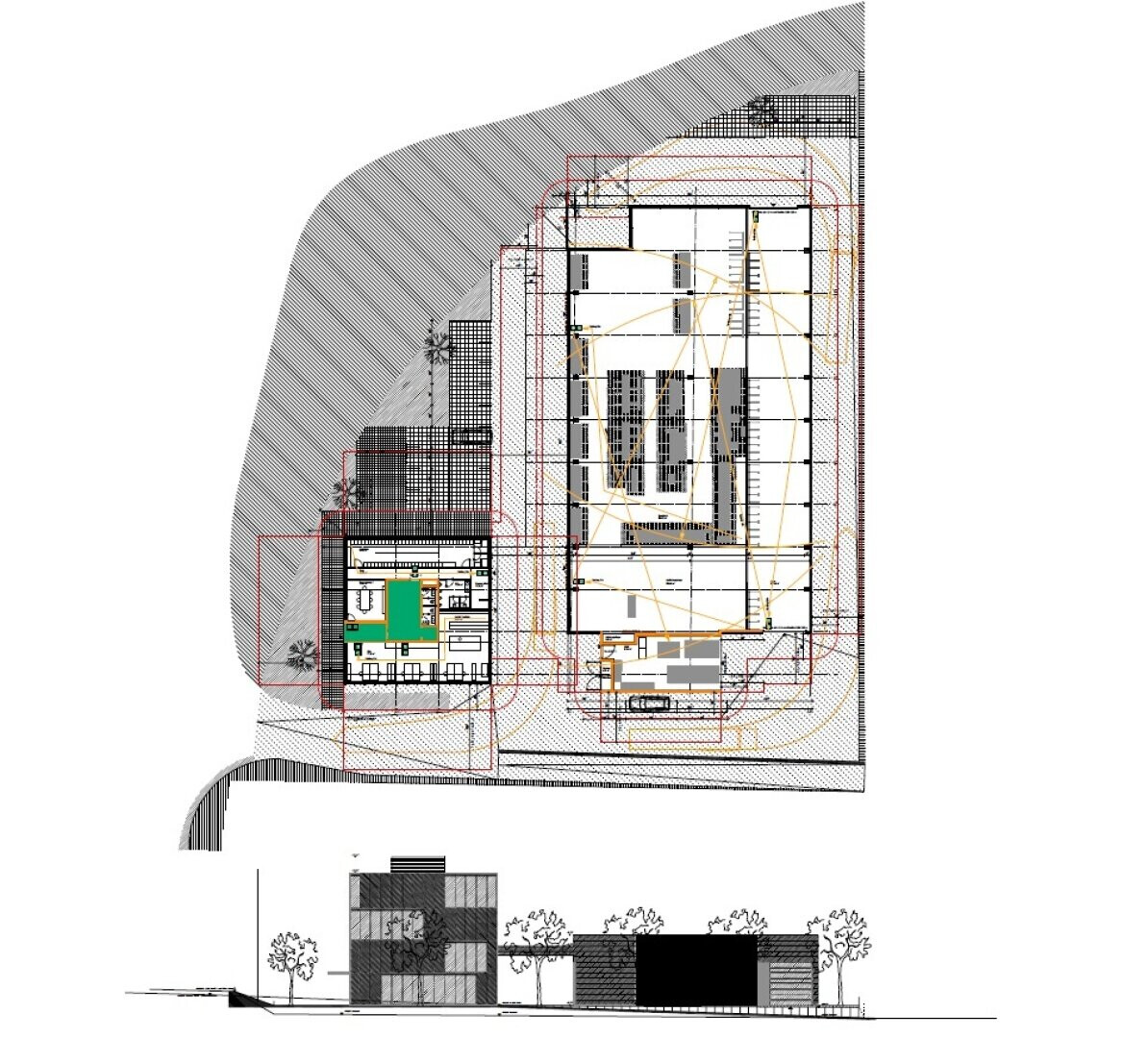
Grundriss

images icon

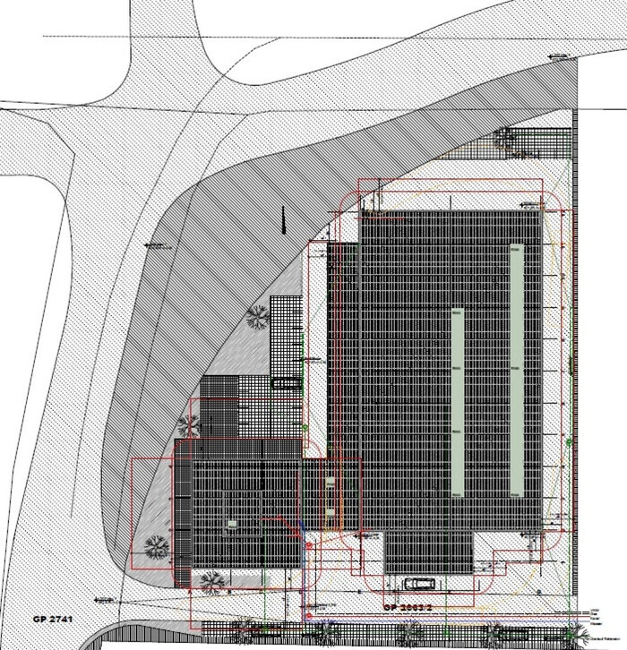
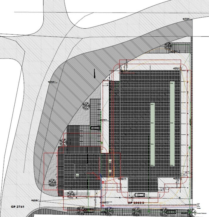
4.483,00 m²

Grundstücksgröße

Preis auf Anfrage

Preise

Preis auf Anfrage
Einmalkosten 3.5% Grunderwerbssteuer 1.1% Grundbucheintragung Notar- oder Rechtsanwaltskosten Vertragserrichtungsgebuehr Provisionspflichtig
Provision 3% des Kaufpreises zzgl. 20% USt.

Objekt Informationen

Grundstücksgröße 4.483,00 m²
Objektart Grundstück
Objekttyp Gewerbegrundstück
Externe ID justimmo_329157_8113/109

Empfohlene Services unserer Partner

Objekt Beschreibung


Sie sind auf der Suche nach dem perfekten Standort für Ihr Unternehmen? Dann sollten Sie sich diese einmalige Gelegenheit nicht entgehen lassen! Auf dem Betriebsbaugrund in Hard erwartet Sie ein ca. 4.483 m² großes Grundstück, das sich ideal für die Ansiedlung Ihres Unternehmens eignet.

Das Grundstück besticht nicht nur durch seine Größe, sondern auch durch seine hervorragende Lage. Die Verkehrsanbindung ist ausgezeichnet und ermöglicht es Ihren Mitarbeitern und Kunden, das Grundstück bequem zu erreichen. Auch für Lieferungen und den Versand bietet die Lage eine optimale Anbindung an das Straßennetz. Zahlreiche Einrichtungen des täglichen Bedarfs befinden sich außerdem in der direkten Umgebung damit sich Ihre Mitarbeiter und Kunden wohlfühlen.

Doch nicht nur die Lage und die Umgebung machen dieses Grundstück zu einer begehrten Immobilie. Auch die Größe und die damit verbundenen Möglichkeiten sind ein entscheidender Faktor. Mit den ca. 4.483 m² bietet das Grundstück ausreichend Platz für die Errichtung eines Firmengebäudes, einer Produktionsstätte oder eines Lagergebäudes. Hier können Sie Ihre geschäftlichen Visionen und Ziele in die Realität umsetzen.

Zögern Sie nicht länger und sichern Sie sich jetzt dieses attraktive Grundstück in Hard. Investieren Sie in die Zukunft Ihres Unternehmens und profitieren Sie von der erstklassigen Lage, der perfekten Infrastruktur und der einzigartigen Umgebung. Nutzen Sie die Chance, Ihr Unternehmen in einer der aufstrebenden Regionen Österreichs anzusiedeln.

Pläne für ein bereits projektiertes Betriebsgebäude liegen vor.

Das Grundstück hat die Widmung BB-II:

Betriebsgebiete der Kategorie II sind Gebiete, die vornehmlich für Betriebsanlagen, die im Betriebsgebiet Kategorie I nicht errichtet werden dürfen, bestimmt sind. In Betriebsgebieten Kategorie II dürfen nicht errichtet werden: a) Wohnungen, ausgenommen betriebsnotwendige Wohnungen für das Aufsichts- und Wartungspersonal, wenn diese in den Betrieb integriert sind, b) Gebäude und Anlagen für Sport- und Freizeitzwecke UND c) Gebäude und Anlagen für Zwecke des Handels, sofern der Handel nicht ausschließlich zum Weiterverkauf von Waren des nicht täglichen Bedarfs oder untergeordnet in Produktionsbetrieben zum Verkauf von Waren überwiegend eigener Produktion erfolgt.

Überzeugt? Dann zögern Sie nicht und vereinbaren Sie noch heute einen Besichtigungstermin. Wir stehen Ihnen gerne zur Verfügung und beantworten Ihnen alle offenen Fragen. Investieren Sie in Ihre unternehmerische Zukunft und sichern Sie sich dieses exklusive Betriebsbaugrundstück in Hard.

Viele weitere interessante Immobilienangebote finden Sie auf unserer Homepage: https://www.fbi-immobilien.at/

Der Vermittler ist als Doppelmakler tätig.


Infrastruktur / Entfernungen

Gesundheit
Arzt <1.500m
Apotheke <1.000m
Krankenhaus <5.000m
Klinik <6.000m

Kinder & Schulen
Schule <1.000m
Kindergarten <1.500m
Universität <7.000m
Höhere Schule <7.000m

Nahversorgung
Supermarkt <1.000m
Bäckerei <1.000m
Einkaufszentrum <1.000m

Sonstige
Bank <1.000m
Geldautomat <1.000m
Post <1.000m
Polizei <2.500m

Verkehr
Bus <500m
Autobahnanschluss <3.000m
Bahnhof <1.500m
Flughafen <8.500m

Angaben Entfernung Luftlinie / Quelle: OpenStreetMap



Lage:
Die Immobilie befindet sich auf einem großen Betriebsbaugrund in der Gemeinde Hard im österreichischen Bundesland Vorarlberg. - Gute Anbindung an öffentliche Verkehrsmittel, Autobahn und Bundesstraße - Vielfältige Nutzungsmöglichkeiten als Betriebsbaugrund, z.B. für Büros, Lagerhallen oder Produktionsstandort - Das Grundstück liegt in einer Gewerbezone, Umgeben von anderen Betriebsgebäuden und Gewerbebetrieben

Angehängte Dokumente