ländleimmo.at
/
Kaufobjekt
/
Grundstück
/
Baugrundstück
/
Vorarlberg
/
Feldkirch
/ Mäder
/
Platz für neue Wohnträume – Grundstück in Mäder zu verkaufen !!
Platz für neue Wohnträume – Grundstück in Mäder zu verkaufen !!
N/A
Grundriss
510,00 m²
Grundstücksgröße
Preis auf Anfrage
Preise
Preis auf Anfrage
Objekt Informationen
Grundstücksgröße
510,00 m²
Objektart
Grundstück
Objekttyp
Baugrundstück
Terrasse
Vorhanden
Verfügbar ab
ab Sofort
Externe ID
Szabo_JSi-25-37
Empfohlene Services unserer Partner
Objekt Beschreibung
Platz für neue Wohnträume – Grundstück in Mäder zu verkaufen!!
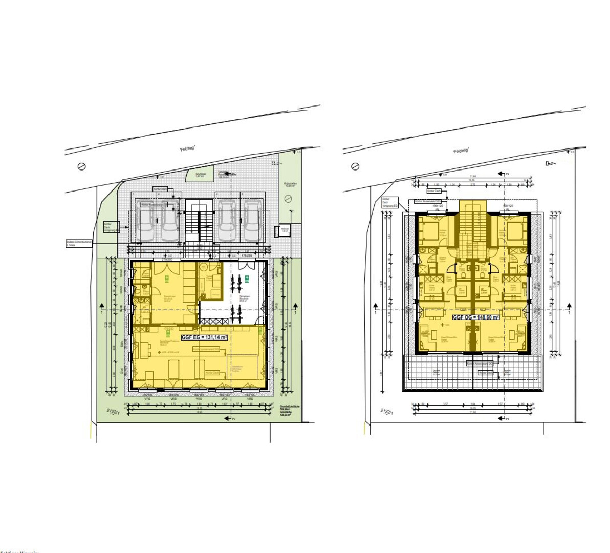
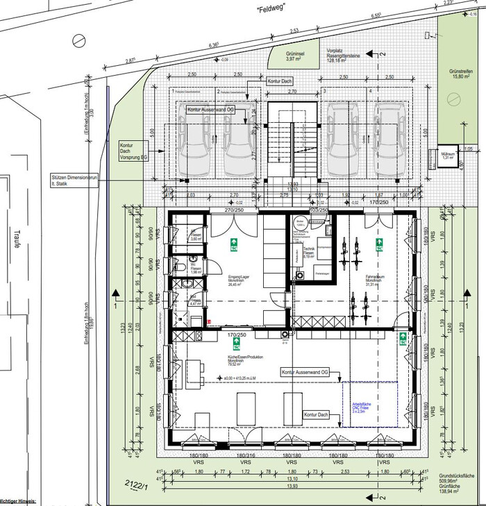
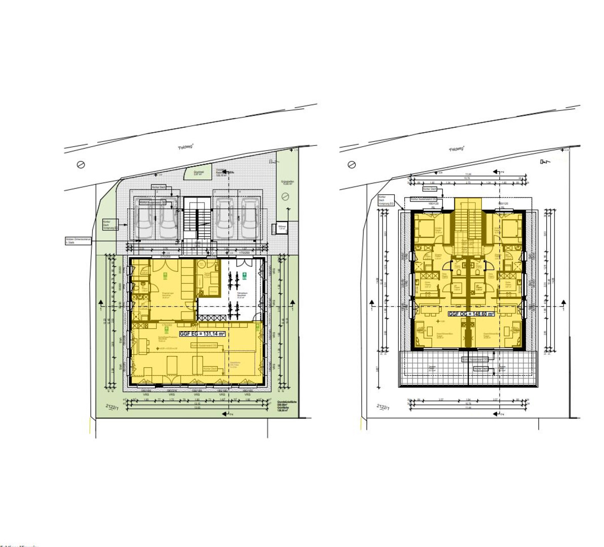
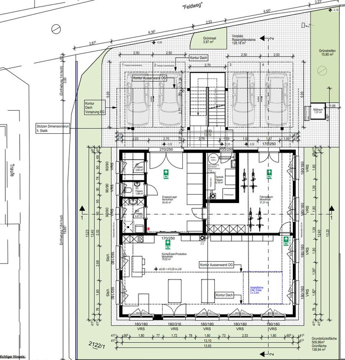
In wunderschöner, ruhiger Lage am Feldweg in Mäder wartet dieses 510 m² Große Grundstück auf seine neuen Besitzer – vielleicht genau auf Sie!
Die großzügige und optimal geschnittene Fläche bietet ideale Voraussetzungen für den Bau eines stilvollen Mehrfamilienhauses oder zweier Doppelhaushälften. Hier können Wohnträume für mehrere Generationen Wirklichkeit werden.
Das Beste daran: Ein durchdachtes Mehrfamilienhaus wurde bereits genehmigt – Sie sparen sich Zeit, Aufwand und Nerven. Die vollständigen Unterlagen sind vorhanden und können direkt durch eine Ablöse übernommen werden.
Greifen Sie zu und sichern Sie sich dieses besondere Grundstück mit großem Potenzial!
Einmalkosten: Grundbuchseintragung: 1,1% Grunderwerbssteuer: 3,5% Maklerhonorar: 3,6% inkl. MwSt. Vertragserrichtungskosten + Barauslagen Vertragsersteller Dr. Ganahl Dornbirn Szabo - Immobilien Alle Angaben nach bestem Wissen und Gewissen und stützen sich auf die vom Verkäufer zur Verfügung gestellten Informationen. Flächenangaben sind cirka-Angaben. Seitens der Szabo Immobilien wird auf ein bestehendes wirtschaftliches oder familiäres Naheverhältnis zwischen ihr und dem/der vermittelten Dritten ausdrücklich hingewiesen. Dieses Expose ist eine Vorinformation, als Rechtsgrundlage gilt alleine der abgeschlossene Kaufvertrag. §15 der Maklerverordnung gilt als vereinbart.
In wunderschöner, ruhiger Lage am Feldweg in Mäder wartet dieses 510 m² Große Grundstück auf seine neuen Besitzer – vielleicht genau auf Sie!
Die großzügige und optimal geschnittene Fläche bietet ideale Voraussetzungen für den Bau eines stilvollen Mehrfamilienhauses oder zweier Doppelhaushälften. Hier können Wohnträume für mehrere Generationen Wirklichkeit werden.
Das Beste daran: Ein durchdachtes Mehrfamilienhaus wurde bereits genehmigt – Sie sparen sich Zeit, Aufwand und Nerven. Die vollständigen Unterlagen sind vorhanden und können direkt durch eine Ablöse übernommen werden.
Greifen Sie zu und sichern Sie sich dieses besondere Grundstück mit großem Potenzial!
Einmalkosten: Grundbuchseintragung: 1,1% Grunderwerbssteuer: 3,5% Maklerhonorar: 3,6% inkl. MwSt. Vertragserrichtungskosten + Barauslagen Vertragsersteller Dr. Ganahl Dornbirn Szabo - Immobilien Alle Angaben nach bestem Wissen und Gewissen und stützen sich auf die vom Verkäufer zur Verfügung gestellten Informationen. Flächenangaben sind cirka-Angaben. Seitens der Szabo Immobilien wird auf ein bestehendes wirtschaftliches oder familiäres Naheverhältnis zwischen ihr und dem/der vermittelten Dritten ausdrücklich hingewiesen. Dieses Expose ist eine Vorinformation, als Rechtsgrundlage gilt alleine der abgeschlossene Kaufvertrag. §15 der Maklerverordnung gilt als vereinbart.