FLEXIBEL
FINANZIEREN

Kreditbedarf
Eigenmittel
%
Jahre
Zins | Laufzeit
mtl. Rate
ländleimmo.at / Kaufobjekt / Gewerbliche Immobilie / Lager / Werkstatt / Vorarlberg / Feldkirch / Feldkirch / Top-Lage für Logistik: Büro & Lager der EXTRAKLASSE

Top-Lage für Logistik: Büro & Lager der EXTRAKLASSE

images icon

N/A

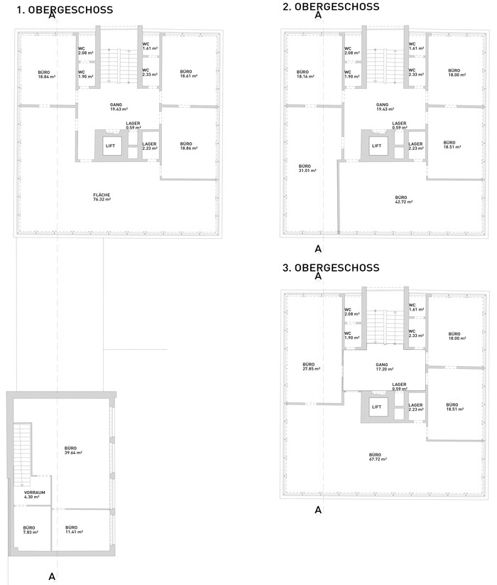
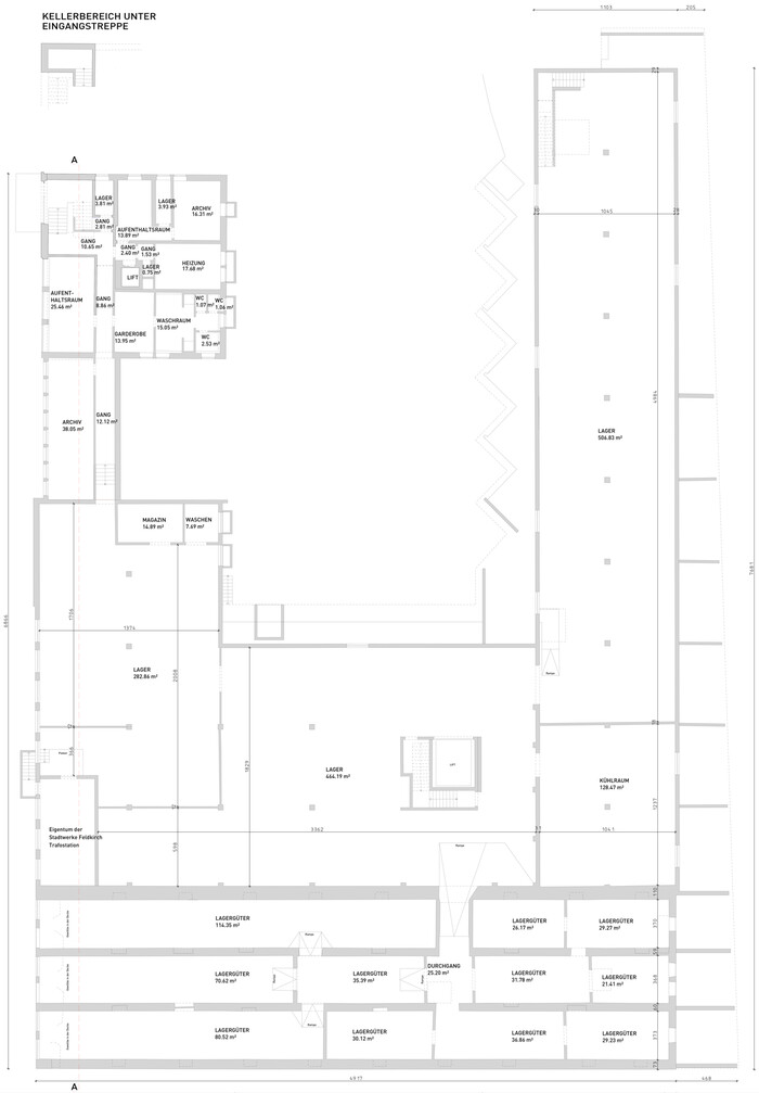
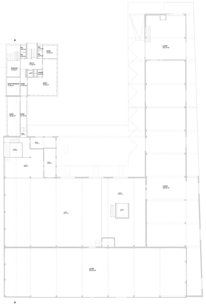
Grundriss

images icon

5.135,33 m²

Nutzfläche

Preis auf Anfrage

Reinhard Götze

RE/MAX Immowest | Immowest GmbH

Preise

Preis auf Anfrage
Einmalkosten 3%
Provision 3%

Objekt Informationen

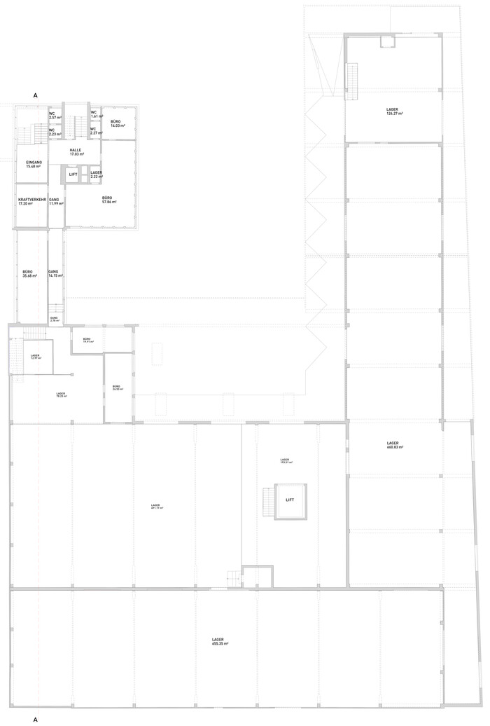
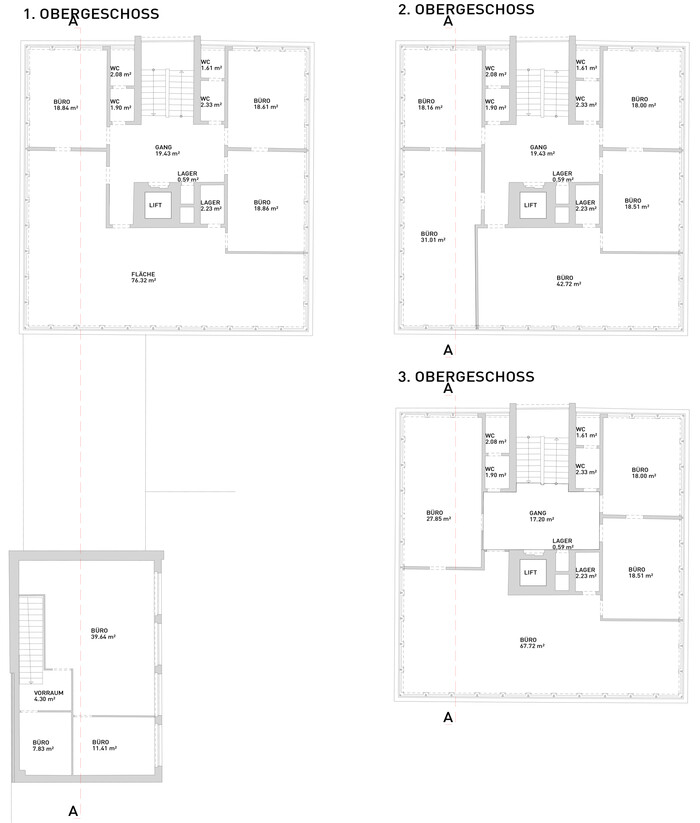
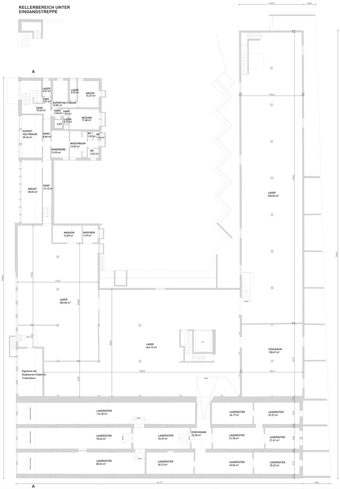
Nutzfläche 5.135,33 m²
Grundstücksgröße 6.330,00 m²
Baujahr 1973
Objektart Gewerblich
Objekttyp Lager / Werkstatt
Heizwärmebedarf (HWB) 116,00 kwh/m²a
Klasse Heizwärmebedarf (Klasse HWB) D
Externe ID Remax_5635

Empfohlene Services unserer Partner

Objekt Beschreibung


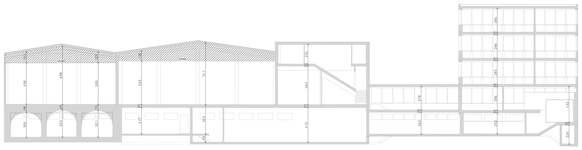
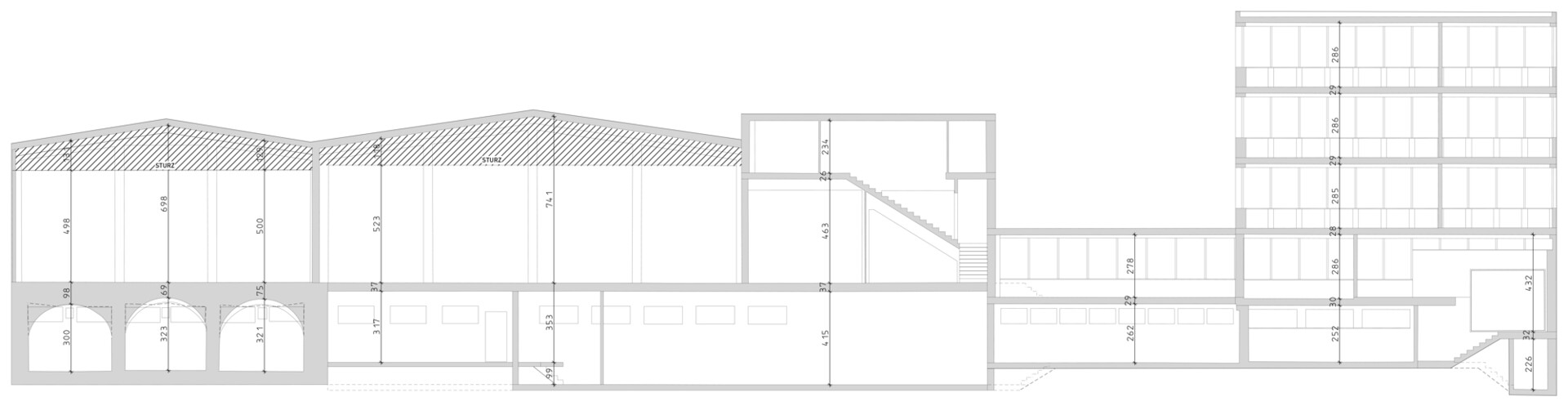
* Umschlag mit Heizung
* 9 Rampen mit Flugdach
* Warenlift Baujahr 1974 - bis 5.000 kg - Selbstfahrer
* Überdachter Zugang zum Büro
* Büro mit Klimageräte zum Kühlen und Heizen
* Personenlift, Baujahr 2014-2015
* 1973 wurden die Büros gebaut und 1977 die Hallen
* Energieausweis in Arbeit


**Top Standort für Logistik & Büros**

Willkommen in Ihrem neuen Logistik- und Bürozentrum in Feldkirch – einem Standort, der optimale Bedingungen für Unternehmen schafft, die Effizienz und Komfort vereinen möchten! Diese vielseitige Gewerbeimmobilie bietet Ihnen auf fünf Etagen 875,53 m² moderne Büroflächen, die flexibel und individuell nach Ihren Vorstellungen gestaltet werden können. Ideal für Unternehmen, die Wert auf eine angenehme Arbeitsatmosphäre und funktionale Raumgestaltung legen.
Die Lagerfläche von großzügigen 4.259,80 m² ermöglicht eine umfassende Nutzung für Lagerung, Logistik oder Produktion.
Durch die neun Rampen, die mit einem schützenden Flugdach ausgestattet sind, wird die Be- und Entladung auch bei schwierigen Witterungsbedingungen problemlos und sicher. Ihre Logistikprozesse profitieren von der durchdachten Planung, die für reibungslose Abläufe sorgt und sich somit perfekt an den Alltag eines modernen Unternehmens anpasst.
Besonders praktisch: Ein massiver Warenlift, Baujahr 1974, mit einer beeindruckenden Traglast von bis zu 5.000 kg, gewährleistet einen schnellen und sicheren Transport schwerer Waren zwischen den Etagen. Diese Eigenschaft ist ideal für Unternehmen, die auf effiziente Abläufe und eine hohe Kapazität angewiesen sind.
Nutzen Sie die Vorteile dieses einzigartigen Standorts im Rheintal, der Ihnen nicht nur großzügige Flächen, sondern auch eine logistisch durchdachte Infrastruktur bietet. Greifen Sie zu und sichern Sie sich diese Immobilie, die Ihren Geschäftsanforderungen gerecht wird und Ihren Erfolg nachhaltig unterstützt!