ländleimmo.at / Mietobjekt / Gewerbliche Immobilie / Lager / Werkstatt / Vorarlberg / Dornbirn / Hohenems / Produktionshalle in Hohenems zu vermieten

Produktionshalle in Hohenems zu vermieten

images icon

N/A

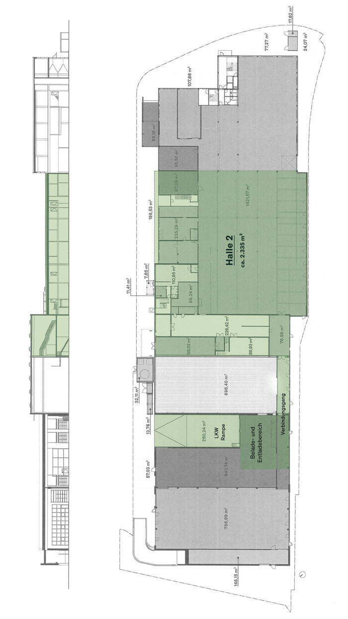
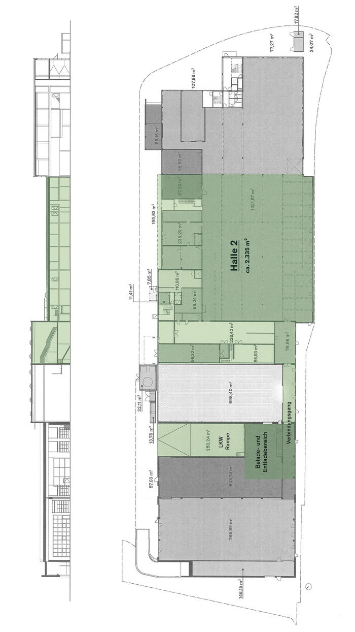
Grundriss

images icon

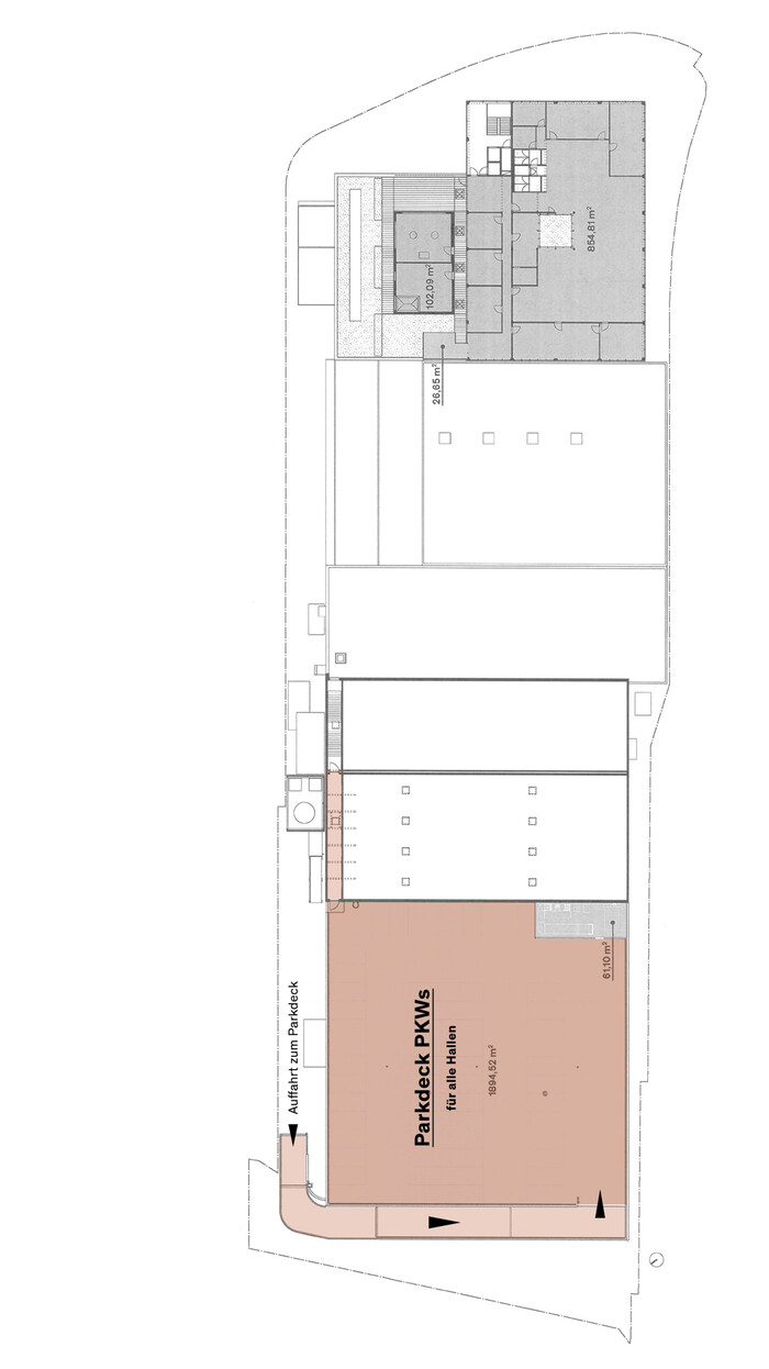
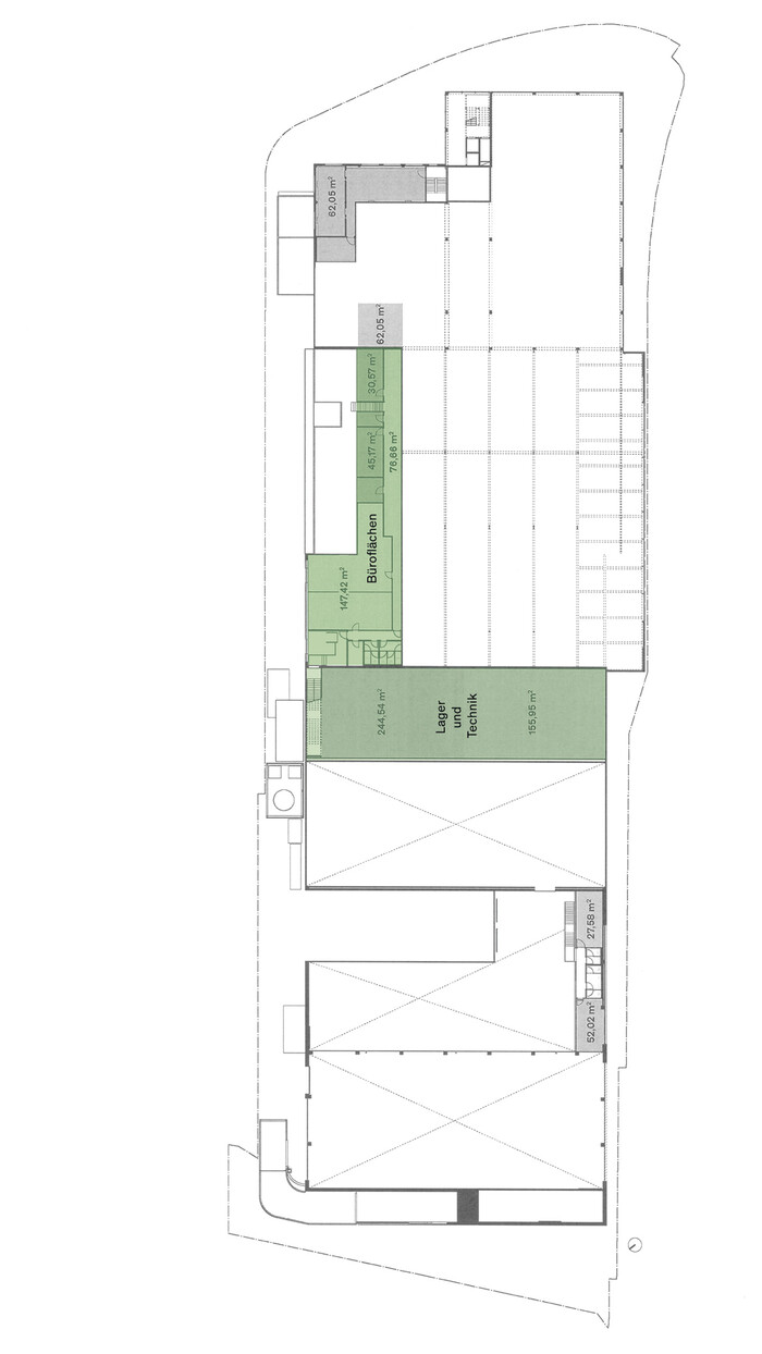
2.335,00 m²

Nutzfläche

Preis auf Anfrage

Werner Dünser

F.M. Hämmerle Holding AG

Preise

Preis auf Anfrage

Objekt Informationen

Nutzfläche 2.335,00 m²
Bautyp Gebraucht
Objektart Gewerblich
Objekttyp Lager / Werkstatt
Verfügbar ab ab sofort möglich
Externe ID Hammerle_MS627

Empfohlene Services unserer Partner

Objekt Beschreibung


Die HALLE 2 im Gewerbepark Riedstraße umfasst eine klimatisierte Fertigungshalle, Büroflächen, eine Versand- und Verladehalle sowie eine Vielzahl an Technik-, Werkstatt-, Neben- und Sozialräumen. Mit einer Produktionsfläche von ca. 1.421 m² sowie zusätzlichen Büro- und Nebenräumen bietet das Gebäude flexible Nutzungsmöglichkeiten.

Die Halle ist ca. 44 m lang, 32,3 m breit und hat eine Gesamthöhe von 6,25 m (Höhe bis Unterkante Lüftung: 4,5 m). Dank der hohen Bodenbelastung von bis zu 20 kN/m² eignet sich die Fläche auch für schwere Maschinen und Produktionsanlagen. Zusätzlich besteht aktuell die Möglichkeit, weitere Lager- und Produktionsflächen sowie ein ca. 700 m² großes Hochregallager im selben Gebäude anzumieten.

Angehängte Dokumente