ländleimmo.at / Mietobjekt / Gewerbliche Immobilie / Lager / Werkstatt / Vorarlberg / Dornbirn / Hohenems / Industriefläche in Hohenems zu vermieten

Industriefläche in Hohenems zu vermieten

images icon

N/A

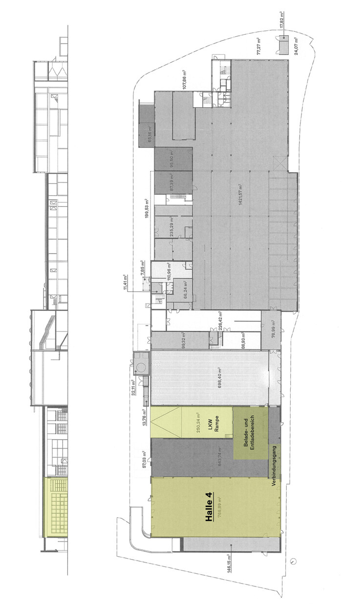
Grundriss

images icon

767,00 m²

Nutzfläche

Preis auf Anfrage

Werner Dünser

F.M. Hämmerle Holding AG

Preise

Preis auf Anfrage

Objekt Informationen

Nutzfläche 767,00 m²
Bautyp Gebraucht
Objektart Gewerblich
Objekttyp Lager / Werkstatt
Verfügbar ab ab sofort möglich
Externe ID Hammerle_MS628

Empfohlene Services unserer Partner

Objekt Beschreibung


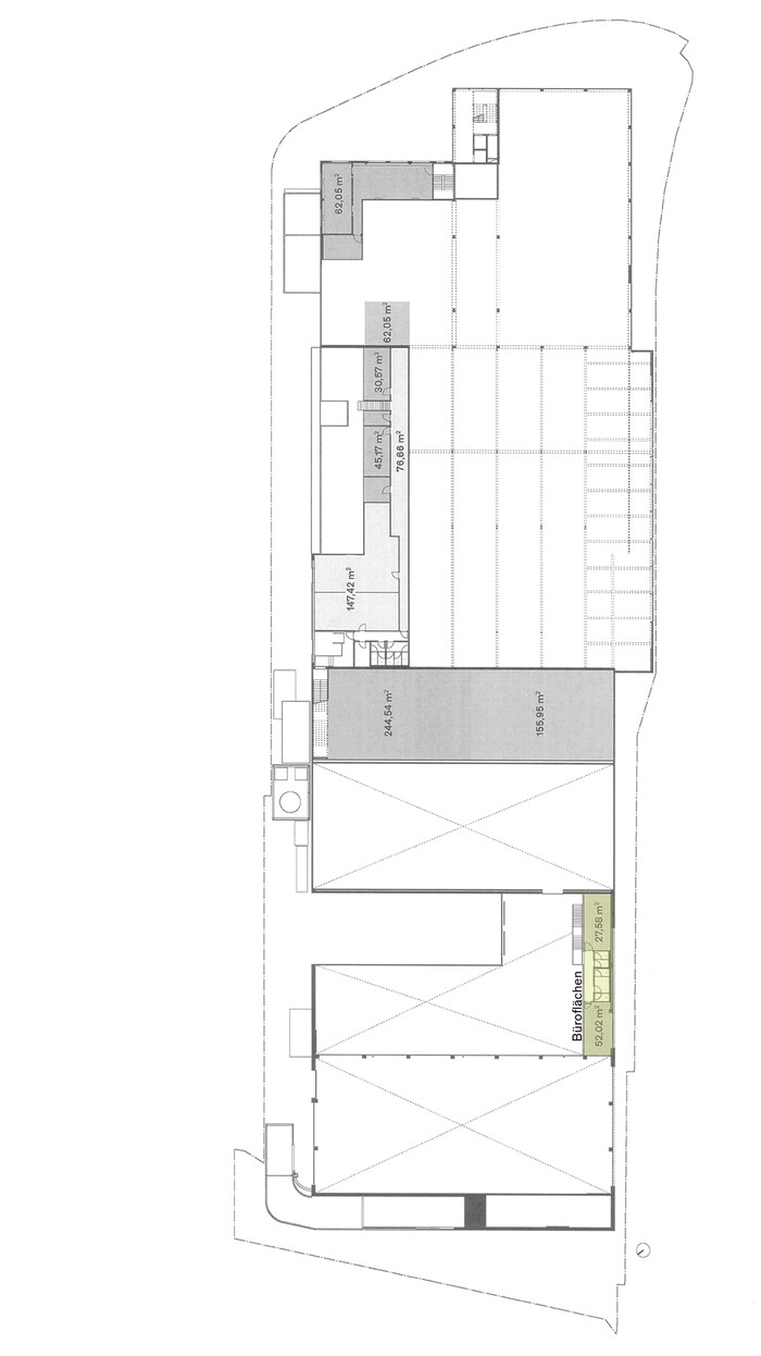
Die HALLE 4 ist Teil des vielseitigen Gewerbeparks Riedstraße in Hohenems, der aus mehreren Hallen, Büro- und Nebenräumen sowie einem Parkdeck besteht. Die Industriefläche bietet ca. 767 m² Gesamtfläche und überzeugt durch ihre großzügigen Abmessungen und vielfältige Nutzungsmöglichkeiten. Dank der lichtdurchfluteten Bauweise und einer Höhe von 6,5 Metern eignet sich die Fläche ideal für Produktions- und Lagerzwecke.

Hallenabmessung:
• Länge: ca. 42 Meter
• Breite: ca. 18,50 Meter
• Höhe: ca. 6,5 Meter

Zusätzlich können einzelne Büroräume mit separatem Zugang im Gebäude angemietet werden. Für eine optimale Logistik sorgen eine Verladerampe sowie ein ebenerdiges Tor, die einen reibungslosen Warenumschlag ermöglichen.

Angehängte Dokumente