ländleimmo.at / Mietobjekt / Gewerbliche Immobilie / Lager / Werkstatt / Vorarlberg / Bregenz / Wolfurt / Wolfurt – Lagerfläche im 1. OG (8) mit ca. 185 m²

Wolfurt – Lagerfläche im 1. OG (8) mit ca. 185 m²

images icon

N/A

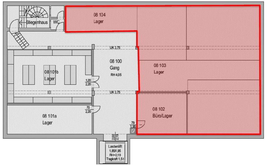
Grundriss

images icon

185,00 m²

Nutzfläche

Preis auf Anfrage

Marc Burtscher

M-Immobilien

Preise

Preis auf Anfrage

Objekt Informationen

Nutzfläche 185,00 m²
Objektart Gewerblich
Objekttyp Lager / Werkstatt
Verfügbar ab sofort

Empfohlene Services unserer Partner

Objekt Beschreibung

Wir vermieten

  • Lagerfläche im 1. OG mit ca. 185 m²
  • ab sofort verfügbar
  • Mietpreis auf Anfrage
  • Lift vorhanden
  • ausreichend Parkflächen
  • 3 BMM Kaution
  • provisionsfrei

 

Das Alge Areal ist ein optimaler Standort für kleine und mittlere Unternehmen. Das Areal bietet Büro-,  sowie Lager- und Produktionsflächen.  In unmittelbarer Nähe befindet sich eine Bahn- und Postanbindung.  Auch die Autobahn-anbindung ist nur wenige Fahrminuten entfernt. Werden Sie Teil von über  30 Mietern und nutzen Sie die Synergien der Infrastruktur!

Angehängte Dokumente