ländleimmo.at / Mietobjekt / Gewerbliche Immobilie / Geschäftslokal / Vorarlberg / Bludenz / Nüziders / Zentral gelegene Gewerbefläche in der Ortsmitte von Nüziders

Zentral gelegene Gewerbefläche in der Ortsmitte von Nüziders

images icon

N/A

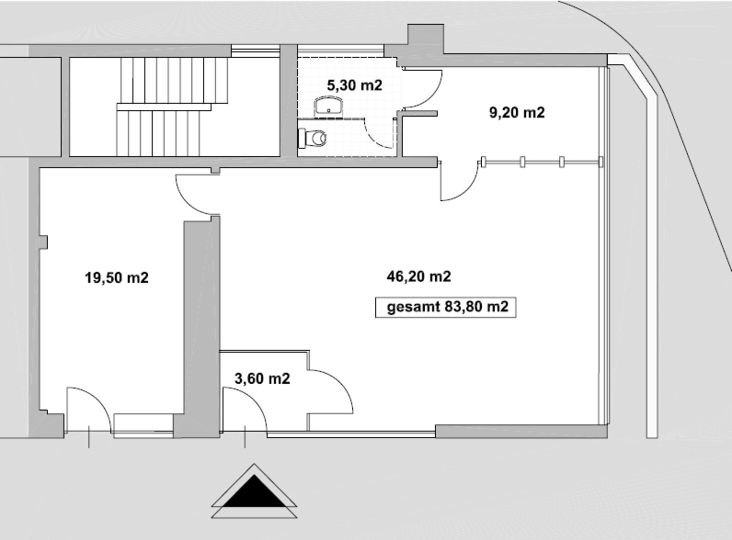
Grundriss

images icon

83,80 m²

Nutzfläche

€ 650

Franz Dunkl

Gemeinde Nüziders

Preise

Gesamtmiete (exkl. MwSt.) € 650
Gesamtmiete (inkl. MwSt.) € 780
Betriebskosten (exkl. Mwst) € 80

Objekt Informationen

Nutzfläche 83,80 m²
Etage Erdgeschoss
Objektart Gewerblich
Objekttyp Geschäftslokal
Badezimmer 1
Verfügbar ab sofort

Empfohlene Services unserer Partner

Objekt Beschreibung

Die Gemeinde Nüziders bietet eine zentral gelegene, vielseitig nutzbare und barrierefreie Gewerbefläche in der Sonnenbergstraße mit einer Gesamtfläche von 83,80 m² zur Vermietung an. Das Objekt befindet sich direkt in der Ortsmitte, unmittelbar neben einem Bäcker sowie der Poststelle und profitiert dadurch von hoher Sichtbarkeit sowie guter Lage.


Raumaufteilung:

  1. Hauptraum: 46,20 m²
  2. Nebenraum 1: 19,50 m²
  3. Nebenraum 2: 9,20 m²
  4. Badezimmer/WC: 5,30 m²
  5. Eingangsbereich: 3,60 m²


Die monatlichen Kosten für das Mietobjekt betragen:

  1. Gesamtmiete inkl. MwSt: 780,00 €
  2. – zuzüglich Betriebskosten in Höhe von 80,00 €


Für die Auswahl der Mieter:innen bitten wir um eine kurze Projektbeschreibung, die folgende Punkte umfasst:

  1. Art des geplanten Gewerbes
  2. Welche Tätigkeit oder Dienstleistung soll angeboten werden?
  3. Zielgruppe / Kund:innenkreis
  4. Wer soll angesprochen werden?
  5. Nutzungsumfang und Raumkonzept
  6. Welche Räume sollen wie genutzt werden?
  7. Öffnungszeiten und Personalbedarf
  8. Wie viele Personen werden vor Ort tätig sein und zu welchen Zeiten?
  9. Besondere Anforderungen
  10. Bedarf an spezieller Ausstattung, Technik oder Umbauten.
  11. Mehrwert für den Ort / die Gemeinde
  12. Wie trägt das Projekt zur Belebung der Ortsmitte oder zur Angebotsvielfalt bei?


Bewerbungen bitte an:

Gemeinde Nüziders

Franz Dunkl

E-Mail: [email protected]

Telefon: +43 5552 62241 72