ländleimmo.at / Mietobjekt / Gewerbliche Immobilie / Büro / Ordination / Vorarlberg / Feldkirch / Mäder / Mäder – Bürofläche im KG mit ca. 59 m²

Mäder – Bürofläche im KG mit ca. 59 m²

images icon

N/A

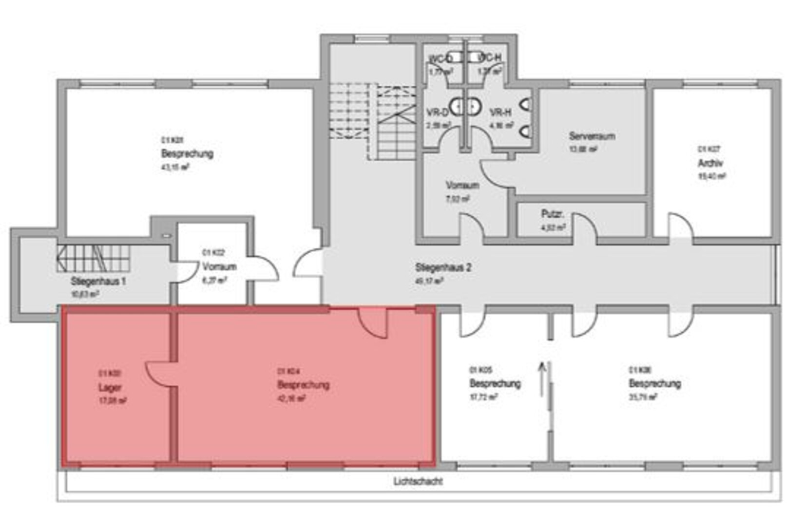
Grundriss

images icon

59,00 m²

Nutzfläche

Preis auf Anfrage

Preise

Preis auf Anfrage

Objekt Informationen

Nutzfläche 59,00 m²
Etage Kellergeschoss
Objektart Gewerblich
Objekttyp Büro / Ordination
Parkplatz
  • Freiplatz

Empfohlene Services unserer Partner

Objekt Beschreibung

Die Grundstücksfläche der Industriestraße liegt im Gewerbegebiet Mäder und bietet eine großzügige Fläche für Entwicklungs-, Produktions- oder Lagerhallen. Die günstige Verkehrsanbindung an das Autobahnnetz Österreich und Schweiz machen den Standort für international denkende Unternehmen interessant.



Wir vermieten:

  1. Bürofläche mit ca. 59 m²
  2. Kellergeschoss
  3. Mietpreis auf Anfrage
  4. 3 BMM Kaution
  5. provisionsfrei
  6. ausreichend Parkflächen


Angehängte Dokumente