ländleimmo.at / Mietobjekt / Gewerbliche Immobilie / Büro / Ordination / Vorarlberg / Dornbirn / Dornbirn / Platz für Kreativität: Büro in Dornbirn Steinebach

Platz für Kreativität: Büro in Dornbirn Steinebach

images icon

N/A

Grundriss

images icon

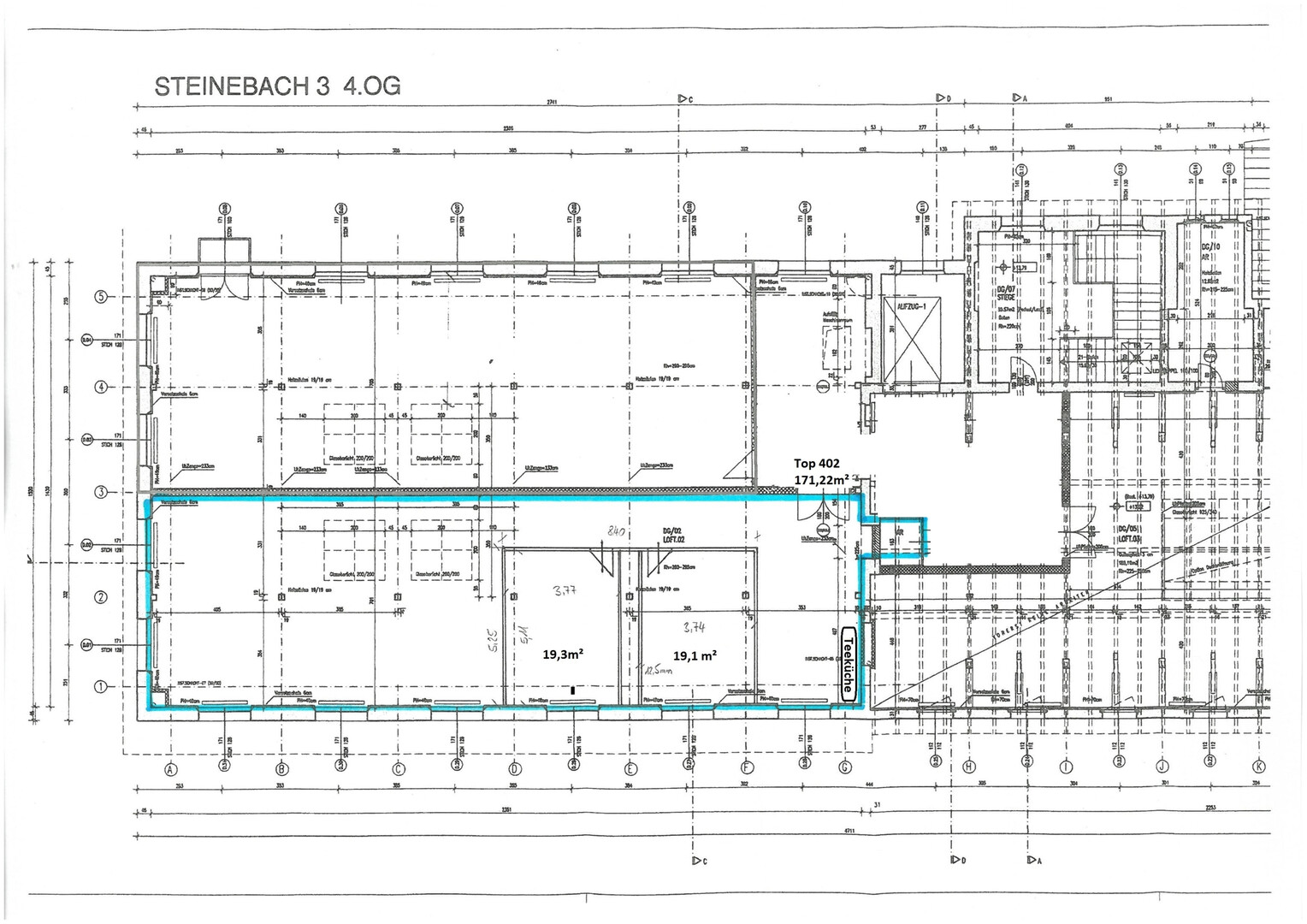
171,22 m²

Nutzfläche

Preis auf Anfrage

Werner Dünser

F.M. Hämmerle Holding AG

Preise

Preis auf Anfrage

Objekt Informationen

Nutzfläche 171,22 m²
Etage 4. OG
Bautyp Gebraucht
Objektart Gewerblich
Objekttyp Büro / Ordination
Verfügbar ab sofort
Externe ID Hammerle_LG655

Empfohlene Services unserer Partner

Objekt Beschreibung


Das Objekt befindet sich im Steinebach Areal in Dornbirn Oberdorf, wo derzeit mehr als 80 Unternehmen verschiedenster Branchen angesiedelt sind. Die Mieter:innen schätzen vor allem das partnerschaftliche Miteinander sowie die zahlreichen Vorteile des Areals wie Lage, Ausstattung, Architektur und Infrastruktur. Zudem bietet der Standort ausreichend Parkplätze, einladende Freiflächen für Schaffenspausen, Seminarräumlichkeiten und vielfältige Serviceleistungen.

Lage:
Der Standort Steinebach zeichnet sich durch seine zentrale Lage in Vorarlberg aus. Dazu kommen zahlreiche Vorteile wie die leichte und sehr gute Erreichbarkeit sowohl mit dem Auto als auch durch öffentliche Verkehrsmittel. Darüber hinaus stehen Gratisparkplätze und Ladestellen für E-Mobilität zur Verfügung.

Angehängte Dokumente