ländleimmo.at / Mietobjekt / Gewerbliche Immobilie / Büro / Ordination / Vorarlberg / Dornbirn / Dornbirn / Dornbirn – Gewerbefläche (Büro/Lager/Produktion) mit ca. 213 m² im EG und ca. 359 m² im OG

Dornbirn – Gewerbefläche (Büro/Lager/Produktion) mit ca. 213 m² im EG und ca. 359 m² im OG

images icon

N/A

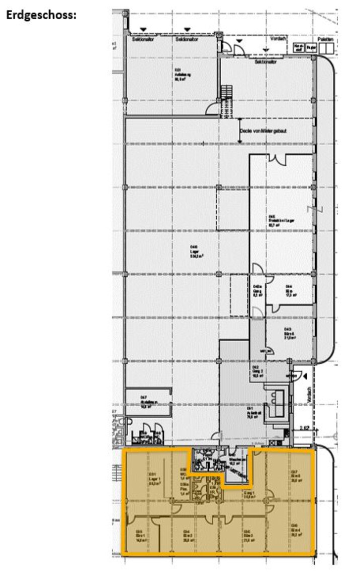
Grundriss

images icon

572,00 m²

Nutzfläche

Preis auf Anfrage

Marc Burtscher

M-Immobilien

Preise

Preis auf Anfrage

Objekt Informationen

Nutzfläche 572,00 m²
Objektart Gewerblich
Objekttyp Büro / Ordination
Verfügbar ab sofort
Parkplatz
  • Freiplatz

Empfohlene Services unserer Partner

Objekt Beschreibung

Das Gewerbeobjekt MS1 in Dornbirn verfügt über Büro- und Gewerbeflächen und ist ein optimaler Standort für kleine und mittlere Unternehmen. Es werden individuelle Raumlösungen für Büro, Handel und Service geboten. Durch seine ausgezeichnete Lage mit bester Anbindung an das Österreichische und Schweizer Autobahnnetz wird es auch für international denkende Unternehmen interessant. Zusätzlich bietet die Liegenschaft eine ansprechende Landschaft dank des angrenzenden Dornbirner Rieds.



Wir vermieten:

  1. Gewerbefläche mit ca. 213 m² im EG und ca. 359 m² im OG
  2. Lager / Büro / Produktion
  3. Raumhöhe: 2,41 / 2,87 m (EG) und 2,31 / 2,77 m (OG)
  4. Verfügbar ab sofort 
  5. Mietpreis auf Anfrage
  6. Ausreichend Parkplätze
  7. Optional Außenflächen
  8. 3 BMM Kaution
  9. Provisionsfrei


Angehängte Dokumente