ländleimmo.at
/
Mietobjekt
/
Gewerbliche Immobilie
/
Büro / Ordination
/
Vorarlberg
/
Bludenz
/ Bings
/
Vielseitige Geschäftsfläche mit idealer Raumaufteilung
Vielseitige Geschäftsfläche mit idealer Raumaufteilung
5 Zimmer
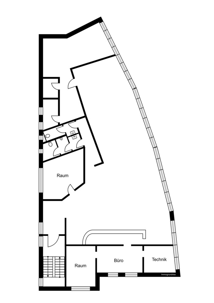
Grundriss
390,00 m²
Nutzfläche
€ 2.730
Preise
Gesamtmiete (exkl. MwSt.)
Gesamtbelastung (Miete + Betriebskosten + Sonstige Kosten) abzüglich Heizkosten und MwSt.
€ 2.730
Betriebskosten (exkl. Mwst)
€ 390
Objekt Informationen
Nutzfläche
390,00 m²
Zimmer
5
Baujahr
1992
Objektart
Gewerblich
Objekttyp
Büro / Ordination
Heizung
- Fernwärme
- Zentralheizung
Gesamtanzahl Stellplätze
2
Heizwärmebedarf (HWB)
16,20 kwh/m²a
Klasse Heizwärmebedarf (Klasse HWB)
C
Gesamtenergieeffizienz-Faktor (fGEE)
1,25 kwh/m²a
Klasse Gesamtenergieeffizienz-Faktor (Klasse fGEE)
C
Externe ID
phima_1647
Parkplatz
- Freiplatz (2)
Ausstattung:
-
Gäste-WC
Empfohlene Services unserer Partner
Objekt Beschreibung
Zur Vermietung gelangt eine großzügige Gewerbefläche mit ca. 390 m², die vielfältige Nutzungsmöglichkeiten bietet und sich ideal für Büros oder andere gewerbliche Konzepte eignet.
Die Fläche ist derzeit renovierungsbedürftig, eröffnet jedoch enormes Potenzial zur individuellen Gestaltung und Anpassung an Ihre spezifischen Anforderungen, wodurch Sie Ihre Geschäftsräume ganz nach Ihren Vorstellungen entwickeln können.
Besonders hervorzuheben ist der attraktive Mietzins, der dieses Objekt zu einer interessanten Gelegenheit für Unternehmen macht, die auf der Suche nach einer großzügigen, flexibel nutzbaren Fläche mit Entwicklungsmöglichkeiten sind. Gerne präsentieren wir Ihnen diese Gewerbefläche im Rahmen einer persönlichen Besichtigung.
Vertragserrichtungskosten
Kaution: 3 Bruttomonatsmieten
Lage:Die Gewerbehalle befindet sich in einem etablierten und wirtschaftlich dynamischen Gewerbe- und Industriegebiet am östlichen Stadtrand. Der Standort zeichnet sich durch seine strategisch günstige Lage innerhalb der Region sowie durch eine sehr gute Verkehrsanbindung aus.
In unmittelbarer Nähe verläuft die Arlberg Schnellstraße S16, welche eine schnelle Verbindung in Richtung Feldkirch, Innsbruck sowie in die umliegenden Täler wie das Montafon und das Klostertal ermöglicht. Dadurch ist der Standort sowohl regional als auch überregional hervorragend erreichbar und bietet ideale Voraussetzungen für Logistik-, Produktions- oder Handelsbetriebe.
Das Betriebsgebiet Brunnenfeld hat sich in den vergangenen Jahren zu einem wichtigen Wirtschaftsstandort der Region entwickelt. Zahlreiche etablierte Unternehmen aus den Bereichen Gewerbe, Handwerk, Dienstleistung und Logistik sind hier angesiedelt und schaffen ein wirtschaftlich aktives Umfeld mit guten Synergieeffekten.
Auch die Anbindung an den öffentlichen Verkehr ist gegeben: Der nahegelegene Bahnhof Bahnhof Bludenz sowie regionale Busverbindungen gewährleisten eine gute Erreichbarkeit für Mitarbeiter und Kunden.
Die Fläche ist derzeit renovierungsbedürftig, eröffnet jedoch enormes Potenzial zur individuellen Gestaltung und Anpassung an Ihre spezifischen Anforderungen, wodurch Sie Ihre Geschäftsräume ganz nach Ihren Vorstellungen entwickeln können.
Besonders hervorzuheben ist der attraktive Mietzins, der dieses Objekt zu einer interessanten Gelegenheit für Unternehmen macht, die auf der Suche nach einer großzügigen, flexibel nutzbaren Fläche mit Entwicklungsmöglichkeiten sind. Gerne präsentieren wir Ihnen diese Gewerbefläche im Rahmen einer persönlichen Besichtigung.
Einmalkosten / Nebenkosten
Provision: 2 Bruttomonatsmieten zzgl. 20% MwSt.Vertragserrichtungskosten
Kaution: 3 Bruttomonatsmieten
Lage:Die Gewerbehalle befindet sich in einem etablierten und wirtschaftlich dynamischen Gewerbe- und Industriegebiet am östlichen Stadtrand. Der Standort zeichnet sich durch seine strategisch günstige Lage innerhalb der Region sowie durch eine sehr gute Verkehrsanbindung aus.
In unmittelbarer Nähe verläuft die Arlberg Schnellstraße S16, welche eine schnelle Verbindung in Richtung Feldkirch, Innsbruck sowie in die umliegenden Täler wie das Montafon und das Klostertal ermöglicht. Dadurch ist der Standort sowohl regional als auch überregional hervorragend erreichbar und bietet ideale Voraussetzungen für Logistik-, Produktions- oder Handelsbetriebe.
Das Betriebsgebiet Brunnenfeld hat sich in den vergangenen Jahren zu einem wichtigen Wirtschaftsstandort der Region entwickelt. Zahlreiche etablierte Unternehmen aus den Bereichen Gewerbe, Handwerk, Dienstleistung und Logistik sind hier angesiedelt und schaffen ein wirtschaftlich aktives Umfeld mit guten Synergieeffekten.
Auch die Anbindung an den öffentlichen Verkehr ist gegeben: Der nahegelegene Bahnhof Bahnhof Bludenz sowie regionale Busverbindungen gewährleisten eine gute Erreichbarkeit für Mitarbeiter und Kunden.