FLEXIBEL
FINANZIEREN

Kreditbedarf
Eigenmittel
%
Jahre
Zins | Laufzeit
mtl. Rate
ländleimmo.at / Kaufobjekt / Gewerbliche Immobilie / Anlageimmobilie / Zinshaus / Vorarlberg / Bludenz / Vandans / Renditeobjekt mit 6 exclusiven Einheiten und Tiefgarage

Renditeobjekt mit 6 exclusiven Einheiten und Tiefgarage

images icon

N/A

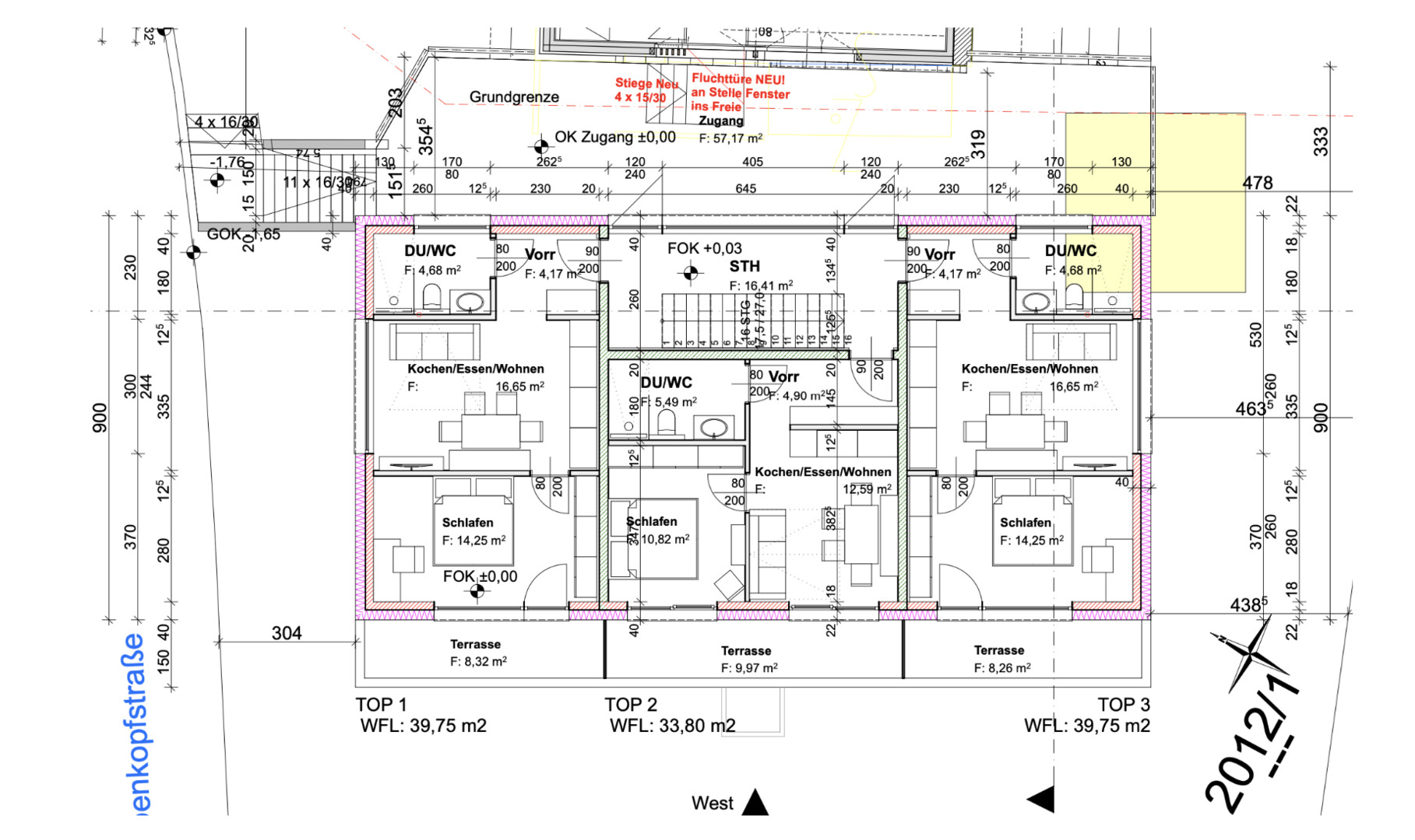
Grundriss

images icon

319,00 m²

Nutzfläche

Preis auf Anfrage

DS Home Gmbh

Preise

Preis auf Anfrage

Objekt Informationen

Nutzfläche 319,00 m²
Grundstücksgröße 426,00 m²
Bautyp Neubau (bis 5 Jahre)
Baujahr 2018
Bauweise
  • Holz
  • Massiv
Objektart Gewerblich
Objekttyp Anlageimmobilie / Zinshaus
Balkon 9,80 m²
Terrasse 9,80 m²
Garten 15,00 m²
Fahrradraum Vorhanden
Heizung
  • Wärmepumpe
Verfügbar ab sofort
Parkplatz
  • (Tief-)Garage

Ausstattung:

  • icon Einbauküche
  • icon Boden: Laminat, Steinboden
  • icon Bad mit: Dusche, Fenster
  • icon Ausrichtung Balkon: Südwesten

Empfohlene Services unserer Partner

Objekt Beschreibung

Willkommen in Vandans! Hier präsentieren wir Ihnen eine exklusive Gewerbliche Immobilie vom Typ Anlageimmobilie / Zinshaus in bester Lage an der Scheibenkopfstraße. Dieses Neubauobjekt wurde im Jahr 2020 erbaut und bietet eine Vielzahl von Annehmlichkeiten für Investoren.


Die Immobilie verfügt über eine Gesamtwohnfläche von 319 Quadratmetern und besticht durch modernes Design und hochwertige Ausstattung. Zu den Highlights gehören ein Balkon mit 9,8 m², eine Terrasse mit 9,8 m² und ein gemütlicher Garten mit 15 m². Darüber hinaus gibt es eine praktische Fahrrad-Skiraum für die Bewohner.


Die Lage des Objekts ist ideal für Geschäftsinteressierte, da es sich in einer aufstrebenden Gegend befindet. In der Umgebung finden Sie zahlreiche lokale Annehmlichkeiten wie Einkaufsmöglichkeiten, Restaurants und öffentliche Verkehrsmittel.


Das Gebäude verfügt über eine eigene Tiefgarage mit 6 Parkplätze . Diese Immobilie bietet eine einzigartige Gelegenheit für Investoren, die auf der Suche nach einer lukrativen Anlage sind.


Wenn Sie mehr über diese Gewerbliche Immobilie erfahren möchten oder eine Besichtigung vereinbaren möchten, zögern Sie nicht, uns zu kontaktieren. Wir stehen Ihnen gerne zur Verfügung, um Ihnen weitere Informationen zu geben und Sie bei Ihrem Immobilienkauf zu unterstützen.

Angehängte Dokumente