ländleimmo.at / Mietobjekt / Garage/Stellplatz / Außenstellplatz / Vorarlberg / Feldkirch / Feldkirch / Tiefgaragenstellplatz in Feldkirch/Nofels zu mieten

Tiefgaragenstellplatz in Feldkirch/Nofels zu mieten

images icon

N/A

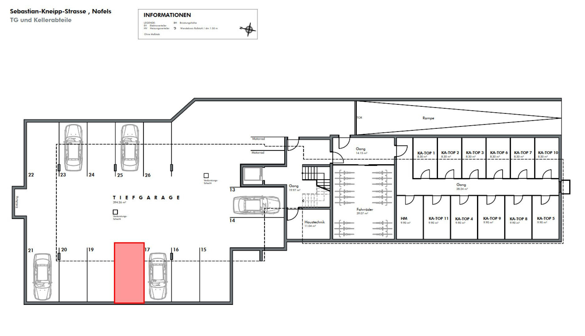
Grundriss

€ 99

Daniel Marte

Rimo Immobilien GmbH

Preise

Gesamtbelastung € 99
Netto-Kaltmiete € 82,5
Kaution 3 Bruttomonatsmieten
Einmalkosten 1 Bruttomonatsmiete zzgl. 20% USt.
Provision 1 Bruttomonatsmiete zzgl. 20% USt.
Erklärung Kosten inkl. Betriebskosten

Objekt Informationen

Objektart Garage/Stellplatz
Objekttyp Außenstellplatz
Verfügbar ab sofort
Gesamtanzahl Stellplätze 1
Externe ID justimmo_378244_5681/523
Parkplatz
  • Freiplatz (1)

Ausstattung:

  • icon Parkplatz Tiefgarage

Empfohlene Services unserer Partner

Objekt Beschreibung


vermietet wird in einer gepflegten Anlage ein KFZ-Abstellplatz in der Tiefgarage.

  • Stellplatz Nr. 18
  • Helle Tiefgarage
  • E-Ladestation vorhanden (für Bewohner nutzbar

Unsere Angaben beziehen sich auf die Auskünfte des Eigentümers. Irrtum und Änderungen vorbehalten.

 

Noch nichts gefunden? Wir informieren Sie über geeignete Immobilienangebote noch vor allen anderen.
Legen Sie jetzt kostenlos Ihren individuellen Suchagenten unter folgendem Link an. Wir schicken Ihnen passende Immobilien exklusiv vorab zu.
Suchagent anlegen

Wir weisen darauf hin, dass zwischen dem Vermittler und dem zu vermittelnden Dritten ein familiäres oder wirtschaftliches Naheverhältnis besteht.

Der Vermittler ist als Doppelmakler tätig.


Infrastruktur / Entfernungen

Gesundheit
Arzt <1.000m
Apotheke <500m
Krankenhaus <2.750m

Kinder & Schulen
Schule <500m
Kindergarten <500m
Höhere Schule <3.000m
Universität <3.000m

Nahversorgung
Supermarkt <750m
Bäckerei <500m
Einkaufszentrum <3.000m

Sonstige
Bank <500m
Geldautomat <500m
Post <500m
Polizei <2.750m

Verkehr
Bus <250m
Bahnhof <2.000m
Autobahnanschluss <4.250m

Angaben Entfernung Luftlinie / Quelle: OpenStreetMap



Lage:
In der Sebastian-Kneipp-Straße 18+18a in Nofels.

Angehängte Dokumente