FLEXIBEL
FINANZIEREN

Kreditbedarf
Eigenmittel
%
Jahre
Zins | Laufzeit
mtl. Rate
ländleimmo.at / Kaufobjekt / Ferienimmobilien / Ferienhaus / Vorarlberg / Bregenz / Mittelberg / Ein Stück heile Welt...Alpenchalet in eindrucksvoller Lage in Mittelberg!

Ein Stück heile Welt...Alpenchalet in eindrucksvoller Lage in Mittelberg!

images icon

8 Zimmer

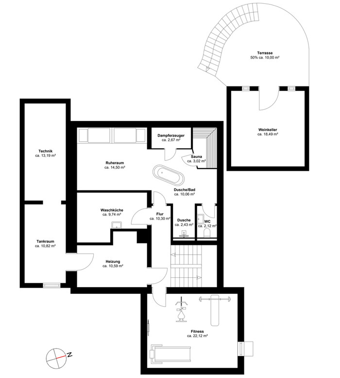
Grundriss

images icon

342,00 m²

Wohnfläche

€ 1.850.000

Preise

Kaufpreis € 1.850.000
Einmalkosten Provision _3%
Provision _3%

Objekt Informationen

Wohnfläche 342,00 m²
Grundstücksgröße 1.090,00 m²
Zimmer 8
Bautyp Neubau (bis 5 Jahre)
Baujahr 1960
Objektart Ferienimmobilien
Objekttyp Ferienhaus
Badezimmer 3
Verfügbar ab nach Absprache
Externe ID engel_volkers_SC-LG048

Empfohlene Services unserer Partner

Objekt Beschreibung


Dieses wunderschöne Chalet bietet die perfekte Kombination aus Luxus, Komfort und traditionellem Alpencharme. Erbaut im Jahre 1950 und kernsaniert bei Übernahme im Jahre 2011. Auf einem großzügigen, aufwändig hangbefestigtem Grundstück von ca. 1.090 m² gelegen, bietet diese Immobilie, aus dem auf der Südwestterasse befindlichen Jacuzzi atemberaubende Ausblicke auf die umliegenden Berge... Widderstein...Walmendinger Horn und das Nebelhorn Richtung Oberstdorf. Dieses Anwesen schafft eine ruhige Atmosphäre, ideal für ein entspanntes Leben. Im Winter wie im Sommer ist die Lage ideal, um zum Wandern, Skifahren oder Snowboarden in Ihr gemütliches Zuhause zurückzukehren. Mit ca. 342 m² Wohn– und Nutzfläche inklusive Fitness, Wellness und Weinstube beeindruckt das Chalet mit wunderschöner Holzverarbeitung, sowohl innen als auch außen, die das zeitlose Handwerk traditioneller Walser Bergchalets widerspiegelt. Das Innere kombiniert moderne Akzente mit der Wärme von Naturholz, von den Böden bis zu den Deckenbalken und schafft so eine gemütliche und einladende Atmosphäre. Das Anwesen verfügt über fünf großzügige Schlafzimmer und vier stilvoll ausgestattete Badezimmer, die ausreichend Platz für Familie und Gäste bieten. Der offene Wohnbereich ist das Herzstück des Hauses und um einen großen Kamin herum gestaltet – perfekt für gesellige Abende nach einem Tag auf der Piste oder beim Wandern. Große Fenster durchfluten den Raum mit natürlichem Licht und der Zugang zu Balkonen, Wintergarten und einer großen Terrasse lassen die Schönheit der Umgebung zu einem Teil Ihres neuen Zuhauses werden. Das Chalet ist in perfektem Zustand und bietet Räume, die individuell gestaltet werden können - sei es für zusätzliche Schlafzimmer, ein privates Büro oder auch Kinderzimmer. Der Außenbereich, wie auch die Innenräume sind so gestaltet, dass er die spektakuläre alpine Umgebung optimal nutzt und einen idealen Rahmen bietet um die frische Bergluft zu geniessen. Dieses Chalet ist eine seltene Gelegenheit, ein luxuriöses, alpines Refugium mit Charakter und unschlagbaren Aussichten zu besitzen, mit der Freiheit, es nach Ihren persönlichen Wünschen zu gestalten. Auch für Platz von Ihrem Fuhrpark ist gesorgt…die direkt vom Haus erreichbare Doppelgarage und etwa 4-5 Stellplätze im freien sollten für Bewohner und Gäste genügen.

Lage:
Das Kleinwalsertal in Vorarlberg gehört zwar zu Österreich, ist aber auf dem Landweg nur von Deutschland aus zu erreichen. Schon die Anreise durch die einzigartige Alpenkulisse ist beeindruckend: In drei Höhenlagen zwischen 1.100 m und 2.536 Meter öffnet sich die Bergwelt des Kleinwalsertals - perfekte Voraussetzungen für unvergessliche Urlaubserlebnisse im Sommer wie im Winter. Mit einer durchschnittlichen Höchsttemperatur von 22°C ist Mittelberg auch in den Sommermonaten ideal für sportliche Outdoor-Aktivitäten wie Wandern, Mountainbiken, Trailrunning, Klettern und vieles mehr. Abkühlung versprechen die umliegenden Seen und Schwimmbäder, wie der Freibergsee in Oberstdorf, das Schwimmbad Riezlern, das Moorbad Reichenbach in Oberstdorf, die Therme Oberstdorf und viele mehr. Aber auch kulturell und kulinarisch hat die Region einiges zu bieten. Ob bei einer gemütlichen Brettljause in herrlicher Bergkulisse auf einer der zahlreichen bewirtschafteten Almen oder in einem feinen Gourmetrestaurant im Tal - in der Genussregion Kleinwalsertal kann man es sich so richtig gut gehen lassen.