ländleimmo.at
/
Kaufobjekt
/
Wohnung
/
Terrassenwohnung
/
Vorarlberg
/
Dornbirn
/ Lustenau
/
3-Zimmer Terrassenwohnung in schöner Lage im 'Hasenfeld' (Top B02)
3-Zimmer Terrassenwohnung in schöner Lage im 'Hasenfeld' (Top B02)
3 Zimmer
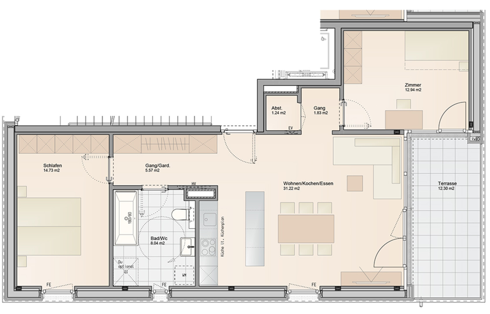
Grundriss
75,57 m²
Wohnfläche
€ 528.000
Preise
Kaufpreis
€ 528.000
Preis (Auto-)Stellplatz
zzgl. zum Kaufpreis
€ 27.000
Garage
Objekt Informationen
Wohnfläche
75,57 m²
Zimmer
3
Etage
1. OG
Bautyp
Neubau/Erstbezug
Objektart
Wohnung
Objekttyp
Terrassenwohnung
Terrasse
12,30 m²
Keller
6,77 m²
Externe ID
justimmo_53092_904-B02
Parkplatz
- (Tief-)Garage
- Freiplatz (1)
Ausstattung:
-
Parkplatz Garage
-
Lift
-
Barrierefrei
Empfohlene Services unserer Partner
Objekt Beschreibung
3-Zimmer Terrassenwohnung in schöner Lage im 'Hasenfeld' (Top B02)
RUHIGES WOHNGLÜCK NAHE ALTEM RHEIN
Im Ortsteil „Hasenfeld“ in Lustenau entsteht das Neubauprojekt Untere Aue. Die Umgebung des Projekts ist vorrangig geprägt von lockerer Bebauung und der Naherholungsregion um den Alten Rhein. Es werden zwei hochwertige Wohnhäuser mit überdachten Außenbereichen realisiert.
Ein bestehender, alter Baum wird in das Gesamtbild des Projekts mit einbezogen und bleibt erhalten. Die Ausführung in Holz-Hybrid-Bauweise setzt auch in puncto Nachhaltigkeit ein klares Signal und strahlt durch die Holzfassaden eine angenehm wohnliche Atmosphäre aus. Durchgehend raumhohe Fenster und Panoramaverglasungen schaffen helle Wohnräume mit viel natürlichem Licht. Auch die Beheizung der Kleinwohnanlage richtet sich nach modernen, umweltfreundlichen Standards: Neben der Heizung mittels Wärmepumpe entsteht auf dem Dach zusätzlich eine Photovoltaikanlage.
VIELSEITIGE GEMEINDE UND ERHOLUNG IN DER IDYLLE
Die Lage des Neubauprojekts, nahe dem Lustenauer Knotenpunkt „Gasthaus Engel“ und dem Erholungsgebiet am Alten Rhein, bringt einige Vorteile mit sich. Einerseits liegen die zwei Wohnhäuser in einem äußerst ruhigen Wohngebiet, fernab vom Verkehr und nur wenige Radminuten entfernt vom Alten Rhein. Andererseits sind die Autobahnauffahrten Dornbirn West sowie Hohenems in wenigen Minuten erreichbar. Auch mit der nahegelegenen Bushaltestelle „Wiesenrain“ sind einige Hotspots bequem zu erreichen: Die Busse bieten eine kurze Fahrzeit zum Kirchplatz Lustenau, zur Messekreuzung Dornbirn sowie zum Hohenemser Bahnhof. Zudem ist die Nähe zur Schweizer Grenze vor allem für Pendler ein großer Vorteil.
Auch die Marktgemeinde an sich hat einiges zu bieten: Der Ortskern mit dem blauen Platz, ist mit diversen Restaurants, Cafés und dem Reichshofsaal immer einen Besuch wert. Am Platz finden außerdem ganzjährig unterschiedlichste Events und Märkte statt. Es gibt zahlreiche Nahversorger, ein gut ausgebautes Bildungs- und Betreuungsangebot sowie ein attraktives Sport- und Freizeitprogramm.
Mit der Wohnbauförderung in Vorarlberg bleibt der Traum vom Eigenheim attraktiv. Profitieren Sie jetzt von guten Konditionen – und sparen Sie zusätzlich bis zu € 11.500,- durch den Entfall der Nebengebühren.
Weitere Wohneinheiten und Projekte finden Sie auf unserer Homepage: www.zima.at
RUHIGES WOHNGLÜCK NAHE ALTEM RHEIN
Im Ortsteil „Hasenfeld“ in Lustenau entsteht das Neubauprojekt Untere Aue. Die Umgebung des Projekts ist vorrangig geprägt von lockerer Bebauung und der Naherholungsregion um den Alten Rhein. Es werden zwei hochwertige Wohnhäuser mit überdachten Außenbereichen realisiert.
Ein bestehender, alter Baum wird in das Gesamtbild des Projekts mit einbezogen und bleibt erhalten. Die Ausführung in Holz-Hybrid-Bauweise setzt auch in puncto Nachhaltigkeit ein klares Signal und strahlt durch die Holzfassaden eine angenehm wohnliche Atmosphäre aus. Durchgehend raumhohe Fenster und Panoramaverglasungen schaffen helle Wohnräume mit viel natürlichem Licht. Auch die Beheizung der Kleinwohnanlage richtet sich nach modernen, umweltfreundlichen Standards: Neben der Heizung mittels Wärmepumpe entsteht auf dem Dach zusätzlich eine Photovoltaikanlage.
VIELSEITIGE GEMEINDE UND ERHOLUNG IN DER IDYLLE
Die Lage des Neubauprojekts, nahe dem Lustenauer Knotenpunkt „Gasthaus Engel“ und dem Erholungsgebiet am Alten Rhein, bringt einige Vorteile mit sich. Einerseits liegen die zwei Wohnhäuser in einem äußerst ruhigen Wohngebiet, fernab vom Verkehr und nur wenige Radminuten entfernt vom Alten Rhein. Andererseits sind die Autobahnauffahrten Dornbirn West sowie Hohenems in wenigen Minuten erreichbar. Auch mit der nahegelegenen Bushaltestelle „Wiesenrain“ sind einige Hotspots bequem zu erreichen: Die Busse bieten eine kurze Fahrzeit zum Kirchplatz Lustenau, zur Messekreuzung Dornbirn sowie zum Hohenemser Bahnhof. Zudem ist die Nähe zur Schweizer Grenze vor allem für Pendler ein großer Vorteil.
Auch die Marktgemeinde an sich hat einiges zu bieten: Der Ortskern mit dem blauen Platz, ist mit diversen Restaurants, Cafés und dem Reichshofsaal immer einen Besuch wert. Am Platz finden außerdem ganzjährig unterschiedlichste Events und Märkte statt. Es gibt zahlreiche Nahversorger, ein gut ausgebautes Bildungs- und Betreuungsangebot sowie ein attraktives Sport- und Freizeitprogramm.
Mit der Wohnbauförderung in Vorarlberg bleibt der Traum vom Eigenheim attraktiv. Profitieren Sie jetzt von guten Konditionen – und sparen Sie zusätzlich bis zu € 11.500,- durch den Entfall der Nebengebühren.
Weitere Wohneinheiten und Projekte finden Sie auf unserer Homepage: www.zima.at