ländleimmo.at
/
Kaufobjekt
/
Wohnung
/
Terrassenwohnung
/
Vorarlberg
/
Dornbirn
/ Lustenau
/
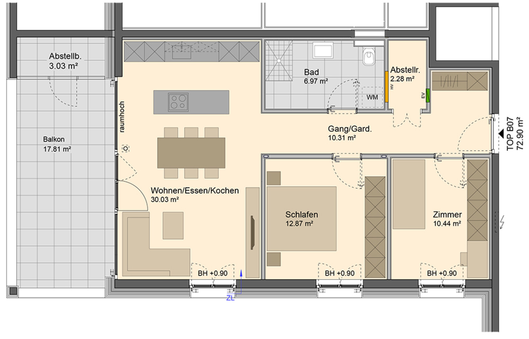
Moderne, optimal aufgeteilte 3-Zimmer Terrassenwohnung (Top B07)
Moderne, optimal aufgeteilte 3-Zimmer Terrassenwohnung (Top B07)
3 Zimmer
Grundriss
72,90 m²
Wohnfläche
€ 539.000
Preise
Kaufpreis
€ 539.000
Preis (Auto-)Stellplatz
zzgl. zum Kaufpreis
€ 27.000
Objekt Informationen
Wohnfläche
72,90 m²
Zimmer
3
Etage
1. OG
Bautyp
Neubau/Erstbezug
Objektart
Wohnung
Objekttyp
Terrassenwohnung
Terrasse
17,81 m²
Keller
7,02 m²
Externe ID
justimmo_53092_929-B07
Parkplatz
- (Tief-)Garage
Ausstattung:
-
Lift
Empfohlene Services unserer Partner
Objekt Beschreibung
Moderne, optimal aufgeteilte 3-Zimmer Terrassenwohnung (Top B07)
Modern, offen, durchdacht - das Neubauprojekt Flurstraße bietet ein stilvolles Zuhause für jede Lebensphase. Inmitten einer idyllischen, ruhigen Umgebung nahe dem Alten Rhein und mit attraktiver Infrastruktur erleben Sie hier modernes Wohnen auf hohem Niveau.
Stilvoller Wohngenuss mit viel Freiraum:
Inmitten einer ruhigen, grünen Umgebung entsteht mit dem Projekt Flurstraße ein Neubau, der modernes Design mit vollkommenem Wohnkomfort verbindet. Die beiden L-förmigen Baukörper ergeben mit ihrer dunklen Holzfassade und den eleganten, geradlinigen Strukturen ein harmonisches Gesamtbild.
Die großzügigen, überdachten Terrassen erweitern den Wohnraum ins Freie und laden zu entspannten Stunden mit Weitblick ein. Die 2- bis 4-Zimmer Wohnungen bieten durchdachte Grundrisse für unterschiedliche Lebensentwürfe. Eine Tiefgarage, Kellerabteile, ein Fahrradraum und ein eigener Spielplatz sorgen für Komfort.
Dank der durchdachten Architektur und der versetzten Anordnung der Wohnhäuser, bleibt genügend Freiraum zwischen den Gebäuden – für mehr Privatsphäre, viel Tageslicht und unverbaute Ausblicke. Hochwertige Materialien, natürliche Farben und Akzente schaffen eine zeitlose, stilvolle Atmosphäre. Begrünte Dächer und nachhaltige Details, wie die Photovoltaikanlage, runden das Konzept ab.
Hohe Lebensqualität in naturnaher Lage:
In der Flurstraße in Lustenau entsteht ein Wohnprojekt, das Ruhe und Erholung in den Mittelpunkt stellt. Die Lage nahe dem Alten Rhein bietet ideale Voraussetzungen, um die Natur in vollen Zügen zu genießen: naturbelassene Badebuchten, ausgedehnte Wiesen und ein weit verzweigtes Netz an Fahrradwegen laden zu entspannten Stunden im Freien ein. Hier finden Naturliebhaber und Erholungssuchende gleichermaßen einen Ort, um den Alltag hinter sich zu lassen.
Trotz der idyllischen Umgebung überzeugt die Flurstraße durch ihre ausgezeichnete Anbindung. Der Lustenauer Knotenpunkt „Gasthaus Engel“ sowie die Autobahnauffahrten Dornbirn West und Hohenems sind in wenigen Minuten erreichbar. Die nahegelegene Bushaltestelle „Wiesenrain“ verbindet Sie schnell mit zentralen Zielen wie dem Kirchplatz Lustenau, der Messekreuzung Dornbirn oder dem Bahnhof Hohenems. Die Nähe zur Schweizer Grenze macht die Flurstraße besonders attraktiv für Pendler.
Lustenau selbst bietet mit seinen vielfältigen Einkaufsmöglichkeiten, einer guten Infrastruktur und dem „blauen Platz“ alles, was Sie für einen entspannten Alltag benötigen.
Modern, offen, durchdacht - das Neubauprojekt Flurstraße bietet ein stilvolles Zuhause für jede Lebensphase. Inmitten einer idyllischen, ruhigen Umgebung nahe dem Alten Rhein und mit attraktiver Infrastruktur erleben Sie hier modernes Wohnen auf hohem Niveau.
Stilvoller Wohngenuss mit viel Freiraum:
Inmitten einer ruhigen, grünen Umgebung entsteht mit dem Projekt Flurstraße ein Neubau, der modernes Design mit vollkommenem Wohnkomfort verbindet. Die beiden L-förmigen Baukörper ergeben mit ihrer dunklen Holzfassade und den eleganten, geradlinigen Strukturen ein harmonisches Gesamtbild.
Die großzügigen, überdachten Terrassen erweitern den Wohnraum ins Freie und laden zu entspannten Stunden mit Weitblick ein. Die 2- bis 4-Zimmer Wohnungen bieten durchdachte Grundrisse für unterschiedliche Lebensentwürfe. Eine Tiefgarage, Kellerabteile, ein Fahrradraum und ein eigener Spielplatz sorgen für Komfort.
Dank der durchdachten Architektur und der versetzten Anordnung der Wohnhäuser, bleibt genügend Freiraum zwischen den Gebäuden – für mehr Privatsphäre, viel Tageslicht und unverbaute Ausblicke. Hochwertige Materialien, natürliche Farben und Akzente schaffen eine zeitlose, stilvolle Atmosphäre. Begrünte Dächer und nachhaltige Details, wie die Photovoltaikanlage, runden das Konzept ab.
Hohe Lebensqualität in naturnaher Lage:
In der Flurstraße in Lustenau entsteht ein Wohnprojekt, das Ruhe und Erholung in den Mittelpunkt stellt. Die Lage nahe dem Alten Rhein bietet ideale Voraussetzungen, um die Natur in vollen Zügen zu genießen: naturbelassene Badebuchten, ausgedehnte Wiesen und ein weit verzweigtes Netz an Fahrradwegen laden zu entspannten Stunden im Freien ein. Hier finden Naturliebhaber und Erholungssuchende gleichermaßen einen Ort, um den Alltag hinter sich zu lassen.
Trotz der idyllischen Umgebung überzeugt die Flurstraße durch ihre ausgezeichnete Anbindung. Der Lustenauer Knotenpunkt „Gasthaus Engel“ sowie die Autobahnauffahrten Dornbirn West und Hohenems sind in wenigen Minuten erreichbar. Die nahegelegene Bushaltestelle „Wiesenrain“ verbindet Sie schnell mit zentralen Zielen wie dem Kirchplatz Lustenau, der Messekreuzung Dornbirn oder dem Bahnhof Hohenems. Die Nähe zur Schweizer Grenze macht die Flurstraße besonders attraktiv für Pendler.
Lustenau selbst bietet mit seinen vielfältigen Einkaufsmöglichkeiten, einer guten Infrastruktur und dem „blauen Platz“ alles, was Sie für einen entspannten Alltag benötigen.