FLEXIBEL
FINANZIEREN

Kreditbedarf
Eigenmittel
%
Jahre
Zins | Laufzeit
mtl. Rate
ländleimmo.at / Kaufobjekt / Wohnung / Terrassenwohnung / Vorarlberg / Bludenz / Nenzing / 3-Zi-Terrassenwohnung TOP 4 in Nenzing, Christian-Hummel-Weg 14

3-Zi-Terrassenwohnung TOP 4 in Nenzing, Christian-Hummel-Weg 14

images icon

3 Zimmer

Grundriss

images icon

67,76 m²

Wohnfläche

€ 425.000

Preise

Kaufpreis € 425.000
Preis (Auto-)Stellplatz € 27.000
Förderungen € 60.000
Provision keine Provision!
Erklärung Kosten Einmalkosten: 3.5% Grunderwerbssteuer, 1.1% Grundbuchseintragung (Entfall der 1,1 % bei Hauptwohnsitz bis Kaufpreis von € 500.000,– pro Käufer), keine Vertragserrichtungskosten! Wohnbauförderung: zusätzlich Zu-/Abschläge möglich!

Objekt Informationen

Wohnfläche 67,76 m²
Zimmer 3
Etage 1. OG
Bautyp Neubau/Erstbezug
Baujahr 2026
Objektart Wohnung
Objekttyp Terrassenwohnung
Badezimmer 1
Balkon Vorhanden
Terrasse 14,30 m²
Keller 5,15 m²
Abstellraum Vorhanden
Fahrradraum Vorhanden
Heizung
  • Luft Wärmepumpe
  • Fußbodenheizung
  • Photovoltaik
Verfügbar ab Herbst 2027
Heizwärmebedarf (HWB) 32,32 kwh/m²a
Klasse Heizwärmebedarf (Klasse HWB) B
Gesamtenergieeffizienz-Faktor (fGEE) 0,57 kwh/m²a
Klasse Gesamtenergieeffizienz-Faktor (Klasse fGEE) A+
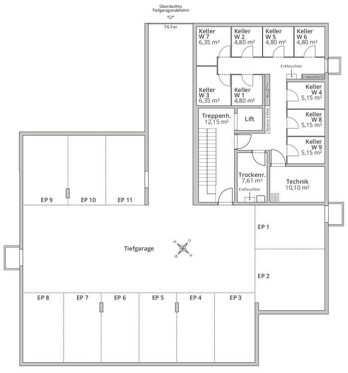
Parkplatz
  • (Tief-)Garage
  • Freiplatz

Ausstattung:

  • icon Boden: Fliesen, Parkett
  • icon Bad mit: Badewanne, Dusche, Fenster
  • icon Ausrichtung Balkon: Südosten
  • icon Lift
  • icon Gäste-WC
  • icon Rollladen
  • icon Barrierefrei
  • icon Wasch-/Trockenraum
  • icon Kabel/Satelliten-TV

Empfohlene Services unserer Partner

Objekt Beschreibung

In Nenzing, Christian-Hummel-Weg 14 entsteht in attraktiver Lage eine hochwertige Wohnanlage!

- hochwertige Wohnanlage mit nur 9 Wohnungen

- Lift und Tiefgarage

- Fußbodenheizung über Luft-Wärmepumpe

- aktive Kühlung über Fußbodenheizung

- Photovoltaik-Anlage zur Stromerzeugung

- Vorbereitung für E-Mobilität (in Abklärung)

- Wohnbauförderung

- keine Vertragserrichtungskosten

- geplante Fertigstellung: Herbst 2027


Wohnbauförderung (Richtlinie Juli 2025-2026) mit € 60.000,00 (oder sogar mehr; z.B. pro Kind + € 15.000,--; erstmaliger Eigentumserwerb + € 10.000,--) möglich.

Entfall Grundbucheintragungsgebühr (1,1 %) bei Verbücherung bis 30.6.2026 bei Hauptwohnsitz bis Kaufpreis € 500.000,00 (pro Käufer).


Weitere Informationen finden Sie auf www.lenz-wohnbau.at. Gerne können Sie uns auch telefonisch kontaktieren.


Wir freuen uns auf Ihre Nachricht/Ihren Anruf!

Lenz Wohnbau GmbH

Angehängte Dokumente