ländleimmo.at
/
Mietobjekt
/
Wohnung
/
Dachgeschosswohnung
/
Vorarlberg
/
Bregenz
/ Lochau
/
Traumhafte 2-Zimmer-Dachgeschosswohnung in neu renovierter Villa in Lochau am Bodensee zu vermieten
Traumhafte 2-Zimmer-Dachgeschosswohnung in neu renovierter Villa in Lochau am Bodensee zu vermieten
2 Zimmer
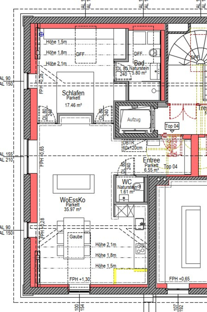
Grundriss
68,00 m²
Wohnfläche
€ 1.600
Preise
Gesamtbelastung
Miete + Betriebskosten + Heizkosten + Sonstige Kosten; inkl. MwSt.
€ 1.600
Netto-Kaltmiete
€ 1.320
Betriebskosten (exkl. Mwst)
€ 280
Kaution
3 Bruttomonatsmieten inkl. BK € 4.800,00 (Bankgarantie oder Sparbuch)
Objekt Informationen
Wohnfläche
68,00 m²
Zimmer
2
Baujahr
1874
Bauweise
- Massiv
Objektart
Wohnung
Objekttyp
Dachgeschosswohnung
Badezimmer
1
Keller
Vorhanden
Heizung
- Gas
- Fußbodenheizung
Verfügbar ab
nach Vereinbarung
Befristung
60 Monate
Gesamtanzahl Stellplätze
1
Heizwärmebedarf (HWB)
199,00 kwh/m²a
Klasse Heizwärmebedarf (Klasse HWB)
E
Gesamtenergieeffizienz-Faktor (fGEE)
2,38 kwh/m²a
Klasse Gesamtenergieeffizienz-Faktor (Klasse fGEE)
D
Externe ID
BB-25-01044
Parkplatz
- Freiplatz (1)
Ausstattung:
-
Wohnküche / offene Küche
-
Boden: Fliesen, Parkett
-
Bad mit: Dusche, Fenster
-
Lift
Empfohlene Services unserer Partner
Objekt Beschreibung
Entdecken Sie eine zauberhafte Dachgeschosswohnung zur Miete in einer historischen Villa aus dem Jahr 1874, gelegen im malerischen Ort Lochau. Diese einzigartige Wohnung bietet auf ca. 68 m² Wohnfläche ein komfortables Wohnambiente mit einem harmonischen Zusammenspiel aus klassischer Bauweise und moderner Ausstattung.
Genießen Sie den großzügigen Wohnbereich mit offener Küche, der zum Entspannen und geselligen Beisammensein einlädt. Der durchdachte Grundriss umfasst zwei Zimmer, darunter ein großzügiges Schlafzimmer und ein modernes Badezimmer, die Ihnen viel Platz für Ihre persönlichen Bedürfnisse bieten. Betreten Sie die Wohnung und lassen Sie sich von den hohen Decken und dem eleganten Fischgrät-Parkettboden verzaubern.
Ein absolutes Highlight ist die Lage der Wohnung in der Nähe des Sees, die eine beruhigende und inspirierende Umgebung bietet. Zudem profitieren Sie von einem nützlichen Dachboden, der zusätzlichen Stauraum zur Verfügung stellt.
Diese Dachgeschosswohnung, welche ab sofort bzw. nach Vereinbarung verfügbar ist, vereint historischen Charme mit einer idyllischen Lage und ist ideal für all jene, die ein besonderes Wohngefühl suchen. Nehmen Sie Kontakt mit uns auf, um weitere Informationen zu erhalten oder einen Besichtigungstermin zu vereinbaren.
Genießen Sie den großzügigen Wohnbereich mit offener Küche, der zum Entspannen und geselligen Beisammensein einlädt. Der durchdachte Grundriss umfasst zwei Zimmer, darunter ein großzügiges Schlafzimmer und ein modernes Badezimmer, die Ihnen viel Platz für Ihre persönlichen Bedürfnisse bieten. Betreten Sie die Wohnung und lassen Sie sich von den hohen Decken und dem eleganten Fischgrät-Parkettboden verzaubern.
Ein absolutes Highlight ist die Lage der Wohnung in der Nähe des Sees, die eine beruhigende und inspirierende Umgebung bietet. Zudem profitieren Sie von einem nützlichen Dachboden, der zusätzlichen Stauraum zur Verfügung stellt.
Diese Dachgeschosswohnung, welche ab sofort bzw. nach Vereinbarung verfügbar ist, vereint historischen Charme mit einer idyllischen Lage und ist ideal für all jene, die ein besonderes Wohngefühl suchen. Nehmen Sie Kontakt mit uns auf, um weitere Informationen zu erhalten oder einen Besichtigungstermin zu vereinbaren.