ländleimmo.at
/
Mietobjekt
/
Wohnung
/
Allgemein
/
Vorarlberg
/
Feldkirch
/ Feldkirch
/
Moderne 2-Zimmerwohnung direkt am Schlosshang in Feldkirch zu vermieten
Moderne 2-Zimmerwohnung direkt am Schlosshang in Feldkirch zu vermieten
2 Zimmer
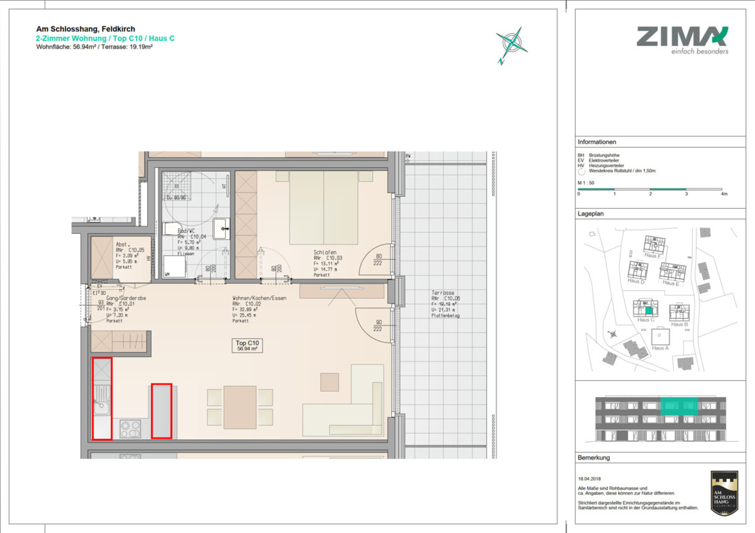
Grundriss
56,94 m²
Wohnfläche
€ 1.080
Preise
Gesamtbelastung
Miete + Betriebskosten + Heizkosten + Sonstige Kosten; inkl. MwSt.
€ 1.080
Netto-Kaltmiete
€ 885,7
Betriebskosten (exkl. Mwst)
€ 194,3
Kaution
3 Bruttomonatsmieten inkl. BK € 3.240,00 (Bankgarantie oder Sparbuch)
Objekt Informationen
Wohnfläche
56,94 m²
Zimmer
2
Etage
2. OG
Bautyp
Gebraucht
Baujahr
2020
Objektart
Wohnung
Objekttyp
Allgemein
Badezimmer
1
Balkon
19,19 m²
Terrasse
Vorhanden
Keller
Vorhanden
Abstellraum
Vorhanden
Fahrradraum
Vorhanden
Heizung
- Fußbodenheizung
Verfügbar ab
01.03.2026
Befristung
60 Monate
Gesamtanzahl Stellplätze
1
Heizwärmebedarf (HWB)
28,00 kwh/m²a
Klasse Heizwärmebedarf (Klasse HWB)
B
Gesamtenergieeffizienz-Faktor (fGEE)
0,59 kwh/m²a
Klasse Gesamtenergieeffizienz-Faktor (Klasse fGEE)
A+
Externe ID
BB-26-01124
Ausstattung:
-
Einbauküche
-
Boden: Fliesen, Parkett
-
Bad mit: Dusche
-
Ausrichtung Balkon: Südosten
-
Lift
Empfohlene Services unserer Partner
Objekt Beschreibung
Diese gepflegte 2-Zimmer-Etagenwohnung in Feldkirch überzeugt durch ihre moderne Bauweise und eine attraktive Lage direkt am Schlosshang. Auf rund 57 m² Wohnfläche bietet sie ein durchdachtes Raumkonzept, das sowohl für Singles als auch für Paare ideal geeignet ist.
Der Wohnbereich präsentiert sich hell und freundlich und wird durch den direkten Zugang zur Terrasse angenehm erweitert. Dank der südöstlichen Ausrichtung genießen Sie besonders am Vormittag und bis in die frühen Nachmittagsstunden eine angenehme Besonnung. Die Küche ist mit einer Einbauküche ausgestattet und fügt sich funktional in das Wohnkonzept ein.
Im Innenbereich sorgen Parkett- und Fliesenböden für eine zeitgemäße Optik sowie pflegeleichte Nutzung im Alltag. Die Wohnung verfügt über ein Schlafzimmer, ein Badezimmer, ein Abstellraum sowie einen Kellerraum, der praktischen zusätzlichen Stauraum bietet.
Die Wohnung ist ab 01.03.2026 verfügbar und eignet sich ideal für alle, die modernes Wohnen in gepflegtem Zustand und in ansprechender Feldkircher Lage schätzen.
Der Wohnbereich präsentiert sich hell und freundlich und wird durch den direkten Zugang zur Terrasse angenehm erweitert. Dank der südöstlichen Ausrichtung genießen Sie besonders am Vormittag und bis in die frühen Nachmittagsstunden eine angenehme Besonnung. Die Küche ist mit einer Einbauküche ausgestattet und fügt sich funktional in das Wohnkonzept ein.
Im Innenbereich sorgen Parkett- und Fliesenböden für eine zeitgemäße Optik sowie pflegeleichte Nutzung im Alltag. Die Wohnung verfügt über ein Schlafzimmer, ein Badezimmer, ein Abstellraum sowie einen Kellerraum, der praktischen zusätzlichen Stauraum bietet.
Die Wohnung ist ab 01.03.2026 verfügbar und eignet sich ideal für alle, die modernes Wohnen in gepflegtem Zustand und in ansprechender Feldkircher Lage schätzen.