FLEXIBEL
FINANZIEREN

Kreditbedarf
Eigenmittel
%
Jahre
Zins | Laufzeit
mtl. Rate
ländleimmo.at / Kaufobjekt / Wohnung / Allgemein / Vorarlberg / Bregenz / Bregenz / Wohnen, wo andere Urlaub machen.

Wohnen, wo andere Urlaub machen.

images icon

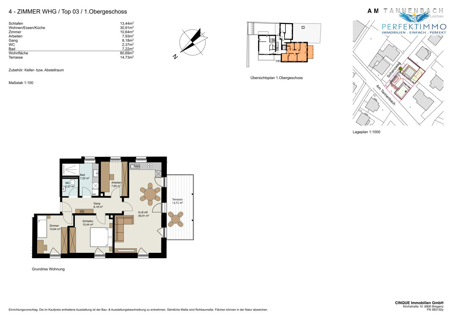
4 Zimmer

Grundriss

images icon

80,69 m²

Wohnfläche

€ 645.000

Lukas Frühstück

Perfekt Immo GmbH

Preise

Kaufpreis € 645.000
Einmalkosten 3.5% Grunderwerbssteuer 1.1% Grundbucheintragung

Objekt Informationen

Wohnfläche 80,69 m²
Zimmer 4
Baujahr 1920
Objektart Wohnung
Objekttyp Allgemein
Balkon 14,85 m²
Fahrradraum Vorhanden
Heizung
  • Zentralheizung
  • Erdwärme
Heizwärmebedarf (HWB) 44 kwh/m²a
Klasse Heizwärmebedarf (Klasse HWB) B
Gesamtenergieeffizienz-Faktor (fGEE) 0,79 kwh/m²a
Klasse Gesamtenergieeffizienz-Faktor (Klasse fGEE) A
Externe ID justimmo_363063_6566/2214
Parkplatz
  • Freiplatz
  • Carport

Ausstattung:

  • icon Boden: Fliesen, Parkett
  • icon Lift
  • icon Barrierefrei

Empfohlene Services unserer Partner

Objekt Beschreibung


Das Bauvorhaben Am Tannenbach 23 in Lochau besteht aus insgesamt 8 Wohneinheiten und ausreichend Stellplätzen. Es entstehen 2-, 3- und 4-Zimmerwohnungen mit Wohnflächen von etwa 43 m² bis 130 m² – hier ist für jeden etwas dabei. Im Rahmen der Entwicklung wird das Bestandsgebäude umfassend modernisiert und ein Neubau errichtet:

  • Nachhaltigkeit im Fokus: Umstellung auf eine umweltfreundliche Erdwärmepumpe.
  • Energieeffizienz: Dämmung der Fassade und Austausch der Fenster.
  • Komfortables Wohnen: Verlegung des Stiegenhaus und Installation eines Lifts, sodass alle Wohnungen barrierefrei zugänglich sind
  • Exklusiver Ausblick: Errichtung von Balkonen mit Blick auf den Bodensee.
  • Innovatives Design: Abtragung und Neuaufrichtung des Dachgeschosses.

Die Wohnungen Top 3 befindet sich im 1. OG der kernsanierten Wohnanlage. Baustart ist im Anfang 2026 geplant und die Fertigstellung Mitte 2027. 

 

Wir weisen darauf hin, dass zwischen dem Vermittler und dem zu vermittelnden Dritten ein familiäres oder wirtschaftliches Naheverhältnis besteht.


Infrastruktur / Entfernungen

Gesundheit
Arzt <1.000m
Apotheke <1.000m
Krankenhaus <1.500m
Klinik <1.500m

Kinder & Schulen
Schule <500m
Kindergarten <500m
Höhere Schule <3.500m
Universität <1.000m

Nahversorgung
Supermarkt <500m
Bäckerei <500m
Einkaufszentrum <1.000m

Sonstige
Bank <1.000m
Geldautomat <1.000m
Post <1.000m
Polizei <1.500m

Verkehr
Bus <500m
Autobahnanschluss <2.500m
Bahnhof <500m

Angaben Entfernung Luftlinie / Quelle: OpenStreetMap



Lage:
Nur wenige Schritte trennen Sie vom Bodensee und dem charmanten Militärbad „Mili“. Das Stadtzentrum von Bregenz ist in Sichtweite, und hinter dem Haus beginnt der Weg in die Berge – eine perfekte Verbindung von Stadt, See und Natur. Die Liegenschaft befindet sich unmittelbar an der Stadtgrenze zu Bregenz und zählt zwar verwaltungstechnisch zu Lochau, trägt jedoch die Bregenzer Postleitzahl. Auch die Postzustellung erfolgt durch den Bregenzer Zustelldienst. Damit verbindet die Adresse den exklusiven Standortvorteil einer Bregenzer Immobilie mit der Ruhe und Lebensqualität von Lochau.