FLEXIBEL
FINANZIEREN

Kreditbedarf
Eigenmittel
%
Jahre
Zins | Laufzeit
mtl. Rate
ländleimmo.at / Kaufobjekt / Haus / Allgemein / Vorarlberg / Bregenz / Hard / Erstbezug: Doppelhaushälften in Hard mit Wohnbauförderung

Erstbezug: Doppelhaushälften in Hard mit Wohnbauförderung

images icon

4 Zimmer

Grundriss

images icon

93,06 m²

Wohnfläche

€ 700.000

Preise

Kaufpreis € 700.000
Einmalkosten 3.5% Grunderwerbssteuer 1.1% Grundbucheintragung 1,2% vom Kaufpreis zuzügl. Beglaubigungskosten und Barauslagen Vertragserrichtungsgebuehr Provisionspflichtig
Provision 3% des Kaufpreises zzgl. 20% USt.

Objekt Informationen

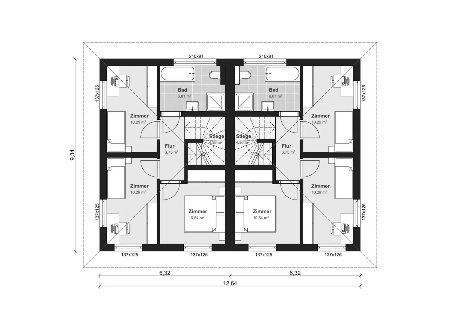
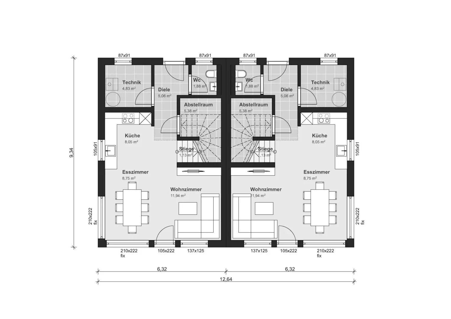
Wohnfläche 93,06 m²
Grundstücksgröße 275,00 m²
Zimmer 4
Objektart Haus
Objekttyp Allgemein
Badezimmer 1
Terrasse Vorhanden
Heizung
  • Fußbodenheizung
  • Wärmepumpe
Externe ID justimmo_384381_7763/252
Parkplatz
  • (Tief-)Garage (1)

Ausstattung:

  • icon Boden: Fliesen, Parkett

Empfohlene Services unserer Partner

Objekt Beschreibung


Willkommen in Ihrem neuen Zuhause in Hard! In ruhiger und familienfreundlicher Lage entstehen Doppelhaushälften. Die Haushälften werden mit jeweils ca. 93 m² Wohnfläche schlüsselfertig und in Holzbauweise errichtet. Mit 4 Zimmern bietet dieses Haus ausreichend Platz für die ganze Familie.

 

Ausstattung und Highlights:

  • moderne und praktische Grundrisseinteilung
  • Gartenfläche für Hobbygärtner und spielende Kinder
  • Luft-Wasser-Wärmepumpe mit Fußbodenheizung
  • 3-fach verglaste Kunststoff-Alu-Fenster
  • Badausstattung: Großformatige Wand- und Bodenfliesen & Sanitärobjekte inkl. Badmöbel
  • Tischlerarbeiten: Hochwertiger Parkett inkl. Sockelleisten & Innentüren 
  • Einzelgarage oder Carport (optional)
  • Keller (optional)
  • alles in schlüsselfertiger Ausführung


Die SIMA Immobilien GmbH vermittelt dieses Grundstück mit ca. 275 m² inklusive Neubaukonzept.

Das Haus wird schlüsselfertig errichtet gemäß beiliegender Bau- und Ausstattungsbeschreibung. Zudem können Sie durch den hohen Ausführungsstandard eine Wohnbauförderung von bis zu € 175.000,00*, sowie ein Eigenmittelersatzdarlehen (noch bis 30.06.2025) von bis zu € 25.000,00 zinslos erhalten. Gerne beraten wir Sie im Detail. 

 

Finanzierungsbeispiel:

Kaufpreis inklusive Garage, Einrichtung und Anschlusskosten: ca. € 700.000,00

Eigenmittelersatzdarlehen Rate: ca. € 105,00

Rate Wohnbauförderung: ca. € 146,83

Rate Bank: ca. € 1.350,00

Hierbei handelt es sich um eine unverbindliche Berechnung mit der Annahme von einem Haushaltseinkommen von € 4.500,00 und einem Eigenkapital von € 100.000,00. Im Finanzierungsbeispiel haben wir die Nebenkosten bereits berücksichtigt.

Unser Kooperationspartner, die SIMA GmbH, beratet Sie dazu gerne.

 

Hinweise: Dieses Exposé dient zur Vorabinformation. Alle Angaben nach bestem Wissen und Gewissen, jedoch ohne Gewähr. Tippfehler, Irrtum und Zwischenverkauf vorbehalten. Die Grundrisse dienen lediglich zur Darstellung der Raumaufteilung.

*Berechnung mit Annahme von zwei Kindern

 

Der Vermittler ist als Doppelmakler tätig.


Infrastruktur / Entfernungen

Gesundheit
Arzt <425m
Apotheke <425m
Krankenhaus <2.375m
Klinik <3.300m

Kinder & Schulen
Schule <700m
Kindergarten <550m
Universität <3.850m
Höhere Schule <6.750m

Nahversorgung
Supermarkt <125m
Bäckerei <250m
Einkaufszentrum <2.225m

Sonstige
Bank <925m
Geldautomat <925m
Post <1.175m
Polizei <950m

Verkehr
Bus <150m
Bahnhof <1.200m
Autobahnanschluss <2.900m

Angaben Entfernung Luftlinie / Quelle: OpenStreetMap



Lage:
Die Hofsteigstraße liegt ideal – ruhig und dennoch bestens angebunden: Bushaltestelle & Bahnhof in wenigen Minuten erreichbar Ärzte, Apotheken, Kindergärten & Schulen in direkter Umgebung Supermärkte, Bäckerei & weitere Nahversorgung fußläufig erreichbar Freizeitmöglichkeiten direkt vor der Haustür – Rad- und Spazierwege, Natur & Bodensee-Nähe