ländleimmo.at
/
Mietobjekt
/
Gewerbliche Immobilie
/
Büro / Ordination
/
Vorarlberg
/
Dornbirn
/ Dornbirn
/
Der richtige Platz für große Pläne – individuelle Gewerbeflächen in Dornbirn zu vermieten
Der richtige Platz für große Pläne – individuelle Gewerbeflächen in Dornbirn zu vermieten
N/A
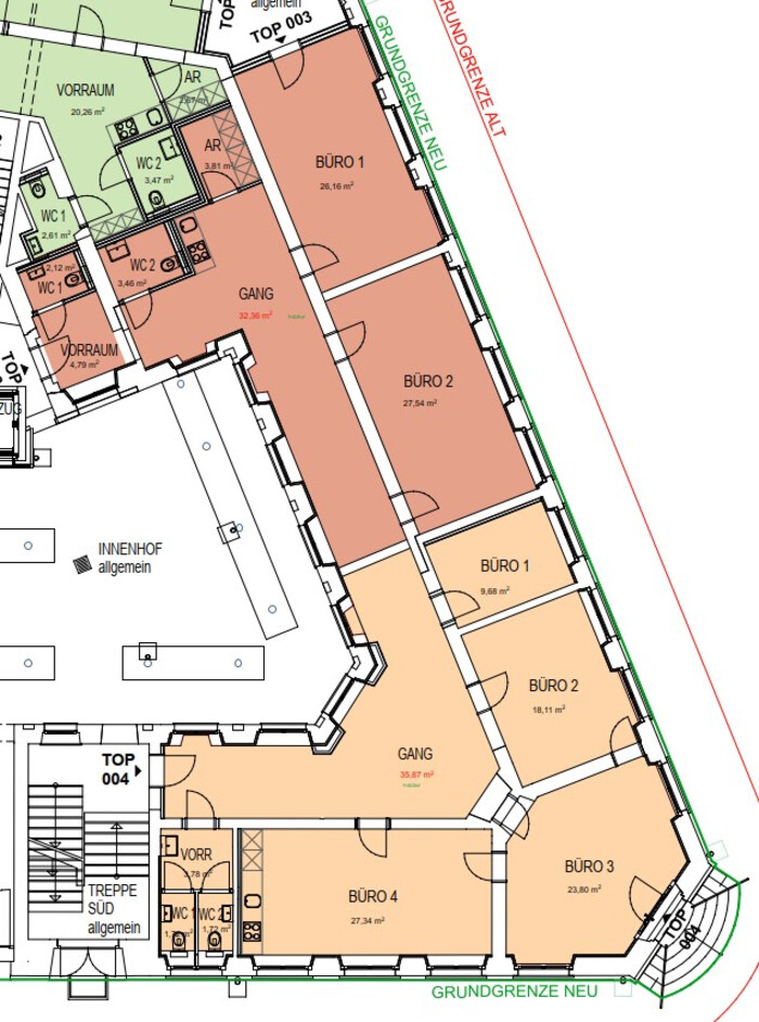
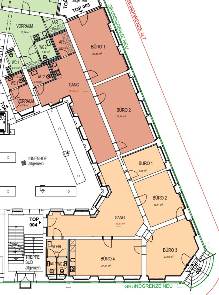
Grundriss
Preis auf Anfrage
Preise
Preis auf Anfrage
Kaution
3 Bruttomonatsmieten inkl. BK
Einmalkosten
z.B. Vertragserrichtungsgebühr
2 Nettomonatsmieten inkl. BK zzgl. 20% Mwst.
Provision
2 Nettomonatsmieten inkl. BK zzgl. 20% Mwst.
Erklärung Kosten
Vergebührung Finanzamt: Höhe hängt von Vertragsdauer ab
Objekt Informationen
Baujahr
1905
Bauweise
- Massiv
Objektart
Gewerblich
Objekttyp
Büro / Ordination
Keller
Vorhanden
Heizung
- Fernwärme
Verfügbar ab
01.07.2025
Befristung
36 Monate
Heizwärmebedarf (HWB)
51,00 kwh/m²a
Klasse Heizwärmebedarf (Klasse HWB)
C
Gesamtenergieeffizienz-Faktor (fGEE)
1,06 kwh/m²a
Klasse Gesamtenergieeffizienz-Faktor (Klasse fGEE)
C
Externe ID
BB-25-00896
Ausstattung:
-
Lift
Empfohlene Services unserer Partner
Objekt Beschreibung
In bester Lage von Dornbirn eröffnen sich attraktive Möglichkeiten für Ihren neuen Unternehmensstandort. In einem stilvollen Gebäude mit insgesamt 34 modernen Wohnungen stehen vier exklusive Gewerbeflächen zur Vermietung – mit Größen von ca. 59 m² bis 222 m². Die Flächen überzeugen durch modernen Komfort und bieten die ideale Grundlage für unterschiedlichste Geschäftsideen.
Ob Büro, Dienstleistungsbetrieb oder Studio – hier finden Sie flexible Raumlösungen mit professionellem Ambiente. Jede Einheit verfügt über einen separaten Eingang, moderne Sanitäreinrichtungen sowie einer Küche – ideal für den täglichen Arbeitsalltag. Die hochwertige Ausstattung und das stimmige Raumkonzept schaffen ein angenehmes, repräsentatives Arbeitsumfeld.
Die Lage überzeugt: Nur wenige Gehminuten vom Dornbirner Stadtzentrum entfernt, mit Bushaltestelle in unmittelbarer Nähe und ausreichend Parkmöglichkeiten in der Umgebung. Die ruhige, aber zentrale Umgebung ermöglicht produktives Arbeiten in bester Erreichbarkeit.
Die monatliche Miete liegt – je nach Größe und Fläche – zwischen € 1.264,85 und € 3.721,43 brutto.
Verfügbar ab 01.07.2025
Mietdauer: nach Vereinbarung
Vermittlungsprovision 2 Nettomonatsmieten + BK zzgl. 20 % MwSt.
Für weitere Informationen oder zur Vereinbarung eines Besichtigungstermins freuen wir uns auf Ihre Kontaktaufnahme.
Ob Büro, Dienstleistungsbetrieb oder Studio – hier finden Sie flexible Raumlösungen mit professionellem Ambiente. Jede Einheit verfügt über einen separaten Eingang, moderne Sanitäreinrichtungen sowie einer Küche – ideal für den täglichen Arbeitsalltag. Die hochwertige Ausstattung und das stimmige Raumkonzept schaffen ein angenehmes, repräsentatives Arbeitsumfeld.
Die Lage überzeugt: Nur wenige Gehminuten vom Dornbirner Stadtzentrum entfernt, mit Bushaltestelle in unmittelbarer Nähe und ausreichend Parkmöglichkeiten in der Umgebung. Die ruhige, aber zentrale Umgebung ermöglicht produktives Arbeiten in bester Erreichbarkeit.
Die monatliche Miete liegt – je nach Größe und Fläche – zwischen € 1.264,85 und € 3.721,43 brutto.
Verfügbar ab 01.07.2025
Mietdauer: nach Vereinbarung
Vermittlungsprovision 2 Nettomonatsmieten + BK zzgl. 20 % MwSt.
Für weitere Informationen oder zur Vereinbarung eines Besichtigungstermins freuen wir uns auf Ihre Kontaktaufnahme.