FLEXIBEL
FINANZIEREN

Kreditbedarf
Eigenmittel
%
Jahre
Zins | Laufzeit
mtl. Rate
ländleimmo.at / Kaufobjekt / Gewerbliche Immobilie / Betriebsobjekt / Vorarlberg / Dornbirn / Lustenau / Betriebsliegenschaft in bester Lage zu verkaufen

Betriebsliegenschaft in bester Lage zu verkaufen

images icon

N/A

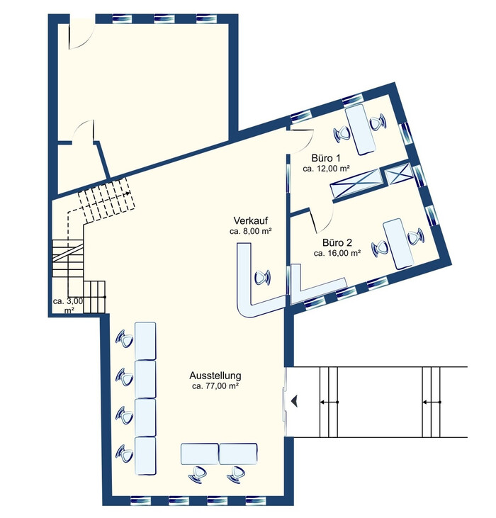
Grundriss

images icon

1.240,00 m²

Nutzfläche

Preis auf Anfrage

Preise

Preis auf Anfrage
Erklärung Kosten - 3,5% Grunderwerbsteuer - 1,1% Grundbucheintragung - Vertragserrichtungskosten inkl. Treuhandabwicklung - Vermittlungshonorar

Objekt Informationen

Nutzfläche 1.240,00 m²
Grundstücksgröße 7.600,00 m²
Objektart Gewerblich
Objekttyp Betriebsobjekt

Empfohlene Services unserer Partner

Objekt Beschreibung

DATEN

  1. Liegenschaft GSTNRn 5340/4 in EZ 7124 – 1.461 m²
  2. Katastralgemeinde Lustenau: 5338/1 in EZ 6124 – 2.357 m²

5338/2 und 5339 in EZ 1102 – 3.785 m²

  1. Grundstücksfläche in Summe: 7.603 m²
  2. weitere Grundstücksfläche: ein zusätzliches Grundstück mit ca. 2.000 m² kann ebenfalls

erworben werden (d.h. Gesamtfläche = ca. 9.600 m²)

  1. Mieterlöse: jährlich ca. € 275.000,-
  2. Widmung: BB-I Baufläche Betriebsgebiet I sowie

FF Freifläche Freihaltegebiet (Sonderwidmung)

  1. Bebauungsplan: Liegenschaften nicht beinhaltet
  2. Dienstbarkeiten/Lasten: siehe Grundbuchsauszüge
  3. Zufahrt: öffentliches Gut
  4. Stromversorgung: Netz der Vorarlberg Netz AG
  5. Versorgungsl. Ab- und Wasser: öffentliche Leitungsnetze der Gemeinde Lustenau



KAUFPREIS

Kaufpreis auf Anfrage


MONATLICHE BETRIEBSKOSTEN

je nach Verbrauch


NEBENKOSTEN

  1. 3,5% Grunderwerbsteuer
  2. 1,1% Grundbucheintragung
  3. Vertragserrichtungskosten inkl. Treuhandabwicklung
  4. Vermittlungshonorar


Fotos und Pläne zur Verfügung gestellt von der Verkäuferseite.


LAGE- UND LIEGENSCHAFTSBESCHREIBUNG:


Der Wirtschaftsstandort Vorarlberg zählt zu den wirtschaftsstärksten Regionen Europas.

Als stark exportorientiertes Bundesland ist Vorarlberg eng mit der globalen Wirtschaft verflochten. Dadurch profitiert der Wirtschaftsstandort von einer hohen Branchenvielfalt und einer breiten Vielfalt der verschiedensten Wirtschaftsbereiche. Vorarlberg verfügt über einen leistungsfähigen industriellen Kern, ein wettbewerbsfähiges Gewerbe und Handwerk sowie einen innovativen und kreativen Dienstleistungssektor. Die Diversität und Branchenvielfalt sind die wesentlichen Stärken des Wirtschaftsstandorts Vorarlberg und zentraler Faktor für die Resilienz der Vorarlberger Wirtschaft.


In bester Lage im Nordwesten Vorarlbergs liegt dieses ideal erschlossene Betriebsareal. In unmittelbarer Nähe ist ein Autobahn-Vollanschluss gegeben. Daher sind die Ballungsräume Zürich, München und Mailand in wenigen Fahrstunden erreichbar. Die Qualität dieser repräsentativen Liegenschaften bietet somit für viele Firmenstandorte wesentliche Vorteile.


Die zu Verkauf stehenden Liegenschaften haben eine Gesamtfläche von 7.603 m² lt. Grundbuchsauszügen und besitzen eine BB I Widmung (sowie eine FF-Widmung mit Sonderwidmung). Mit der Widmung BB I versehenen Betriebsgebiete (Auszug aus dem Raumplanungsgesetz) sind gewerbliches Betriebsgebiete, in dem „nicht wesentlich störende Betriebsanlagen“ angesiedelt werden dürfen. Erlaubt sind Betriebe, die keine starken Emissionen, Lärm oder Gerüche verursachen. Auch betriebsnotwendige Wohnungen für Aufsichts- oder Wartungspersonal sind erlaubt, sowie infrastrukturelle und soziale Einrichtungen für die dort Beschäftigten (z. B. Kantine, Sanitärräume).


In Betriebsgebieten Kategorie I dürfen nicht errichtet werden:

– Wohnbauten für allgemeine Wohnnutzung (außer Personalwohnungen)

– Sport- oder Freizeiteinrichtungen

– großflächiger Handel


Die Gemeinde Lustenau verfügt in diesem Bereich über keinen Bebauungsplan - es sind Gespräche mit der Gemeinde bei der Planung von Neubauten auf den Liegenschaften zu führen.


Auf den Grundstücken befinden sich ein Bürohaus ca. 340 m², eine Halle (inkl. Büro) ca. 700 m², ein überdachter Bereich ca. 200 m² und große Freibereiche. Neben der Halle befindet sich auch eine Tankstelle. Die Halle wurde ca. 1986, das Bürohaus und das Flugdach wurden ca. 2003 errichtet. Das Freigelände ist z.T. befestigt und wird als Lager- bzw. Parkplatz sowie als Rangierflächen verwendet. Das Areal ist vollständig mit Betonmauer bzw. eingefasst.


Derzeit wird ein jährlicher Mieterlös von ca. € 211.000,- erzielt – bei einer Vollvermietung des Areals ist eine Gesamt-Jahresmiete von ca. € 275.000,- erreichbar.


Angehängte Dokumente

Energieausweis in Arbeit