FLEXIBEL
FINANZIEREN

Kreditbedarf
Eigenmittel
%
Jahre
Zins | Laufzeit
mtl. Rate
ländleimmo.at / Kaufobjekt / Wohnung / Terrassenwohnung / Vorarlberg / Feldkirch / Götzis / Charmante 2-Zimmerwohnung mit ca. 35 m² Terrasse am Götzner Berg

Charmante 2-Zimmerwohnung mit ca. 35 m² Terrasse am Götzner Berg

images icon

2 Zimmer

Grundriss

images icon

54,06 m²

Wohnfläche

€ 289.000

Preise

Kaufpreis € 289.000
Betriebskosten (exkl. Mwst) € 169,58
Einmalkosten 3% des Kaufpreises zzgl. 20% USt.
Provision 3% des Kaufpreises zzgl. 20% USt.
Erklärung Kosten Tiefgaragenstellplatz = 20.000 EUR Komplette Reparaturrücklage = 142.801

Objekt Informationen

Wohnfläche 54,06 m²
Zimmer 2
Etage EG
Baujahr 2006
Bauweise
  • Massiv
Objektart Wohnung
Objekttyp Terrassenwohnung
Badezimmer 1
Terrasse 35,10 m²
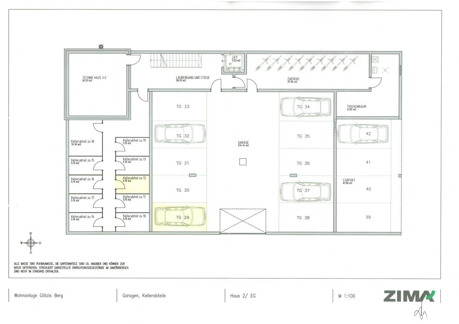
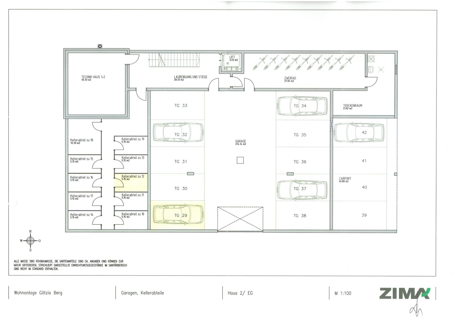
Keller 5,15 m²
Abstellraum Vorhanden
Fahrradraum Vorhanden
Heizung
  • Gas
  • Solar
  • Fußbodenheizung
Verfügbar ab 15.08.2025
Gesamtanzahl Stellplätze 1
Heizwärmebedarf (HWB) 32,05 kwh/m²a
Klasse Heizwärmebedarf (Klasse HWB) B
Gesamtenergieeffizienz-Faktor (fGEE) 1,03 kwh/m²a
Klasse Gesamtenergieeffizienz-Faktor (Klasse fGEE) C
Externe ID justimmo_378244_5681/516
Parkplatz
  • (Tief-)Garage
  • Freiplatz (1)

Ausstattung:

  • icon Wohnküche / offene Küche
  • icon Boden: Fliesen
  • icon Bad mit: Badewanne, Fenster
  • icon Parkplatz Tiefgarage
  • icon Lift
  • icon Seniorengerecht
  • icon Wasch-/Trockenraum
  • icon Kabel/Satelliten-TV

Empfohlene Services unserer Partner

Objekt Beschreibung


Wohnung:

Die ca. 54 m² große 2-Zimmer-Wohnung besticht durch einen modernen Schnitt und helle Räume. Die großzügige Terrasse mit ca. 35 m² bietet viel Platz für Erholung und lädt zum Entspannen im Freien ein. Dank der Ausrichtung nach Süden können Sie hier ganztägig die Sonne genießen.

Die Wohnanlage wurde 2006 von der renommierten ZIMA erbaut und zeichnet sich durch eine hohe Bauqualität und durchdachte Raumaufteilung aus. Die Wohnung ist im Erdgeschoss gelegen und bietet dadurch einen komfortablen Zugang sowie barrierefreies Wohnen.

Ausstattung:

  • Terrasse: ca. 35 m², südlich ausgerichtet
  • Zimmer: 2 Zimmer, ideal für Paare oder Singles
  • Bad: Modernes Badezimmer mit Fenster, ausgestattet mit Badewanne (ohne Möbel)
  • Abstellraum: Ein praktischer Abstellraum bietet zusätzlichen Stauraum für Haushaltsgeräte oder Vorräte
  • Küche: große Einbauküche inkludiert
  • Baujahr: 2006 (erbaut durch ZIMA)
  • Heizung: Gasheizung, zusätzlich unterstützt durch Sonnenkollektoren für die Warmwasseraufbereitung – reduziert Betriebskosten und sorgt für umweltfreundliches Wohnen
  • Parkplatz: 1 Tiefgaragenstellplatz, zusätzlich ausreichend Besucherparkplätze vorhanden

Besonderheiten:

  • Ruhige, sonnige Lage am Götzner Berg
  • Ganztägige Sonneneinstrahlung durch südliche Ausrichtung
  • Hochwertige Bauweise und moderne Ausstattung
  • Umweltfreundliche Warmwasseraufbereitung durch Sonnenkollektoren
  • Besucherparkplätze in ausreichender Zahl vorhanden
  • Bad mit Fenster

 

Diese Wohnung bietet die perfekte Kombination aus moderner Wohnqualität, großzügigem Außenbereich und einer ruhigen Lage in einer der begehrtesten Gegenden Vorarlbergs.

Zögern Sie nicht und vereinbaren Sie noch heute einen Besichtigungstermin!

 

Unsere Angaben beziehen sich auf die Auskünfte des Eigentümers. Irrtum und Änderungen vorbehalten.

Noch nichts gefunden? Wir informieren Sie über geeignete Immobilienangebote noch vor allen anderen.
Legen Sie jetzt kostenlos Ihren individuellen Suchagenten unter folgendem Link an. Wir schicken Ihnen passende Immobilien exklusiv vorab zu.
Suchagent anlegen

Wir weisen darauf hin, dass zwischen dem Vermittler und dem zu vermittelnden Dritten ein familiäres oder wirtschaftliches Naheverhältnis besteht.

Der Vermittler ist als Doppelmakler tätig.


Infrastruktur / Entfernungen

Gesundheit
Arzt <1.250m
Apotheke <1.550m
Krankenhaus <3.225m

Kinder & Schulen
Schule <225m
Kindergarten <275m
Universität <9.775m
Höhere Schule <1.325m

Nahversorgung
Supermarkt <975m
Bäckerei <925m
Einkaufszentrum <4.300m

Sonstige
Bank <1.225m
Geldautomat <1.225m
Post <1.575m
Polizei <1.375m

Verkehr
Bus <175m
Autobahnanschluss <2.650m
Bahnhof <1.775m
Flughafen <5.975m

Angaben Entfernung Luftlinie / Quelle: OpenStreetMap



Lage:
Diese charmante 2-Zimmer-Terrassenwohnung befindet sich in der beliebten Gemeinde Götzis, mitten im Vorarlberger Rheintal. Die Wohnung liegt am Götzner Berg in einer ruhigen Wohngegend. Durch die erhöhte Lage bietet sich ein herrlicher Ausblick sowie eine angenehme Umgebung, die zur Erholung einlädt. Die südliche Ausrichtung sorgt für ganztägigen Sonnenschein auf der großzügigen Terrasse.

Angehängte Dokumente