ländleimmo.at
/
Kaufobjekt
/
Wohnung
/
Terrassenwohnung
/
Vorarlberg
/
Dornbirn
/ Dornbirn
/
Im Bau: Kompakt, hell, draußen – 2-Zimmer Terrassenwohnung (Top A03)
Im Bau: Kompakt, hell, draußen – 2-Zimmer Terrassenwohnung (Top A03)
2 Zimmer
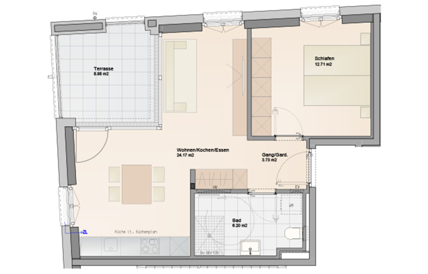
Grundriss
46,81 m²
Wohnfläche
€ 349.000
Preise
Kaufpreis
€ 349.000
Preis (Auto-)Stellplatz
zzgl. zum Kaufpreis
€ 27.000
Objekt Informationen
Wohnfläche
46,81 m²
Zimmer
2
Etage
1. OG
Bautyp
Neubau/Erstbezug
Baujahr
2025
Objektart
Wohnung
Objekttyp
Terrassenwohnung
Terrasse
8,98 m²
Keller
5,67 m²
Externe ID
justimmo_53092_922-A03
Parkplatz
- (Tief-)Garage
Ausstattung:
-
Lift
Empfohlene Services unserer Partner
Objekt Beschreibung
Im Bau: Kompakt, hell, draußen – 2-Zimmer Terrassenwohnung (Top A03)
BAUSTART BEREITS ERFOLGT: MODERNER LEBENSMITTELPUNKT IN DORNBIRN
FERTIGSTELLUNG ENDE 2026
Das Wohnprojekt im Haferweg in Dornbirn präsentiert sich als ein Ensemble aus drei klar strukturierten Baukörpern in einer Nachbarschaft, die von Einfamilienhäusern geprägt ist. Jedes der dreigeschossigen Wohnhäuser verfügt über variantenreiche Grundrisse und somit individuelle Wohnräume für jede Lebenslage. In den insgesamt 25 Einheiten wird Wohnkomfort auf den Punkt gebracht. Bodentiefe Fenster sorgen für viel Licht in den Wohnräumen, die überdachten Terrassen und Balkone eröffnen die Möglichkeit für gemütliche Stunden im Freien. Hier lässt sich die ruhige Umgebung in vollen Zügen genießen.
Zwischen den Baukörpern lockern Grünbereiche und Sitzmöglichkeiten das Gesamtbild der Wohnanlage auf. Besucherparkplätze und überdachte Fahrradabstellplätze ermöglichen ein entspanntes Kommen und Gehen. Mit der gemeinsamen Tiefgarage, einem Lift in jedem Wohnhaus und eigenen Kellerabteilen wohnt es sich hier rundum sorglos.
WO LEBENSQUALITÄT ZUHAUSE IST
Die Lage in der ruhigen Nachbarschaft im Haferweg bietet alle Vorzüge, die man sich von einem gemütlichen Zuhause wünschen kann. Quasi direkt vor der Haustüre gibt es zahlreiche Rad- und Spazierwege Richtung Ried zu entdecken. Auch was für einen bequemen Alltag nötig ist, liegt im nahen Umkreis. Eine Bushaltestelle direkt vor der Haustüre bringt Sie z.B. zum nahegelegenen Messepark. Auch mit dem Rad können von Ihrem neuen Zuhause aus, alle Einkäufe schnell erledigt werden. Kindergärten und Schulen befinden sich ebenfalls in bequemer Reichweite. Ein weiteres Freizeitangebot – nur 5 Gehminuten vom Haferweg entfernt – bietet der Hermann-Gmeiner-Park. Die Wohngegend bietet somit eine hohe Lebensqualität für Groß und Klein.
Mit der Wohnbauförderung in Vorarlberg bleibt der Traum vom Eigenheim attraktiv. Profitieren Sie jetzt von guten Konditionen – und sparen Sie zusätzlich bis zu € 11.500,- durch den Entfall der Nebengebühren.
Weitere Wohneinheiten und Projekte finden Sie auf unserer Homepage: www.zima.at
BAUSTART BEREITS ERFOLGT: MODERNER LEBENSMITTELPUNKT IN DORNBIRN
FERTIGSTELLUNG ENDE 2026
Das Wohnprojekt im Haferweg in Dornbirn präsentiert sich als ein Ensemble aus drei klar strukturierten Baukörpern in einer Nachbarschaft, die von Einfamilienhäusern geprägt ist. Jedes der dreigeschossigen Wohnhäuser verfügt über variantenreiche Grundrisse und somit individuelle Wohnräume für jede Lebenslage. In den insgesamt 25 Einheiten wird Wohnkomfort auf den Punkt gebracht. Bodentiefe Fenster sorgen für viel Licht in den Wohnräumen, die überdachten Terrassen und Balkone eröffnen die Möglichkeit für gemütliche Stunden im Freien. Hier lässt sich die ruhige Umgebung in vollen Zügen genießen.
Zwischen den Baukörpern lockern Grünbereiche und Sitzmöglichkeiten das Gesamtbild der Wohnanlage auf. Besucherparkplätze und überdachte Fahrradabstellplätze ermöglichen ein entspanntes Kommen und Gehen. Mit der gemeinsamen Tiefgarage, einem Lift in jedem Wohnhaus und eigenen Kellerabteilen wohnt es sich hier rundum sorglos.
WO LEBENSQUALITÄT ZUHAUSE IST
Die Lage in der ruhigen Nachbarschaft im Haferweg bietet alle Vorzüge, die man sich von einem gemütlichen Zuhause wünschen kann. Quasi direkt vor der Haustüre gibt es zahlreiche Rad- und Spazierwege Richtung Ried zu entdecken. Auch was für einen bequemen Alltag nötig ist, liegt im nahen Umkreis. Eine Bushaltestelle direkt vor der Haustüre bringt Sie z.B. zum nahegelegenen Messepark. Auch mit dem Rad können von Ihrem neuen Zuhause aus, alle Einkäufe schnell erledigt werden. Kindergärten und Schulen befinden sich ebenfalls in bequemer Reichweite. Ein weiteres Freizeitangebot – nur 5 Gehminuten vom Haferweg entfernt – bietet der Hermann-Gmeiner-Park. Die Wohngegend bietet somit eine hohe Lebensqualität für Groß und Klein.
Mit der Wohnbauförderung in Vorarlberg bleibt der Traum vom Eigenheim attraktiv. Profitieren Sie jetzt von guten Konditionen – und sparen Sie zusätzlich bis zu € 11.500,- durch den Entfall der Nebengebühren.
Weitere Wohneinheiten und Projekte finden Sie auf unserer Homepage: www.zima.at