FLEXIBEL
FINANZIEREN

Kreditbedarf
Eigenmittel
%
Jahre
Zins | Laufzeit
mtl. Rate
ländleimmo.at / Kaufobjekt / Wohnung / Gartenwohnung / Wien / 14. Bez. Penzing / Wien 14. Bezirk Penzing / Ideale Immobilienanlage - 2-Zimmer-Wohnung mit Balkon und kleinem Garten

Ideale Immobilienanlage - 2-Zimmer-Wohnung mit Balkon und kleinem Garten

images icon

2 Zimmer

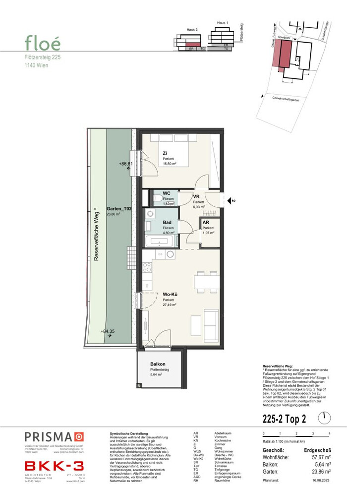
Grundriss

images icon

57,67 m²

Wohnfläche

€ 398.020

Preise

Kaufpreis € 398.020
Einmalkosten 3.5% Grunderwerbssteuer 1.1% Grundbucheintragung 1,80 % inkl. USt. Vertragserrichtungsgebuehr Provisionspflichtig
Provision provisionsfrei
Erklärung Kosten Der Kaufpreis versteht sich zzgl. 20% USt. Kaufpreis für Eigennutzer auf Anfrage. 

Objekt Informationen

Wohnfläche 57,67 m²
Zimmer 2
Anzahl Stockwerke 4
Bautyp Neubau/Erstbezug
Baujahr 2023
Objektart Wohnung
Objekttyp Gartenwohnung
Badezimmer 1
Balkon 5,64 m²
Garten 23,86 m²
Keller 4,08 m²
Abstellraum Vorhanden
Fahrradraum Vorhanden
Heizung
  • Fußbodenheizung
  • Wärmepumpe
Verfügbar ab sofort
Heizwärmebedarf (HWB) 34 kwh/m²a
Klasse Heizwärmebedarf (Klasse HWB) B
Gesamtenergieeffizienz-Faktor (fGEE) 0,73 kwh/m²a
Klasse Gesamtenergieeffizienz-Faktor (Klasse fGEE) A
Externe ID justimmo_181737_7482/1005

Ausstattung:

  • icon Einbauküche
  • icon Boden: Fliesen, Parkett
  • icon Bad mit: Badewanne
  • icon Lift
  • icon Barrierefrei
  • icon Rollstuhlgerecht
  • icon Gartennutzung

Empfohlene Services unserer Partner

Objekt Beschreibung


Jetzt informieren und sorgenfrei anlegen - ideal für Ihre Investition oder als langfristige Vorsorge.
Profitieren Sie von einer kostenlosen Erstvermietung mit Rundumservice - Inserierung und Besichtigungen übernehmen wir für Sie. 

Die freundliche 2-Zimmer-Wohnung Top 02 befindet sich in Haus 2 und überzeugt mit intelligentem Grundriss und Süd-/West-Ausrichtung. Der helle, einladende Wohn- und Essbereich ist mit einer modernen Einbauküche mit MIELE-Geräten ausgestattet und führt nach Süden auf auf den Balkon, Über das Schlafzimmer erreicht man den kleinen Eigengarten. In der Wohnung sind ein hochwertiger Eichen-Parkettboden sowie Feinsteinfliesen im Bad/WC verlegt. Für angenehmes Wohlfühlklima sorgt im Winter eine Fußbodenheizung. Heißen Sommertagen wirkt ein außenliegender, elektrisch gesteuerter Sonnenschutz sowie eine Raumtemperierung über die Fußbodenheizung entgegen (Abkühlung um 2-3 Grad mittels Wärmepumpen-System, ohne fossile Energieträger). 

 

Die Ausstattung der Allgemeinflächen bieten zusätzlichen Wohnkomfort und attraktives Zusammenleben:

  • Kellerabteil, Fahrrad- und Kinderwagenabstellraum
  • digitale Paketanlage (myRENZbox) im Eingangsbereich zur smarten Hinterlegung von größeren Briefsendungen, Paketen und sonstigen Lieferungen 
  • Kleinkinderspielplatz und Sitzmöglichkeiten im Hof
  • Gemeinschaftsgarten und Hochbeete

 

Es handelt sich um eine Anlegerwohnung, der Kaufpreis versteht sich zzgl. 20% USt. Kaufpreis für Eigennutzer 435.000€ zzgl. Nebenkosten. 

Für die erste Vermietung der Wohnung bieten wir unsere Vermietungsdienstleistung an. 

Alle Angaben vorbehaltlich Änderungen und Irrtümer. Abbildungen, insbesondere Renderings haben Symbolcharakter.


Infrastruktur / Entfernungen

Gesundheit
Arzt <350m
Apotheke <475m
Klinik <1.475m
Krankenhaus <550m

Kinder & Schulen
Schule <250m
Kindergarten <925m
Universität <2.025m
Höhere Schule <3.625m

Nahversorgung
Supermarkt <375m
Bäckerei <650m
Einkaufszentrum <3.350m

Sonstige
Geldautomat <425m
Bank <425m
Post <950m
Polizei <775m

Verkehr
Bus <225m
Straßenbahn <325m
U-Bahn <850m
Bahnhof <850m
Autobahnanschluss <3.700m

Angaben Entfernung Luftlinie / Quelle: OpenStreetMap



Lage:
In Hütteldorf, am westlichen Stadtrand schätzt man den Blick ins Grüne und die nahe gelegenen Freiflächen (Lainzer Tiergarten, Dehnepark, Ferdinand-Wolf-Park) bei gleichzeitig guter Anbindung in die Innenstadt (U4-Station Hütteldorf, S-Bahn, Straßenbahnlinie 49 und 52). Ob pulsierendes Stadtleben oder beschauliches Wohnen am Stadtrand - hier stehen alle Möglichkeiten offen.

Angehängte Dokumente