FLEXIBEL
FINANZIEREN

Kreditbedarf
Eigenmittel
%
Jahre
Zins | Laufzeit
mtl. Rate
ländleimmo.at / Kaufobjekt / Wohnung / Gartenwohnung / Wien / 14. Bez. Penzing / Wien 14. Bezirk Penzing / Attraktive 2-Zimmer-Wohnung in bester Ruhelage mit Balkon und Garten

Attraktive 2-Zimmer-Wohnung in bester Ruhelage mit Balkon und Garten

images icon

2 Zimmer

Grundriss

images icon

57,67 m²

Wohnfläche

€ 435.000

Preise

Kaufpreis € 435.000
Einmalkosten 3.5% Grunderwerbssteuer 1.1% Grundbucheintragung 1,80 % inkl. USt. Vertragserrichtungsgebuehr Provisionspflichtig
Provision provisionsfrei

Objekt Informationen

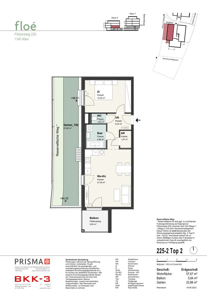
Wohnfläche 57,67 m²
Zimmer 2
Anzahl Stockwerke 4
Bautyp Neubau/Erstbezug
Baujahr 2023
Objektart Wohnung
Objekttyp Gartenwohnung
Badezimmer 1
Balkon 5,64 m²
Garten 23,86 m²
Keller 4,08 m²
Abstellraum Vorhanden
Fahrradraum Vorhanden
Heizung
  • Fußbodenheizung
  • Wärmepumpe
Verfügbar ab sofort
Heizwärmebedarf (HWB) 34 kwh/m²a
Klasse Heizwärmebedarf (Klasse HWB) B
Gesamtenergieeffizienz-Faktor (fGEE) 0,73 kwh/m²a
Klasse Gesamtenergieeffizienz-Faktor (Klasse fGEE) A
Externe ID justimmo_181737_7482/1006
Parkplatz
  • (Tief-)Garage

Ausstattung:

  • icon Einbauküche
  • icon Boden: Fliesen, Parkett
  • icon Bad mit: Badewanne
  • icon Lift
  • icon Barrierefrei
  • icon Rollstuhlgerecht
  • icon Gartennutzung

Empfohlene Services unserer Partner

Objekt Beschreibung


Die freundliche 2-Zimmer-Wohnung Top 02 befindet sich in Haus 2 und überzeugt mit intelligentem Grundriss und Süd-/West-Ausrichtung. Der helle, einladende Wohn- und Essbereich ist mit einer modernen Einbauküche mit MIELE-Geräten ausgestattet und führt nach Süden auf auf den Balkon, Über das Schlafzimmer erreicht man den kleinen Eigengarten. In der Wohnung sind ein hochwertiger Eichen-Parkettboden sowie Feinsteinfliesen im Bad/WC verlegt. Für angenehmes Wohlfühlklima sorgt im Winter eine Fußbodenheizung. Heißen Sommertagen wirkt ein außenliegender, elektrisch gesteuerter Sonnenschutz sowie eine Raumtemperierung über die Fußbodenheizung entgegen (Abkühlung um 2-3 Grad mittels Wärmepumpen-System, ohne fossile Energieträger). 

 

Die Ausstattung der Allgemeinflächen bieten zusätzlichen Wohnkomfort und attraktives Zusammenleben:

  • KFZ-Stellplatz (Ladepunkte für E-Mobilität möglich) in der hauseigenen Tiefgarage optional möglich
  • Kellerabteil, Fahrrad- und Kinderwagenabstellraum
  • digitale Paketanlage (myRENZbox) im Eingangsbereich zur smarten Hinterlegung von größeren Briefsendungen, Paketen und sonstigen Lieferungen 
  • Kleinkinderspielplatz und Sitzmöglichkeiten im Hof
  • Gemeinschaftsgarten und Hochbeete

 

Optional kann die Wohnung auch als Anlegerwohnung erworben werden. Kaufpreis auf Anfrage.
Die möblierten Bilder wurde mittels KI generiert und dienen der Visualisierung.

Alle Angaben vorbehaltlich Änderungen und Irrtümer. Abbildungen, insbesondere Renderings haben Symbolcharakter.


Infrastruktur / Entfernungen

Gesundheit
Arzt <350m
Apotheke <475m
Klinik <1.475m
Krankenhaus <550m

Kinder & Schulen
Schule <250m
Kindergarten <925m
Universität <2.025m
Höhere Schule <3.625m

Nahversorgung
Supermarkt <375m
Bäckerei <650m
Einkaufszentrum <3.350m

Sonstige
Geldautomat <425m
Bank <425m
Post <950m
Polizei <775m

Verkehr
Bus <225m
Straßenbahn <325m
U-Bahn <850m
Bahnhof <850m
Autobahnanschluss <3.700m

Angaben Entfernung Luftlinie / Quelle: OpenStreetMap



Lage:
In Hütteldorf, am westlichen Stadtrand schätzt man den Blick ins Grüne und die nahe gelegenen Freiflächen (Lainzer Tiergarten, Dehnepark, Ferdinand-Wolf-Park) bei gleichzeitig guter Anbindung in die Innenstadt (U4-Station Hütteldorf, S-Bahn, Straßenbahnlinie 49 und 52). Ob pulsierendes Stadtleben oder beschauliches Wohnen am Stadtrand - hier stehen alle Möglichkeiten offen.

Angehängte Dokumente