FLEXIBEL
FINANZIEREN

Kreditbedarf
Eigenmittel
%
Jahre
Zins | Laufzeit
mtl. Rate
ländleimmo.at / Kaufobjekt / Wohnung / Allgemein / Vorarlberg / Bregenz / Langen bei Bregenz / Bregenz: Langen bei Bregenz: Top 11: Gemütlich & modern vereint: 2-Zimmer 50 m2 mit Balkon

Bregenz: Langen bei Bregenz: Top 11: Gemütlich & modern vereint: 2-Zimmer 50 m2 mit Balkon

images icon

N/A

Grundriss

images icon

50,00 m²

Wohnfläche

€ 249.000

Sabine Tschütscher

TSImmo

Preise

Kaufpreis € 249.000
Betriebskosten (exkl. Mwst) € 185
Einmalkosten Provisionspflichtig3% des Kaufpreises zzgl. 20% USt.241 Monatlichekostenbrutto 3.5% Grunderwerbssteuer 1.1% Grundbucheintragung zzgl. € 3.600,00 zzgl. 20 % Ust. zzgl. Barauslagen Vertragserrichtungsgebuehr Provisionspflichtig
Provision 3% des Kaufpreises zzgl. 20% USt.
Erklärung Kosten Zuzüglich zum Wohnungskaufpreis - KFZ Abstellplatz zu kaufen!

Objekt Informationen

Wohnfläche 50,00 m²
Etage EG
Bautyp Gebraucht
Baujahr 1820
Objektart Wohnung
Objekttyp Allgemein
Balkon 10,00 m²
Heizung
  • Holz
  • Solar
  • Zentralheizung
  • Wärmepumpe
Verfügbar ab 2025 nach Absprache
Heizwärmebedarf (HWB) 43 kwh/m²a
Klasse Heizwärmebedarf (Klasse HWB) B
Gesamtenergieeffizienz-Faktor (fGEE) 0,69 kwh/m²a
Klasse Gesamtenergieeffizienz-Faktor (Klasse fGEE) A+
Externe ID 383243_7488/139

Ausstattung:

  • icon Wohnküche / offene Küche

Empfohlene Services unserer Partner

Objekt Beschreibung


Lage:
Diese attraktive Wohnung befindet sich in Langen bei Bregenz, nur etwa 1 km vom Ortszentrum entfernt. Eingebettet in eine ruhige und naturnahe Umgebung, profitieren Sie von einer idealen Balance zwischen Erholung und urbaner Anbindung.

Objektbeschreibung:
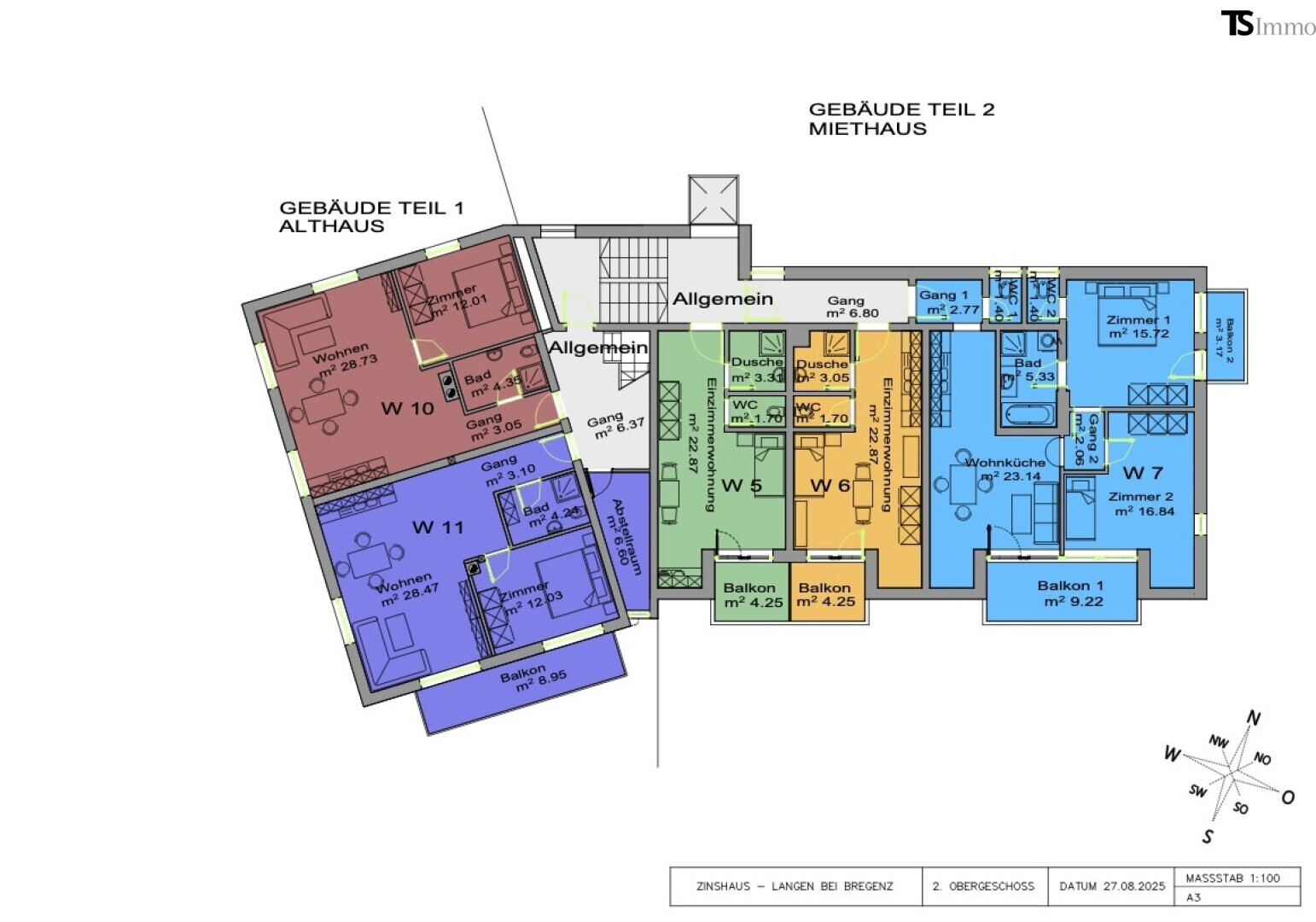
Die Wohnung liegt im obersten Geschoss eines liebevoll sanierten Gebäudes, das um 1820 erbaut und zwischen 2018 und 2020 umfassend modernisiert wurde. Mit einer Wohnnutzfläche von ca. 50 m² und einem Balkon von ca. 10 m² bietet sie kompakten Komfort mit besonderen Highlights wie einem Schwedenofen und einer hochwertigen Küche. Der Zugang erfolgt teilweise mit Lift, die letzte Etage ist über eine Stiege erreichbar.

Renovierung und Technik:

Die Hausanlage besteht aus zwei Gebäudeteilen. Der Gebäudeteil, über den Sie Zugang zu dieser Wohnung erhalten, wurde im Jahr 1984 errichtet und in den letzten Jahren teilweise saniert. Das Gebäude, in dem sich die Wohnung befindet, wurde in den vergangenen Jahren umfassend modernisiert und auf den neuesten Stand gebracht.

  • Komplettsanierung: Modernisierung von Fassade, Isolierung und Wohnräumen.
  • Nachhaltige Energie: Wärmeerzeugung über einen zentralen Kachelofen und Zentralheizung Luftwärmepumpe, ergänzt durch eine gemeinschaftlich genutzte Solaranlage.
  • Wärmeverteilung: Fußbodeheizung sorgt für optimalen Wohnkomfort.

Highlights der Wohnung:

  • Schwedenofen: Für eine gemütliche Wohnatmosphäre und zusätzliche Wärme.
  • Hochwertige Küche: Stilvoll und funktional, mit modernen Geräten ausgestattet, perfekt für Kochliebhaber.
  • Balkon: Der großzügige Außenbereich lädt zum Verweilen ein und bietet einen herrlichen Blick in die Umgebung.

Raumaufteilung:
Die Wohnung ist ideal für Singles oder Paare:

  • Ein heller Wohnbereich mit Schwedenofen und direktem Zugang zum Balkon.
  • Separates Schlafzimmer für Privatsphäre und Komfort.
  • Moderne Küche, die keine Wünsche offen lässt.
  • Funktionales Badezimmer mit stilvoller Ausstattung.

Fazit:
Diese liebevoll gestaltete Wohnung bietet eine perfekte Mischung aus Komfort, Stil und Nachhaltigkeit. Der Schwedenofen und die hochwertige Küche setzen besondere Akzente, während der Balkon und die ruhige Lage den Wohnkomfort abrunden. Perfekt geeignet für Menschen, die das Besondere suchen.

Kontaktieren Sie uns noch heute für weitere Informationen oder zur Besichtigung!

Technische Details:

  • Beide Gebäudeteile sind mit einer gemeinschaftlichen thermischen Solaranlage ausgestattet, die zur Warmwasseraufbereitung dient. Die Versorgung erfolgt je nach Bedarf entweder über die Solaranlage oder ergänzend über Strom.

Zusätzlich zum genannten Kaufpreis besteht die Möglichkeit, einen Abstellplatz zzgl. Nebenkosten zu erwerben.

Gerne informieren wir Sie in einem persönlichen Gespräch über alle Details zu diesen Objekten.

Bitte beachten Sie, dass wir auf Wunsch des Eigentümers detaillierte Informationen ausschließlich an Interessenten weitergeben, die sich persönlich bei uns melden und uns ihre vollständige Adresse sowie Kontaktdaten übermitteln.

  • Da die Wohnung derzeit noch vermietet ist, müssen Besichtigungstermine in Abstimmung mit dem Mieter geplant werden. Wir bitten um Ihr Verständnis, dass hierfür eine Vorlaufzeit von mindestens einer Woche erforderlich ist.

Wohnungseigentum & Betriebskosten

Die Häuseranlage mit zwei Gebäudeteilen wird derzeit rechtlich in Wohnungseigentum umgewandelt. Ab 2026 wird eine neue Hausverwaltung eingesetzt.
Die aktuellen Betriebskosten liegen durchschnittlich bei rund € 2,50/m². Zur sicheren Kalkulation wird im Exposé mit € 3,70/m² Betriebskosten zuzüglich € 1,13/m² Reparaturfonds gerechnet (gesetzlich vorgesehen € 1,06/m² ab 2025, voraussichtlich € 1,13/m² ab 2026). Diese Einschätzung bietet eine transparente und faire Kostenbasis.

Wichtiger Hinweis

Die Wohnung ist derzeit vermietet. Besichtigungstermine können nur in Abstimmung mit dem Mieter stattfinden, daher ist eine Vorlaufzeit von mindestens einer Woche erforderlich.

Rechtlicher Hinweis

Bitte beachten Sie, dass wir auf Wunsch des Eigentümers detaillierte Informationen ausschließlich an Interessenten weitergeben, die uns ihre vollständige Adresse sowie Kontaktdaten übermitteln.
Alle Angaben erfolgen ohne Gewähr und sind freibleibend. Der Verkäufer ist nicht verpflichtet, einen Verkauf abzuschließen und behält sich Änderungen sowie den Zwischenverkauf vor.

 

Wir weisen darauf hin, dass zwischen dem Vermittler und dem zu vermittelnden Dritten ein familiäres oder wirtschaftliches Naheverhältnis besteht.

Der Vermittler ist als Doppelmakler tätig.


Infrastruktur / Entfernungen

Gesundheit
Arzt <7.000m
Apotheke <7.000m
Krankenhaus <7.000m
Klinik <6.500m

Kinder & Schulen
Schule <4.000m
Kindergarten <6.000m
Höhere Schule <7.000m
Universität <7.000m

Nahversorgung
Supermarkt <1.000m
Bäckerei <1.500m
Einkaufszentrum <7.000m

Sonstige
Bank <4.000m
Geldautomat <6.000m
Post <1.000m
Polizei <7.000m

Verkehr
Bus <500m
Autobahnanschluss <7.500m
Bahnhof <7.000m

Angaben Entfernung Luftlinie / Quelle: OpenStreetMap




Angehängte Dokumente