FLEXIBEL
FINANZIEREN

Kreditbedarf
Eigenmittel
%
Jahre
Zins | Laufzeit
mtl. Rate
ländleimmo.at / Kaufobjekt / Haus / Reihenhaus / Vorarlberg / Bludenz / Vandans / Letztes verfügbares Neubau-Reihenendhaus in herrlicher Aussichtlage!

Letztes verfügbares Neubau-Reihenendhaus in herrlicher Aussichtlage!

images icon

4 Zimmer

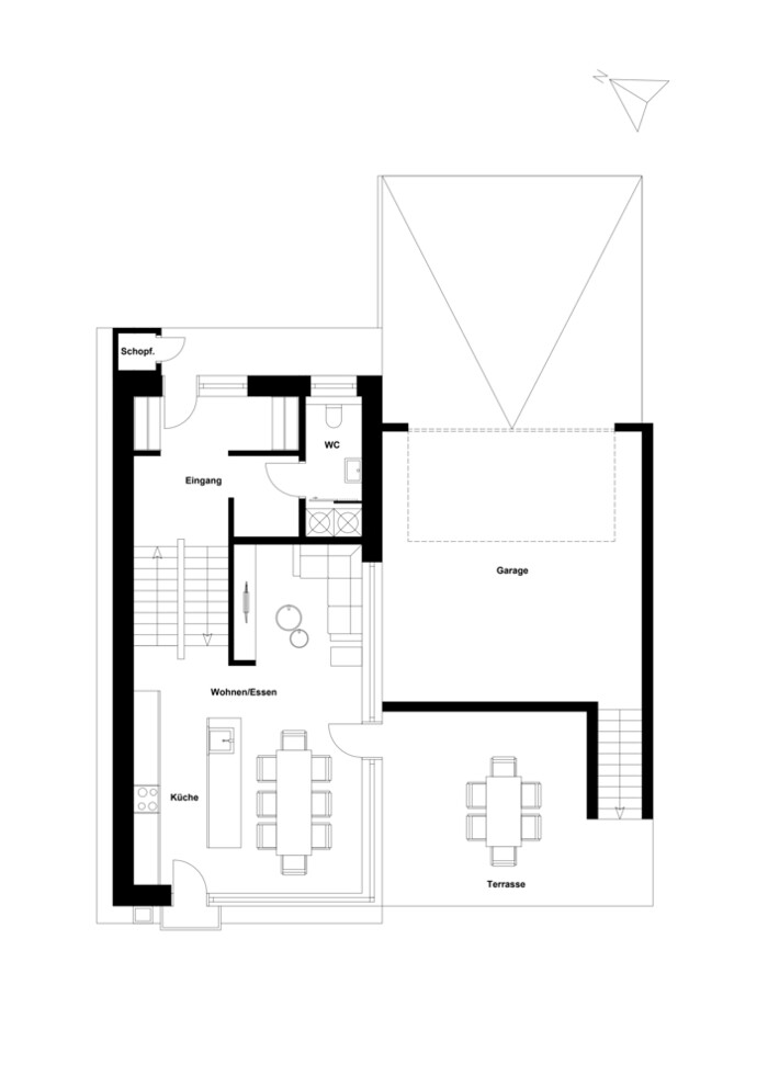
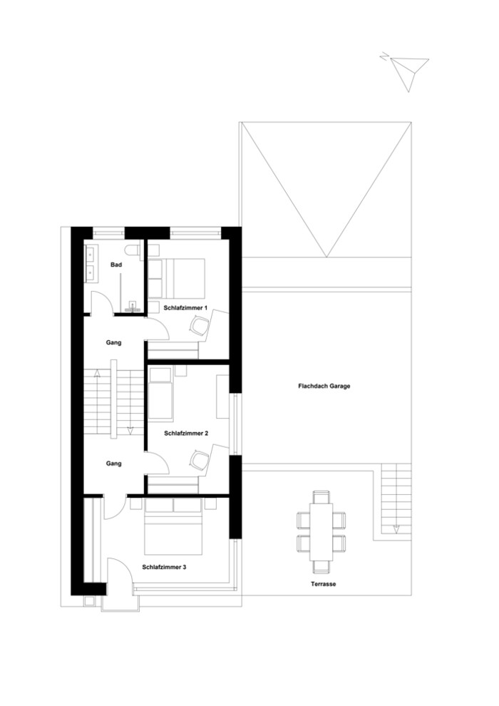
Grundriss

images icon

399,00 m²

Wohnfläche

€ 863.000

Engel & Völkers Vorarlberg Commercial Shop Schruns

Engel & Völkers EuV Immo GmbH

Preise

Kaufpreis € 863.000
Einmalkosten Provision _3%
Provision _3%

Objekt Informationen

Grundstücksgröße 399,00 m²
Zimmer 4
Bautyp Neubau/Erstbezug
Baujahr 2025
Objektart Haus
Objekttyp Reihenhaus
Badezimmer 1
Verfügbar ab Ende 2025
Externe ID engel_volkers_SC-NG752

Empfohlene Services unserer Partner

Objekt Beschreibung


Am Steinwandweg 8 in Vandans entsteht eine moderne Reihenhausanlage in attraktiver Aussichtslage. Das angebotene Reihenendhaus „Haus A“ überzeugt mit hochwertiger Bauweise, durchdachtem Grundriss und großzügigen Außenflächen – ideal für Familien. Auf rund 115 m² Wohnfläche verteilt sich das Haus auf einen lichtdurchfluteten Wohn-/Essbereich mit direktem Zugang zur Terrasse und zum Garten, drei Schlafzimmer, ein Badezimmer sowie ein separates Gäste-WC. Große Fensterflächen sorgen für ein helles Wohnambiente mit Blick auf die umliegende Bergwelt. Besonders hervorzuheben sind die Außenbereiche: eine sonnige Terrasse mit ca. 24 m² sowie ein großzügiger Garten bieten viel Platz für Erholung und Familienleben. Ergänzt wird das Raumangebot durch einen ca. 38 m² großen Keller sowie einen Carport mit zusätzlichem Außenstellplatz.
Das Haus wird in energieeffizienter Niedrigenergiebauweise errichtet und ist mit einer Photovoltaikanlage ausgestattet – modern, nachhaltig und zukunftssicher.

Für diesen Neubau liegt ein Wohnbauförderungsbescheid vor und kann nur für die Nutzung als Hauptwohnsitz oder als Kapitalanlage erworben werden. Es verfügt über keine Zweitwohnsitzwidmung.

Mit seiner ruhigen Lage in einer familienfreundlichen Wohnstraße, der Nähe zu Einkaufsmöglichkeiten, Schulen und der Talstation der Golmerbahn sowie der schnellen Anbindung an die S16/A14 verbindet Haus A naturnahes Wohnen mit bester Infrastruktur.

Lage:
Das Reihenendhaus Haus A am Steinwandweg 8 in Vandans befindet sich in einer sonnigen, ruhigen Aussichtslage am Ortsrand und bietet damit ideale Voraussetzungen für familiengerechtes Wohnen. Die kleine Anliegerstraße ist nahezu frei von Durchgangsverkehr und schafft ein sicheres Umfeld für Kinder. Gleichzeitig sind das Ortszentrum mit Einkaufsmöglichkeiten, Kindergarten, Schulen sowie Gastronomie in wenigen Minuten erreichbar.

Die Lage punktet zudem durch eine ausgezeichnete Verkehrsanbindung: Über die nahegelegene S16 erreichen Sie die Autobahn A14 Richtung Bludenz, Feldkirch und Bregenz in kurzer Zeit. Für Freizeit und Erholung liegt die Talstation der Golmerbahn fast vor der Haustüre und eröffnet das ganze Jahr über vielfältige Sport- und Ausflugsmöglichkeiten.

Eingebettet in die eindrucksvolle Bergkulisse von Rätikon, Verwall und Silvretta, mit Blick auf die markante Zimba, verbindet dieses Zuhause naturnahes Wohnen mit einer modernen Infrastruktur – ein idealer Ort für Familien, die Lebensqualität, Ruhe und Natur mit guter Erreichbarkeit kombinieren möchten.