FLEXIBEL
FINANZIEREN

Kreditbedarf
Eigenmittel
%
Jahre
Zins | Laufzeit
mtl. Rate
ländleimmo.at / Kaufobjekt / Grundstück / Baugrundstück / Vorarlberg / Feldkirch / Weiler / Wohnen mit Weitblick - schönes Baugrundstück in ruhiger Lage von Weiler

Wohnen mit Weitblick - schönes Baugrundstück in ruhiger Lage von Weiler

images icon

N/A

Grundriss

images icon

512,20 m²

Grundstücksgröße

Preis auf Anfrage

Preise

Preis auf Anfrage

Objekt Informationen

Grundstücksgröße 512,20 m²
Objektart Grundstück
Objekttyp Baugrundstück

Empfohlene Services unserer Partner

Objekt Beschreibung

In der beliebten Wohngemeinde Weiler entsteht Ihr ganz persönlicher Platz zum Wohlfühlen: ein großzügiges Baugrundstück in leichter Hanglage mit unverbaubarem Weitblick über das Vorarlberger Rheintal.


Die Lage bietet nicht nur viel Sonne und Ruhe, sondern auch die perfekte Grundlage für Ihr individuelles Traumhaus. Ob moderner Neubau oder klassisches Einfamilienhaus – hier lassen sich Wohnträume verwirklichen, die gleichermaßen Lebensqualität und Wertbeständigkeit garantieren.


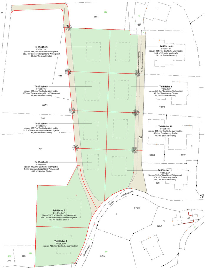
Die angebotene Teilfläche 4 liegt im Westen einer unbebauten Fläche und bietet durch die erhöhte Lage einen wunderschönen Blick nach Westen auf die Schweizer Berge. Die Erschließung erfolgt über den Steinhausweg bzw. einen neu zu errichtenden Erschließungsstraße. Die Dimension des Grundstücks eröffnet vielfältige Möglichkeiten in Architektur und Gartengestaltung.


Am Standort, in einer exklusiven Lage, wird eine Liegenschaft mit insgesamt 6.250 m² verkauft. Für die Fläche wurde ein Konzept für die Teilung in 10 Teilflächen entwickelt. Die Teilflächen eignen sich mit ihrer Größe zwischen rund 500 bis ca. 1.000 m² ideal für die Errichtung von Einfamilienhäusern.

Gerne informieren Sie in einem unverbindlichen, persönlichen Gespräch über die Möglichkeiten!

Angehängte Dokumente